Großes saniertes Reiheneckhaus mit Garten und Garage in toller Lage von Lörrach-Salzert
WhatsApp Image 2026-01-22 at 11.38.51 (2)IMG_8263IMG_8234IMG_8237IMG_8240IMG_8238IMG_8232IMG_8227WhatsApp Image 2026-01-22 at 11.38.51IMG_8204IMG_8213IMG_8206IMG_8225IMG_8203IMG_8216IMG_8214IMG_8221IMG_8193IMG_8170IMG_8132IMG_8139IMG_8141IMG_8188IMG_8179IMG_8176IMG_8175IMG_8167IMG_8157IMG_8153IMG_8144 2IMG_8148IMG_8145 2IMG_8202IMG_8246IMG_8244WhatsApp Image 2026-01-22 at 11.38.51 (1)IMG_8281Grundriss UGGrundriss EGGrundriss OG(1)WhatsApp Image 2026-01-22 at 11.38.47
Eckdaten
Zimmer
Wohnfl.
Grundst.
Kaufpreis
Zimmer
Wohnfl.
Grundst.
670000.0€ Kaufpreis
Basisdaten
Objektnummer
Immopark ID
IP-309464
Objekt ID
1067-770-2-KM
Adresse
79540 Lörrach
Ort
79540 Lörrach
Fakten und Zahlen
Haustyp
Reihenendhaus
Vermarktungsart
Kauf
Nutzungsart
wohnen
Verkaufsstatus
offen
Baujahr
1964
Kerndaten
Wohnfläche
128 m2
Zimmer
5.0
Schlafzimmer
4.0
Badezimmer
1.0
separate WC
1.0
Grundstücksfläche
386 m2
Anzahl Stellplätze (gesamt)
2.0
Bauweise / Substanz
Objektzustand
teil- vollsaniert
Preisdaten
Preis
Kaufpreis
670.000 €
Courtage
Provisionspflichtig /provisionsfrei
provisionspflichtig
Käufercourtage
3,57 % inkl. gesetzl. MwSt. (19%)
Innen- / Außencourtage
inkl. MwSt.
Merkmale
Zimmer und Bereiche
Typ
Voll unterkellert
Anzahl (Balkone)
1.0
Anzahl (Terrassen)
1.0
Zimmer und Räume
Schlafzimmer
Zimmer und Räume
Wasch- / Trockenraum
Ausstattung und Technik
Qualität der Ausstattung
standard
Sanitäre Einrichtung
Sanitäre Einrichtung
Fenster
Sanitäre Einrichtung
Dusche
Sanitäre Einrichtung
Wanne
Sanitäre Einrichtung
Gäste WC
Stellplätze
Anzahl Stellplätze (gesamt)
2.0
Stellplatzdetails
Freiplatz
Anzahl
1.0
Stellplatzdetails
Garage
Anzahl
1.0
Energie
Energieausweis
Typ
Bedarfsausweis
EnEV
ab 01.05.2014 (gemäß EnEV 2014)
Energieausweis gültig bis
2035-04-02
Endenergiebedarf gemessen in kWh/(m²a)
217.67
A+ABCDEFGH
wesentlicher Energieträger
Gas
Energieeffizienzklasse
G
Baujahr lt. Energieausweis
1964
Gebäudeart lt. Energieausweis
Wohngebäude
Heizung
Heizungsart
Zentralheizung
Befeuerungsart
Befeuerungsart
Gas
Umgebung
Es wurden keine Daten angegeben.
Objektbeschreibung
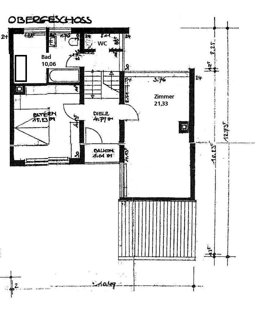
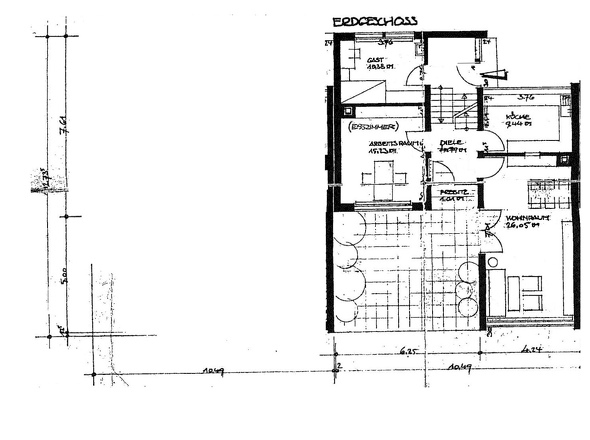
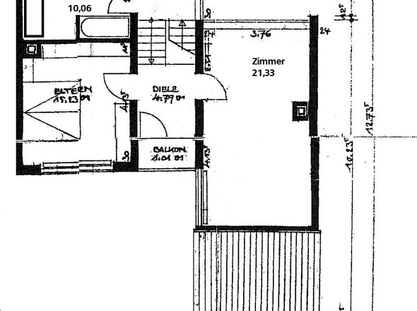
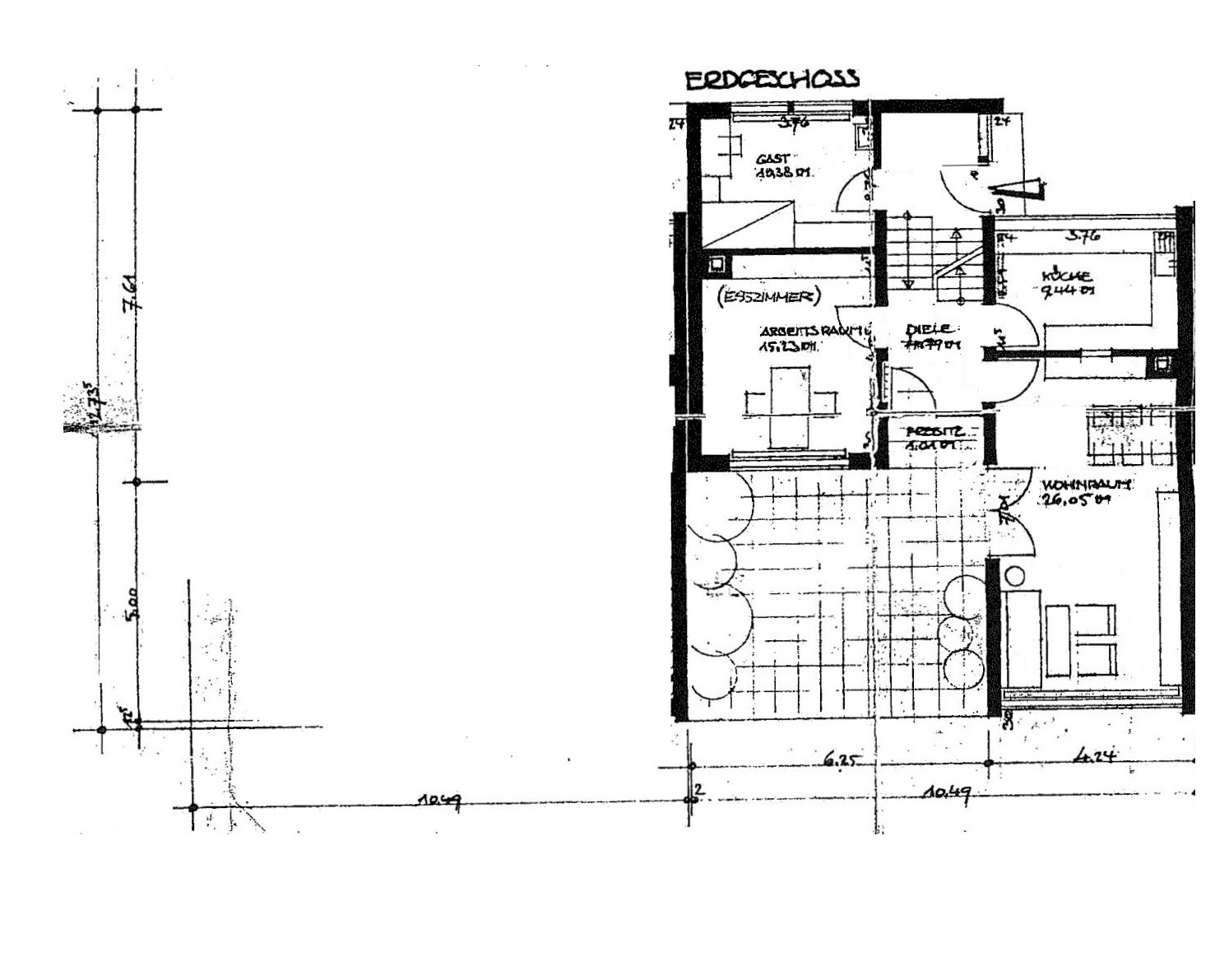
Dieses moderne Reihenendhaus in Massivbauweise BJ 1964 befindet sich im beliebten Ortsteil Lörrach-Salzert und wurde 2024/2025 modernisiert. Die Immobilie besitzt eine großzügige Wohnfläche von ca. 128 m², verteilt auf drei attraktive Wohnebenen.
Das Haus besticht durch seine funktionale Raumaufteilung mit insgesamt 5 Zimmern, darunter 4 geräumige Schlafzimmer, ein großes Badezimmer und ein Gäste-WC. Die moderne Ausstattung bietet alles, was Sie für ein gemütliches Zuhause benötigen. Die Böden sind mit Fliesen und Vinyl in Holzoptik gestaltet, was sowohl stilvoll als auch pflegeleicht ist.
Die Immobilie verfügt über moderne 3-fach verglaste Kunststofffenster mit z. T. elektrischen Jalousien. Zusätzlich bietet das Haus einen großen Garten, der ideal für Familien mit Kindern oder als Rückzugsort im Grünen geeignet ist, eine großzügige Terrasse lädt zu entspannten Stunden oder geselligen Abenden einlädt. Für sonnige Tage steht ein Balkon zur Verfügung, von dem aus Sie den Blick in die Umgebung genießen können.
Mit einer Grundstücksgröße von ca. 386 m² bietet das Haus auch im Außenbereich genügend Platz . Der Keller ergänzt das Raumangebot sinnvoll und lässt keine Wünsche offen, was Stauraum oder zusätzliche Nutzungsmöglichkeiten betrifft. Beheizt wir die Immobilie von einer modernen Gaszentralheizung Baujahr 2013.
Zum Haus gehört eine Einzelgarage und ein Stellplatz vor dem Haus.
Die Immobilie ist ab sofort frei und verfügbar!
Lage
Das charmante Reihenendhaus befindet sich in der lebendigen Stadt Lörrach, einer pulsierenden Region im sonnigen Südwesten Deutschlands. Lörrach ist bekannt für seine hervorragende Infrastruktur und seine Nähe zur Schweiz und Frankreich, was es zu einem idealen Standort für Pendler und Reiselustige macht.
Mit öffentlichen Verkehrsmitteln oder dem Auto sind Sie erreich Sie schnell Einkaufsmöglichkeiten, gemütliche Cafés und eine Auswahl an Restaurants und bieten eine breite Palette kulinarischer Erlebnisse. Die Bildungseinrichtungen der Stadt, von Kindergärten bis zu weiterführenden Schulen, sind gut zu erreichen und sorgen für kurze Wege im täglichen Leben.
Die Gegend ist geprägt von ihrer Naturnähe und bietet zahlreiche Möglichkeiten für Freizeitaktivitäten im Freien, sei es Wandern, Radfahren oder einfach ein entspannter Spaziergang im Grünen. Zudem profitieren Sie von einer ausgezeichneten Verkehrsanbindung; der öffentliche Nahverkehr und die Autobahn sind zügig zu erreichen, was Ihnen flexible Mobilität ermöglicht.
Der kulturelle Reichtum Lörrachs spiegelt sich in den vielfältigen Veranstaltungen und kulturellen Einrichtungen wider, die regelmäßig für Unterhaltung und Inspiration sorgen. Durch die Nähe zur Großstadt Basel eröffnet sich zusätzlich ein breites Spektrum an Kultur- und Freizeitmöglichkeiten.
Diese ideale Lage kombiniert urbanen Komfort mit erholsamer Natur und macht das Reihenendhaus zu einem begehrenswerten Wohnort für Familien und Berufstätige gleichermaßen.
Lade Orte in der Umgebung
Sonstiges
Der Kaufpreis für dieses moderne Reiheneckhaus mit Garten, Garage und Stellplatz beträgt: 670.000 Euro
Wir freuen uns auf Ihre Anfrage und stehen Ihnen für weitere Informationen und zur Vereinbarung eines Besichtigungstermins gerne zur Verfügung. --- Verpassen Sie keine Immobilie mehr! Unser komplettes Immobilienangebot finden Sie immer zuerst auf www.remax.de Gerne helfen wir Ihnen auch beim Verkauf oder der Vermietung Ihrer Immobilie. Karriere bei REMAX? Infos: www.remax.de/karriere