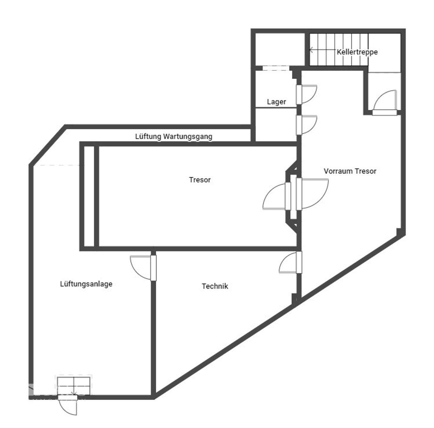
TitelbildFoyerFlächeFlächeFlächeFlächeFlächeFlächeFlächeTreppe zum 1. OG1. OG Flur1. OG Büro/Pausenraum1. OG Büro/Pausenraum1. OG Büro/Durchgang1. OG Flur vor Waschräumen1. OG Büro/Durchgang1. OG Büro1. OG LagerKellertreppeVorraum und TresorTresorraumKellerLüftungErdgeschoss1. Etage1. UG
Eckdaten
Zimmer
Wohnfl.
Grundst.
Kaltmiete
Zimmer
Wohnfl.
Grundst.
4500.0€ Kaltmiete
Basisdaten
Objektnummer
Immopark ID
IP-286091
Objekt ID
FALC-DK-54540
Adresse
22525 Hamburg
Ort
22525 Hamburg
Fakten und Zahlen
Immobilientyp
Bürofläche
Vermarktungsart
Miete / Pacht
Nutzungsart
Gewerbliche Nutzung
Kerndaten
Badezimmer
2.0
Nutzfläche
40 m2
Bürofläche
523 m2
Bauweise / Substanz
Etagenanzahl der Immobilie
2
Verfügbarkeit
Verfügbar ab
sofort
Preisdaten
Preis
Kaltmiete
4.500 €
Nebenkosten
2.000 €
Warmmiete
6.500 €
Mieten Pachten
Heizkosten enthalten
Weitere Kosten
Kaution Info
3 Monatsmieten
Courtage
Provisionspflichtig /provisionsfrei
provisionspflichtig
Käufercourtage
3 Brutto Monatsmieten zzgl. 19% MwSt.
Merkmale
Zimmer und Bereiche
Typ
Voll unterkellert
Sanitäre Einrichtung
Sanitäre Einrichtung
Gäste WC
Gewerbe Merkmale
Bürofläche
523 m2
Stellplätze
Anzahl Stellplätze (gesamt)
3.0
Stellplatzdetails
Freiplatz
Anzahl
3.0
Energie
Energieausweis
Gebäudeart lt. Energieausweis
Nicht Wohngebäude
Umgebung
Es wurden keine Daten angegeben.
Objektbeschreibung
Ehemals von einer Bankfiliale genutzt, steht diese attraktive Fläche nun zur Neuvermietung frei. Im Erdgeschoss ein großer, durchgängiger Raum, mit Leichtbauwänden unterteilbar. Zugang zum Keller und zum Obergeschoss. Dort sind Einzelbüros und/oder Pausenräume möglich. Getrennte Waschräume sind ebenfalls vorhanden.
Ausstattung
Die Fläche ist unrenoviert und wird leer, aber ansonsten so wie auf den Fotos zu sehen ist, übergeben. Der neue Mieter kann daher den Laden entsprechend eigener Vorstellungen gestalten.
Lage
Ideale Lage für Gewerbe. Große Schaufenster und verkehrsgünstige Lage an Hauptstraße und nahe der Autobahn. Es sind drei (Außen-) Stellplätze vorhanden, allerdings ist die Zufahrt recht eng.
Lade Orte in der Umgebung
Sonstiges
Alle Preise verstehen sich zzgl. 19% MwSt. Aufgrund der nötigen Renovierungsarbeiten ist ein Entgegenkommen des Vermieters verhandelbar.
Wir bieten nicht nur eine kostenlose Hotline, sondern auch einen Service am Wochenende. Bei Interesse geben Sie bitte immer Ihre vollständigen Kontaktdaten an.
Die Objektbeschreibung wurde nach bestem Wissen und Gewissen erstellt. Für die Richtigkeit oder Vollständigkeit übernehmen wir jedoch keine Gewähr.
Sie wollen Ihre Immobilie ebenfalls professionell vermarkten? Rufen Sie uns gerne an, wir stehen Ihnen von Mo. bis So. von 6.00 - 22.00 h persönlich zur Seite.