Großzügige sehr gepflegte helle 3,5-Zimmer Wohnung mit Balkon und Stellplatz

Eckdaten

 Zimmer
 Wohnfl.
 Grundst.
Kaufpreis
 Zimmer
 Wohnfl.
Grundst.

Kaufpreis

Basisdaten

Objektnummer
Immopark ID
IP-301808
Objekt ID
1067-621-1-KM
Adresse
Ort
79588 Efringen-Kirchen
Fakten und Zahlen
Wohnungstyp
Etage
Vermarktungsart
Kauf
Nutzungsart
wohnen
Verkaufsstatus
offen
Baujahr
1988
Kerndaten
Wohnfläche
85 m2
Zimmer
3.5
Schlafzimmer
2.0
Badezimmer
1.0
separate WC
1.0
Anzahl Stellplätze (gesamt)
1.0
Bauweise / Substanz
Objektzustand
gepflegt
Lage im Gebäude
Etage
1

Preisdaten

Preis
Kaufpreis
335.000 €
Courtage
provisionspflichtig
Käufercourtage
3,57% inkl. MwSt.
inkl. MwSt.

Merkmale

Zimmer und Bereiche
Anzahl (Balkone)
1.0
Schlaf­zimmer
Fahrrad­raum
Abstell­raum
Ausstattung und Technik
Qualität der Ausstattung
standard
Sanitäre Einrichtung
Dusche
Wanne
Gäste WC
Stellplätze
Anzahl Stellplätze (gesamt)
1.0
Freiplatz
Anzahl
1.0

Energie

Energieausweis
Typ
Verbrauchs­ausweis
EnEV
ab 01.05.2014 (gemäß EnEV 2014)
Energieausweis gültig bis
2029-05-28
Energie­verbrauchs­kennwert gemessen in kWh/(m²a)
88.10

A+ABCDEFGH

wesentlicher Energieträger
Gas
Energieeffizienz­klasse
C
Gebäudeart lt. Energieausweis
Wohngebäude
Heizung
Zentral­heizung

Umgebung

Es wurden keine Daten angegeben.

Objektbeschreibung

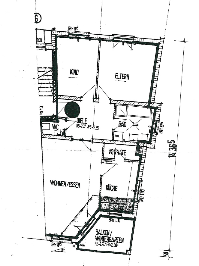
Diese modern gestaltete 3,5-Zimmer Wohnung mit Balkon und Stellplatz befindet sich im 1. OG eines gepflegten Mehrfamilienhaus Baujahr 1988 in guter Lage von Efringen-Kirchen. Die Wohnung verfügt über eine Wohnfläche von ca. 85 m².

Die Highlights dieser schönen Wohnung zusammengefasst:
- ca. 85 qm Wohnfläche
- Großer Flurbereich
- Helles Wohn-/Esszimmer mit Zugang zum großen, überdachten Balkon
- Schlafzimmer mit Platz für Doppelbett und Kleiderschrank
- Büro/Kinderzimmer
- Helle Küche mit neuwertiger Nolte Marken Einbauküche BJ 2014 mit Neff Induktionsherd, Neff Backofen sowie einer Villeroy & Boch Keramikspüle
- Abstell-/Vorratsraum neben der Küche
- Tageslicht Badezimmer mit Waschtisch, WC, Badewanne, Dusche u. Anschluss für Waschmaschine u.Trockner
- separates Gäste-WC
- Sehr gute Raumaufteilung
- Helle, neuwertige Bodenbeläge
- Stellplatz
- Kellerabteil
- Für die gemeinschaftliche Nutzung stehen den Bewohnern ein Fahrradraum und ein Trockenraum zur Verfügung

Die Wohnung ist ab sofort frei und verfügbar!

Ausstattung

Über das helle Treppenhaus erreichen Sie die Wohnung im 1. OG.
Vom großzügigen Flur der Wohnung aus gelangen Sie zu den Wohnräumen:

Dem helle und geräumige Wohn-/Esszimmer mit großen Fensterflächen und Zugang zum Balkon. Direkt an das Wohn-/Esszimmer grenzt die Küche, die mit einer neuwertigen Einbauküche ausgestattet ist. Zudem verfügt die Küche über einen Vorratsraum.
Vom Flurbereich aus haben Sie Zugang zum großen Schlafzimmer, einem Büro/Kinderzimmer, sowie dem Tageslichtbadezimmer mit WC, Waschtisch, Wanne, Dusche und Anschluss für Waschmaschine/Trockner sowie zum separaten Gäste-WC
Zur Wohnung gehören ein Stellplatz und ein Kellerabteil. Ein Trockenraum und ein Fahrradraum stehen zur gemeinschaftlichen Nutzung zur Verfügung.
Die Immobilie wird durch eine Gas-Zentralheizung beheizt.

Lage

Efringen-Kirchen liegt im Landkreis Lörrach und ist die westlichste Gemeinde Baden-Württembergs. Die Lage der Gemeinde Efringen-Kirchen vor den Toren der Städte Basel, Weil am Rhein und Lörrach macht sie zu einem bevorzugten Naherholungsgebiet und bietet auch eine sehr gute Verkehrsanbindung. Die Infrastruktur der Gemeinde ist sehr gut ausgebaut. Kindergärten sowie Grundschulen, ein Schulzentrum mit Haupt- und Realschule stehen zur Verfügung. Weitere Informationen finden Sie unter: http://www.efringen-kirchen.de/
Lade Orte in der Umgebung

Sonstiges

Der Kaufpreis für diese gepflegte 3,5-Zimmer Wohnung inkl. Stellplatz beträgt: 335.000,- €.

Wir freuen uns auf Ihre Anfrage und stehen Ihnen zur Vereinbarung eines Besichtigungstermins gerne zur Verfügung.
---
Verpassen Sie keine Immobilie mehr!
Unser komplettes Immobilienangebot finden Sie immer zuerst auf www.remax.de
Gerne helfen wir Ihnen auch beim Verkauf oder der Vermietung Ihrer Immobilie.
Karriere bei REMAX?
Infos: www.remax.de/karriere

Anbieterdaten

Katja Mattl

Ansprech­partner

Katja Mattl

Ihre Nachricht an RE/MAX Immobilienmakler Lörrach

Ihr Ansprechpartner: Katja Mattl

Mit (*) gekennzeichnete Felder sind Pflichtangaben.