Grundstück mit Altbestand: 790 m² Sonnengrundstück mit Entwicklungspotenzial

Eckdaten

 Zimmer
 Wohnfl.
 Grundst.
Kaufpreis
 Zimmer
 Wohnfl.
 Grundst.

Kaufpreis

Basisdaten

Objektnummer
Immopark ID
IP-314469
Objekt ID
1065-4530-DM
Adresse
Ort
81825 München
Fakten und Zahlen
Haustyp
Abriss­objekt
Haustyp
Einfamilien­haus
Vermarktungsart
Kauf
Nutzungsart
wohnen
Verkaufsstatus
offen
Baujahr
1952
Kerndaten
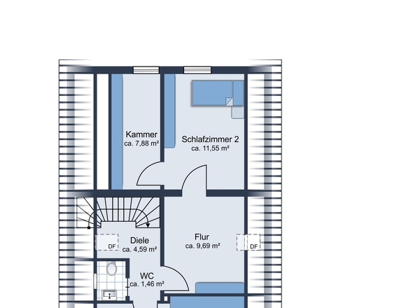
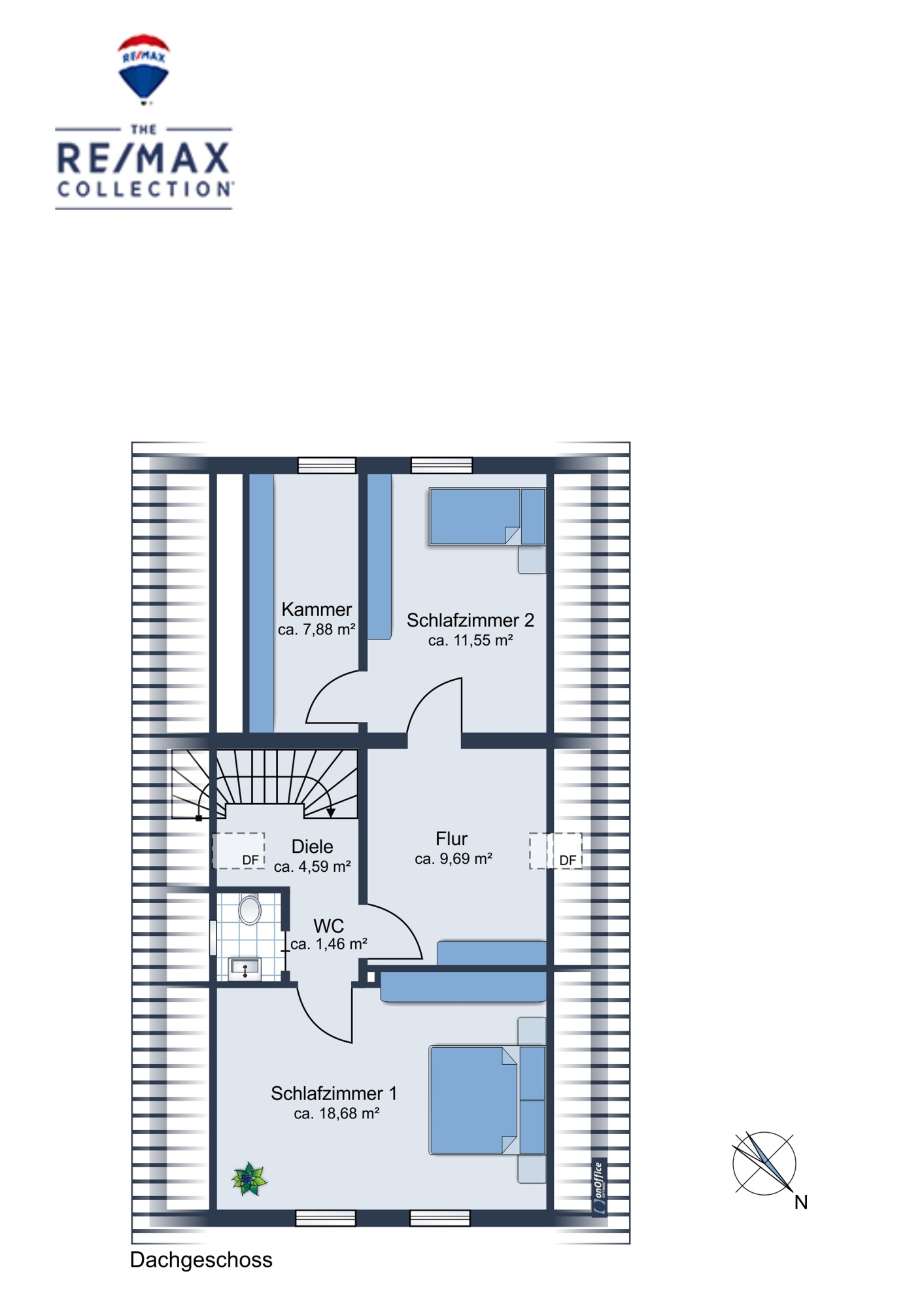
Wohnfläche
137,44 m2
Zimmer
5.0
Schlafzimmer
3.0
Badezimmer
1.5
Gesamtfläche
258,69 m2
Nutzfläche
121,25 m2
Grundstücksfläche
790 m2
Anzahl Stellplätze (gesamt)
1.0
Bauweise / Substanz
Objektzustand
Abrissobjekt
Wohneinheiten
1.0

Preisdaten

Preis
Kaufpreis
1.590.000 €
Kaufpreis pro Quadratmeter
11.568,68 €

Merkmale

Zimmer und Bereiche
Gesamtfläche
30,18 m2
Anzahl (Terrassen)
1.0
Schlaf­zimmer
Stellplätze
Anzahl Stellplätze (gesamt)
1.0
Sonstiger Stellplatz
Anzahl
1.0

Energie

Energieausweis
Typ
Bedarfs­ausweis
EnEV
ab 01.05.2014 (gemäß EnEV 2014)
Energieausweis gültig bis
2036-03-30
Endenergiebedarf gemessen in kWh/(m²a)
447.00

A+ABCDEFGH

wesentlicher Energieträger
Gas
Energieeffizienz­klasse
H
Baujahr lt. Energieausweis
1952
Gebäudeart lt. Energieausweis
Wohngebäude
Heizung
Zentral­heizung
Befeuerungsart
Gas

Umgebung

Es wurden keine Daten angegeben.

Objektbeschreibung

Dieses großzügige Grundstück mit 790 m² ist eine seltene Einladung, Ihre eigenen Wohnvorstellungen in einer der wertvollsten Lagen des Münchner Ostens zu verwirklichen. Eingebettet in ein gewachsenes, hochgeschätztes Wohnumfeld, bietet dieses Areal die perfekte Leinwand für Ihr neues Zuhause.

Ein Neuanfang nach Maß
Das derzeitige Einfamilienhaus aus den 1950er-Jahren macht Platz für Neues. Da das Gebäude nicht mehr heutigen Wohnstandards entspricht, eröffnet sich Ihnen der wertvolle Freiraum für eine individuelle Neubebauung. Ob ein repräsentatives Familiendomizil mit weitläufigem Garten oder ein modernes Architekturkonzept – hier genießen Sie die Freiheit, zeitgemäßes Wohnen mit höchster Lebensqualität zu vereinen.

Sichere Perspektiven für Ihr Zuhause
Das Grundstück liegt im Geltungsbereich des Bebauungsplans Nr. 57n Teil 2 der Landeshauptstadt München und ist als reines Wohngebiet (WR) ausgewiesen. Vorgesehen ist eine offene Bauweise mit Einzel- und Doppelhäusern bei bis zu zwei Vollgeschossen. Die festgelegten Baugrenzen und das definierte Maß der baulichen Nutzung schaffen klare planungsrechtliche Rahmenbedingungen und sorgen gleichzeitig für ein harmonisches, hochwertiges Wohnumfeld. So entsteht die ideale Grundlage, um hier ein individuelles Zuhause zu verwirklichen – eingebettet in eine gewachsene und wertstabile Nachbarschaft.

Ein Garten mit Seele
Der gewachsene Garten präsentiert sich als privater Rückzugsort mit Charakter. Im Gegensatz zu kahlen Neubaugebieten profitieren Sie hier von einem gewachsenen Baum- und Pflanzenbestand, der sofort Privatsphäre und Geborgenheit schenkt. Es ist der ideale Ort für spielende Kinder, entspannte Sommerabende und ein harmonisches Leben im Grünen.

Dieses Grundstück vereint erstklassige Lagequalität mit langfristiger Substanz – das perfekte Fundament für Ihr nachhaltiges Wohnglück.

Gerne stellen wir Ihnen dieses besondere Grundstück persönlich vor.

Ausstattung

- Großzügiges Grundstück mit ca. 790 m²
- Bestandsbebauung Einfamilienhaus
- Aktuelle Wohnfläche: ca. 137,44 m²
- Garten mit Süd-West-Ausrichtung
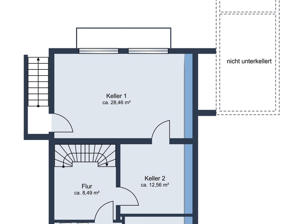
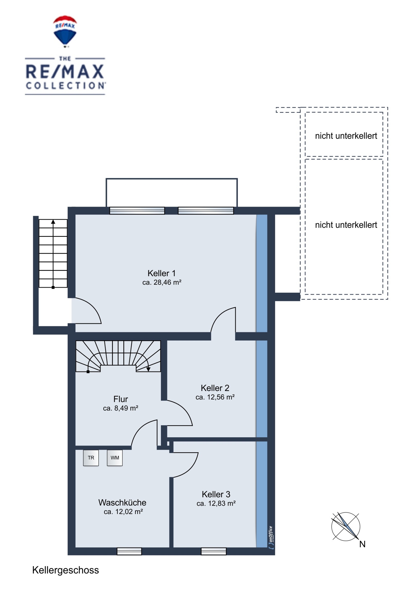
- Unterkellert
- 1 Garagenstellplatz
- Ruhige gewachsene Lage

Bebauung gemäß Bebauungsplans Nr. 57n Teil 2:
Im Planteil ist u. a. festgesetzt:
•WR – Reines Wohngebiet
•überwiegend offene Bauweise
•Einzel- und Doppelhäuser zulässig
•II Vollgeschosse
•GRZ ca. 0,4 (im Plan eingetragen)

Lage

Dieses großzügige Grundstück befindet sich in einer der begehrtesten und familienfreundlichsten Wohnlagen von Waldtrudering. Geprägt durch eine gewachsene Nachbarschaft aus gepflegten Einfamilienhäusern und prachtvollen Gärten, bietet dieses 790 m² große Areal den idealen Rahmen für Ihren individuellen Wohntraum in einem absolut sicheren und wertstabilen Umfeld.

Naturparadies direkt vor der Haustür:
Das besondere Highlight für Naturliebhaber: Die unmittelbare Nähe zum angrenzenden Wasserschutzgebiet und dem Truderinger Forst. Hier genießen Sie eine außergewöhnliche Ruhe und erstklassige Luftqualität. Ob die morgendliche Joggingrunde, ausgedehnte Spaziergänge mit dem Hund oder Abenteuer im Wald mit den Kindern – die Erholung beginnt hier wortwörtlich direkt an Ihrer Gartengrenze.

Perfekte Infrastruktur für den Alltag:
Trotz der idyllischen Lage ist eine hervorragende Versorgung gewährleistet:
Bildung & Betreuung: Ein erstklassiges Angebot an Kindergärten sowie renommierten Grundschulen und Gymnasien ist bequem erreichbar.
Einkaufen: Vielfältige Supermärkte, Bio-Läden und charmante Gastronomie befinden sich im nahen Umkreis.

Anbindung: Per Bus oder S-Bahn erreichen Sie die Münchner Innenstadt in ca. 20 Minuten. Auch die Autobahnen (A99/A94) sind schnell erreicht.

Ein seltenes Juwel für Familien, die Großzügigkeit und die Nähe zur Natur suchen, ohne auf die Vorzüge der Landeshauptstadt zu verzichten.
Lade Orte in der Umgebung

Sonstiges

Dieses Exposé dient ausschließlich zur Vorinformation. Alle Angaben beruhen auf Informationen des Eigentümers und/oder Dritter und wurden mit größter Sorgfalt zusammengestellt. Eine Haftung für Richtigkeit, Vollständigkeit und Aktualität wird nicht übernommen. Zwischenverkauf, Irrtum und Änderungen bleiben vorbehalten.

Angaben zur Bebaubarkeit, zu Flächen, Baujahr, Nutzungsmöglichkeiten beruhen auf Unterlagen und Auskünften des Eigentümers bzw. zuständiger Dritter / Behörden und stellen keine zugesicherten Eigenschaften dar. Die konkrete Bebaubarkeit und Nutzung ist vom Käufer eigenverantwortlich bei den zuständigen Behörden zu prüfen.

Sollte Ihnen die von uns nachgewiesene Immobilie bereits bekannt sein, teilen Sie uns dieses bitte unverzüglich mit. Die Weitergabe dieses Exposés an Dritte ohne unsere Zustimmung löst gegebenenfalls Schadensersatzansprüche aus.

Wir weisen Sie darauf hin, dass unsere Tätigkeit im Erfolgsfall eine Vermittlungs- und/oder Nachweisprovision nach sich zieht. Bei Verkauf beträgt die Provision 3,57% inkl. 19% MwSt. des notariell beurkundeten Kaufpreises. Der Immobilienmakler hat einen provisionspflichtigen Maklervertrag mit dem Verkäufer in gleicher Höhe abgeschlossen.

Anbieterdaten

Dominik Meier

Ansprech­partner

Dominik Meier

Ihre Nachricht an RE/MAX Living / MDV Consult GmbH

Ihr Ansprechpartner: Dominik Meier

Mit (*) gekennzeichnete Felder sind Pflichtangaben.