Historisches Gulfhaus – modernisiert und saniert, mit viel Raum für neue Ideen!

Eckdaten

 Zimmer
 Wohnfl.
 Grundst.
Kaufpreis
Zimmer
Wohnfl.
 Grundst.

Kaufpreis

Basisdaten

Objektnummer
Immopark ID
IP-313652
Objekt ID
1088-59-MS
Adresse
Ort
26624 Südbrookmerland
Fakten und Zahlen
Vermarktungsart
Kauf
Nutzungsart
Gewerbliche Nutzung
Verkaufsstatus
offen
Kerndaten
Nutzfläche
170 m2
Grundstücksfläche
1.365 m2
Anzahl Stellplätze (gesamt)
10.0
Bauweise / Substanz
Objektzustand
teil- vollrenovie­rungsbedürftig
Etagenanzahl der Immobilie
2

Preisdaten

Preis
Kaufpreis
239.000 €
Zus. Preis Info
Der Käufer zahlt im Erfolgsfall an das RE/MAX Büro Krummhörn eine Käuferprovision in Höhe von 3,57 % inkl. 19% MwSt. Die Provision errechnet sich aus dem beurkundeten Kaufpreis.
Courtage
Käufercourtage
3,57 % inkl. 19% MwSt.

Merkmale

Stellplätze
Anzahl Stellplätze (gesamt)
10.0
Freiplatz
Anzahl
10.0

Energie

Energieausweis
Typ
Bedarfs­ausweis
EnEV
ab 01.05.2014 (gemäß EnEV 2014)
Energieausweis gültig bis
2036-03-12
Endenergiebedarf gemessen in kWh/(m²a)
384.90

A+ABCDEFGH

wesentlicher Energieträger
Gas
Energieeffizienz­klasse
H
Baujahr lt. Energieausweis
1933
Gebäudeart lt. Energieausweis
Nicht Wohngebäude
Heizung
Zentral­heizung
Befeuerungsart
Gas

Umgebung

Es wurden keine Daten angegeben.

Objektbeschreibung

Dieses charaktervolle historische Gulfhaus vereint den besonderen Charme traditioneller Bauweise mit bereits erfolgten Modernisierungen und bietet gleichzeitig vielfältige Nutzungsmöglichkeiten. Die Immobilie eignet sich ideal als repräsentativer Gewerbestandort, beispielsweise für Büro, Atelier, Praxis oder kreative Arbeitsbereiche.

Darüber hinaus eröffnet die flexible Gebäudestruktur interessante Perspektiven für eine zukünftige Nutzung zu Wohnzwecken. Für Käufer mit Ideen und Gestaltungswillen bietet dieses besondere Gebäude somit attraktive Möglichkeiten zur individuellen Weiterentwicklung.

In den vergangenen Jahren wurde die Immobilie umfangreich renoviert und teilweise saniert. Besonders hervorzuheben sind das vollständig erneuerte Dach inklusive Dachfenster (2022/2023) sowie die moderne Gasbrennwerttherme aus dem Jahr 2022. Zusätzlich stehen weitere Ausbaureserven zur Verfügung, die zusätzliches Entwicklungspotenzial bieten.

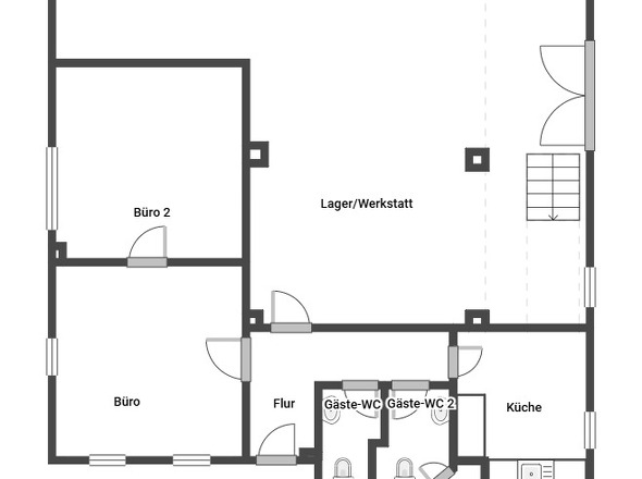
Erdgeschoss
Das Erdgeschoss verfügt über zwei modern gestaltete Büroräume, die sich ideal für eine gewerbliche Nutzung oder flexible Arbeitsbereiche eignen. Ergänzt wird die Ebene durch zwei separate WC-Anlagen sowie eine Küche mit Backofen, Kühlschrank und Mikrowelle. Darüber hinaus stehen großzügige Lager- und Werkstattflächen zur Verfügung, die vielfältige Nutzungsmöglichkeiten bieten und ausreichend Platz für Material, Geräte oder handwerkliche Tätigkeiten schaffen.

Obergeschoss
Im Obergeschoss befinden sich derzeit großzügige Lager- und Abstellflächen, die viel Stauraum bieten. Gleichzeitig eröffnet diese Ebene zusätzliche Ausbaureserven, sodass bei Bedarf weitere Räume geschaffen oder individuelle Nutzungskonzepte umgesetzt werden können.

Außenbereich
Das Grundstück präsentiert sich pflegeleicht und bietet ausreichend befestigte Flächen für mehrere Fahrzeuge. Die vorhandenen Parkmöglichkeiten direkt am Objekt sorgen für eine komfortable Erreichbarkeit sowohl für Bewohner als auch für Kunden oder Geschäftspartner.

Aktuell besteht eine Feuchtigkeitsproblematik im Gebäude. Ein Angebot zur fachgerechten Behebung der Feuchtigkeitsmängel liegt bereits vor und wurde bei der Kaufpreisermittlung entsprechend berücksichtigt.


Fazit:
Wer den Charme eines historischen Gebäudes schätzt und die vorhandenen Möglichkeiten weiterentwickeln möchte, findet in dieser Immobilie viel Raum für individuelle Ideen und langfristige Perspektiven. Dank der flexiblen Raumstruktur, der vorhandenen Ausbaureserven und der vielseitigen Nutzungsmöglichkeiten eignet sich das Objekt sowohl für gewerbliche Konzepte als auch für eine mögliche zukünftige Wohnnutzung. Für Käufer mit Gestaltungswillen bietet sich hier die besondere Gelegenheit ein charaktervolles Gebäude mit Geschichte nach eigenen Vorstellungen weiterzuentwickeln und nachhaltig zu nutzen.

Ausstattung

■ Gasbrennwerttherme aus 2022
■ variable Nutzung (Gewerbe/Wohnen)
■ renoviert und saniert ab 2022
■ Optimierung der Grundrissgestaltung
■ Dach (inkl. Isolierung) und Dachfenster neu (2022/23)
■ Ausbaureserven
■Einbauküche mit Backofen, Kühlschrank und Mikrowelle

Die auf den Bildern abgebildeten Container sind nicht im Kaufpreis enthalten, können aber bei Interesse käuflich erworben werden.

Lage

Moordorf ist mit rund 6.000 Einwohnern der größte Ortsteil der Gemeinde Südbrookmerland im Landkreis Aurich und liegt im Herzen Ostfrieslands im Städtedreieck Aurich, Emden und Norden. Der Ort hat sich aus einer historischen Moorkolonie zu einem lebendigen Wohn- und Versorgungsstandort entwickelt und gilt heute als wirtschaftliches Zentrum der Gemeinde. Zahlreiche Einkaufsmöglichkeiten, gastronomische Angebote, Banken und Dienstleistungsbetriebe sorgen für eine gute Versorgung im Alltag.

Familien profitieren von verschiedenen Bildungs- und Betreuungsangeboten wie der Grundschule Moordorf sowie mehreren Kindertagesstätten im Gemeindegebiet. Weiterführende Schulen und ein erweitertes medizinisches Angebot befinden sich in den nahegelegenen Städten Aurich, Emden und Norden. Zusätzlich entsteht im nahegelegenen Georgsheil das neue Zentralklinikum Ostfriesland, das künftig eine moderne und leistungsfähige Gesundheitsversorgung für die gesamte Region bieten wird.

Die Umgebung zeichnet sich durch einen hohen Freizeit- und Erholungswert aus. Die typisch ostfriesische Landschaft mit Kanälen, Wiesen und gut ausgebauten Radwegen lädt zu ausgedehnten Spaziergängen und Fahrradtouren ein. Besonders beliebt ist das nahegelegene Große Meer, der größte Binnensee Ostfrieslands, der vielfältige Möglichkeiten zum Segeln, Surfen, Angeln und zur Naherholung bietet. Ein kulturelles Highlight ist zudem das Moormuseum Moordorf, das die Geschichte der Moorkolonisation anschaulich darstellt.

Auch die Nordseeküste mit dem Küstenort Norddeich sowie den Fährverbindungen zu den Inseln Norderney und Juist ist schnell erreichbar und bietet zusätzliche Ausflugsmöglichkeiten.

Verkehrstechnisch ist Moordorf gut angebunden. Über die nahegelegenen Bundesstraßen Bundesstraße 72 und Bundesstraße 210 bestehen schnelle Verbindungen nach Aurich, Emden und Norden sowie zur Autobahn A31. Busverbindungen sorgen für eine gute Anbindung an die umliegenden Orte, während Bahnanschlüsse über den Regionalbahnhof Bahnhof Marienhafe und den Fernverkehrsbahnhof Emden Hauptbahnhof bestehen. Insgesamt bietet Moordorf damit eine attraktive Kombination aus ruhigem Wohnen, guter Infrastruktur und hoher Lebensqualität in einer landschaftlich reizvollen Region Ostfrieslands.
Lade Orte in der Umgebung

Sonstiges

Gerne vermitteln wir Ihnen über unseren unabhängigen Finanzdienstleister ein günstiges und auf Sie individuell angepasstes Finanzierungsangebot.

Unser Netzwerk aus Handwerksfirmen, Raumausstattern und Versicherern steht Ihnen auch nach dem Kauf zur Seite – über unseren kostenlosen After-Sales-Service.

Sie interessieren sich für einen Erwerb als Kapitalanlage? Auch hierbei unterstützen wir Sie gerne – inklusive Vermietungsservice und Objektverwaltung.

Unser RE/MAX-Servicepartner übernimmt auf Wunsch die Haus- und Gartenpflege – saisonal oder ganzjährig. Dies beinhaltet unter anderem Objektreinigung, Gartenpflege, Winterdienst und Ferienvermietungsservice.

Sie kennen jemand, der ein Haus, Wohnung oder Gewerbefläche verkaufen oder vermieten möchte? Dann empfehlen Sie mich gerne weiter oder kontaktieren mich direkt und verdienen sich eine attraktive Vermittlungsprovision bei erfolgreicher Vermittlung/Verkauf!

Für weitere Informationen steht Ihnen Herr Martin Stenzel gerne telefonisch und per E-Mail zur Verfügung.

Mit Leidenschaft für unsere Kunden und Heimat!

Bitte beachten Sie auch unsere Allgemeinen Geschäftsbedingungen, sowie die Informationen zum gesetzlichen Widerruf. Beides finden Sie auch unter www.remax-krummhoern.de

Hinweis:
Die bereitgestellten Objektinformationen, Unterlagen und Pläne stammen vom Verkäufer bzw. Vermieter. Eine Haftung für deren Richtigkeit und Vollständigkeit kann daher nicht übernommen werden. Alle Angebote sind freibleibend und vorbehaltlich Irrtümern, Zwischenverkauf, Zwischenvermietung oder anderweitiger Verwertung.

Anbieterdaten

Martin Stenzel

Ansprech­partner

Martin Stenzel

Ihre Nachricht an RE/MAX ImmobilienPartner Ostfriesland - Krummhörn

Ihr Ansprechpartner: Martin Stenzel

Mit (*) gekennzeichnete Felder sind Pflichtangaben.