Hochwertiges Dachgeschoss-Ensemble mit traumhaften Dachterrassen in Bestlage Düsseldorf-Düsseltal

Eckdaten

 Zimmer
 Wohnfl.
 Grundst.
Kaufpreis
 Zimmer
 Wohnfl.
Grundst.

Kaufpreis

Basisdaten

Objektnummer
Immopark ID
IP-306895
Objekt ID
LDW1.TBA.10678
Adresse
Ort
40237 Düsseldorf
Fakten und Zahlen
Wohnungstyp
Etage
Vermarktungsart
Kauf
Nutzungsart
wohnen
Verkaufsstatus
offen
Baujahr
1954
Kerndaten
Wohnfläche
166 m2
Zimmer
6.0
Schlafzimmer
3.0
Badezimmer
3.0
separate WC
3.0
Bauweise / Substanz
Objektzustand
teil- vollsaniert
Bauweise
Massivhaus
Bestimmungen
Nichtraucher

Preisdaten

Preis
Kaufpreis
1.088.000 €
Weitere Kosten
Hausgeld
529,40 €
Courtage
Käufercourtage
3,57 % inkl. MwSt.
inkl. MwSt.

Merkmale

Zimmer und Bereiche
Voll unterkellert
Gesamtfläche
35 m2
Schlaf­zimmer

Energie

Energieausweis
Typ
Verbrauchs­ausweis
EnEV
ab 01.05.2014 (gemäß EnEV 2014)
Energieausweis gültig bis
2028-10-15
Energie­verbrauchs­kennwert gemessen in kWh/(m²a)
75.00

A+ABCDEFGH

Energieeffizienz­klasse
C
Baujahr lt. Energieausweis
1995
Gebäudeart lt. Energieausweis
Wohngebäude
Befeuerungsart
Gas

Umgebung

Es wurden keine Daten angegeben.

Objektbeschreibung

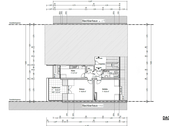
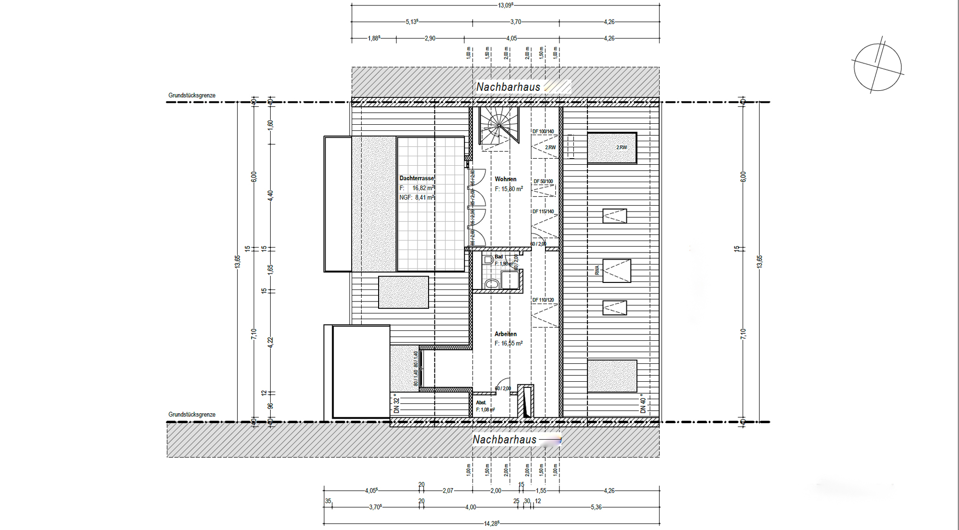
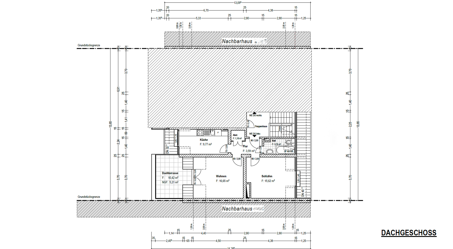
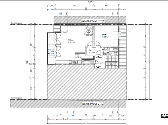
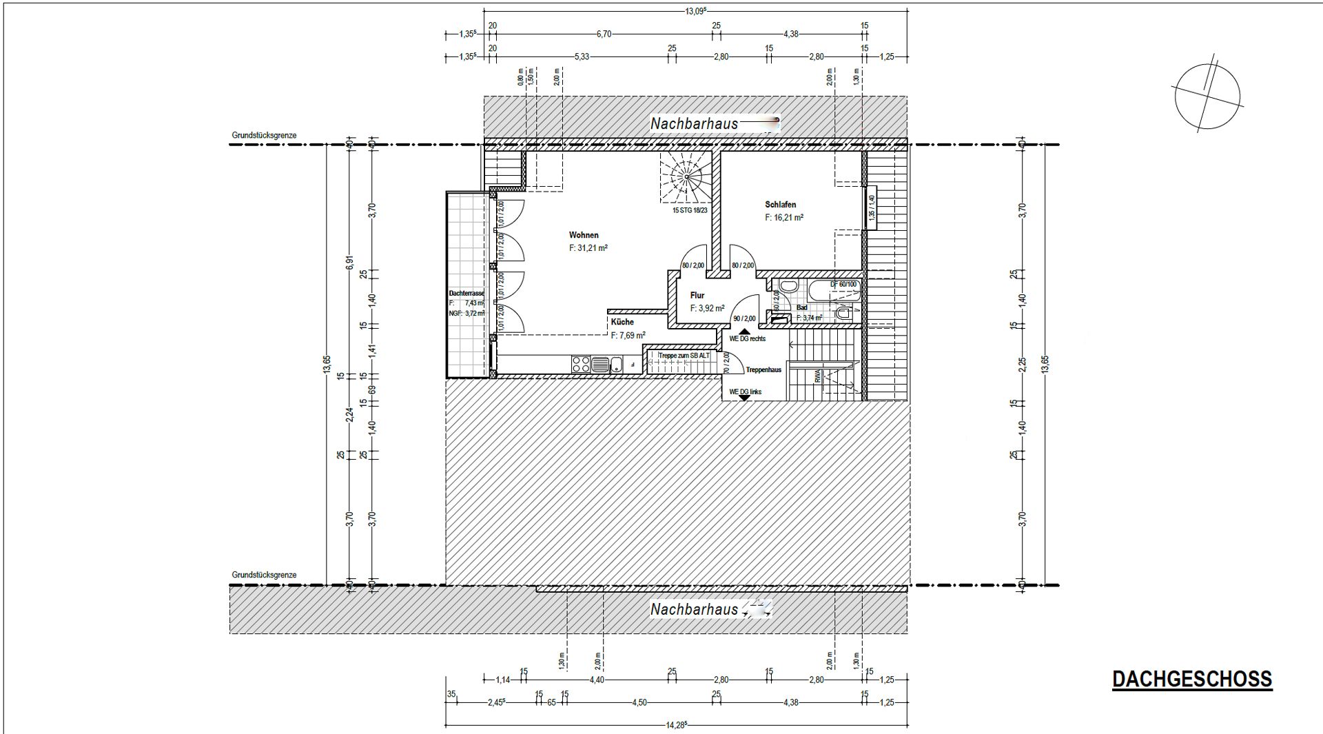
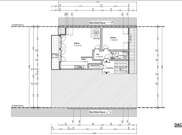
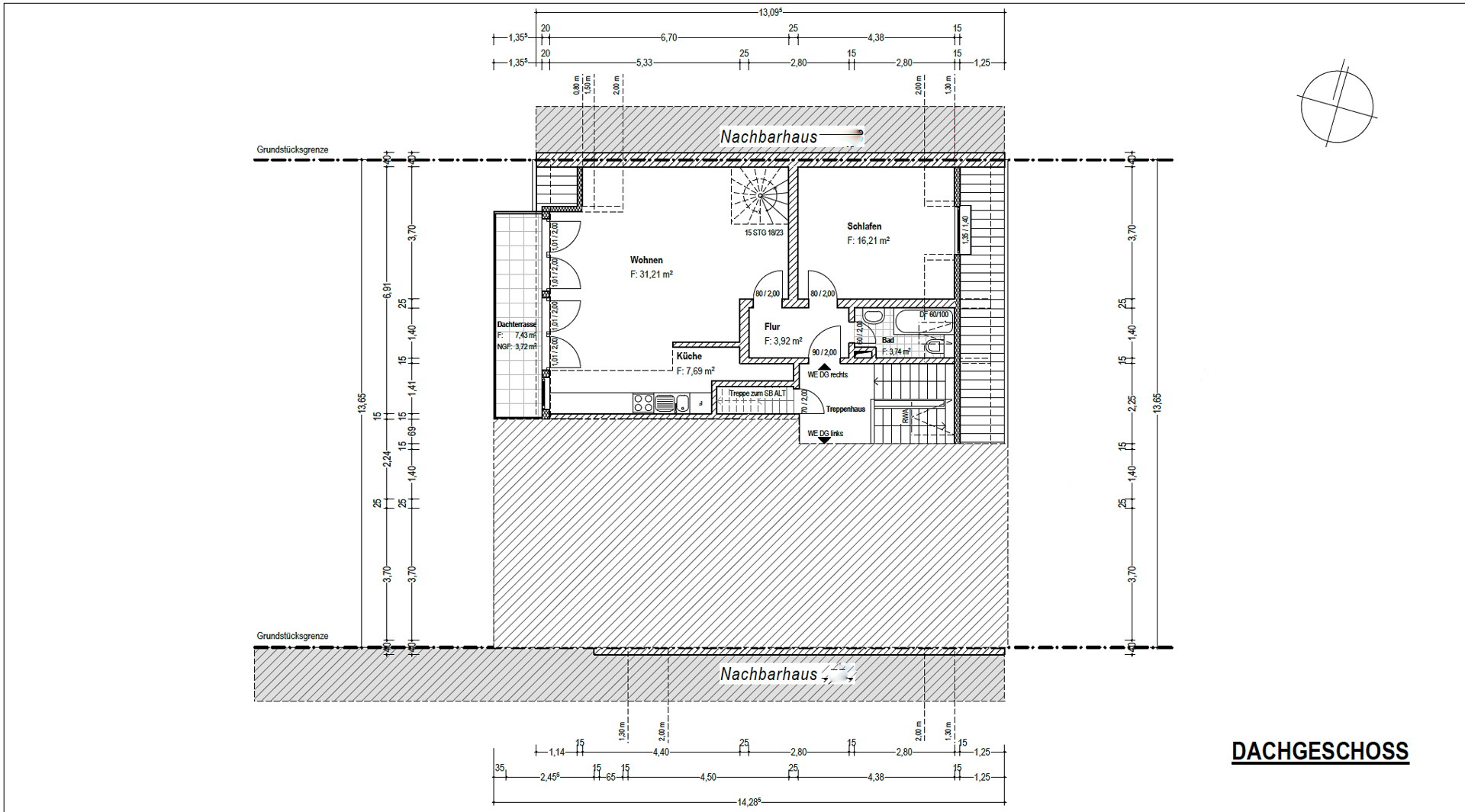
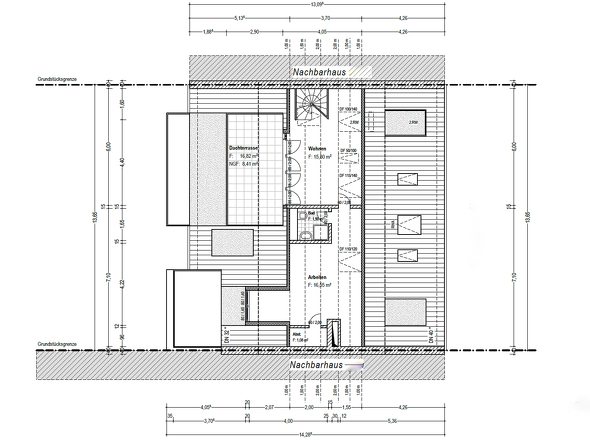
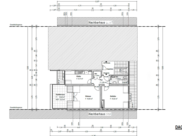
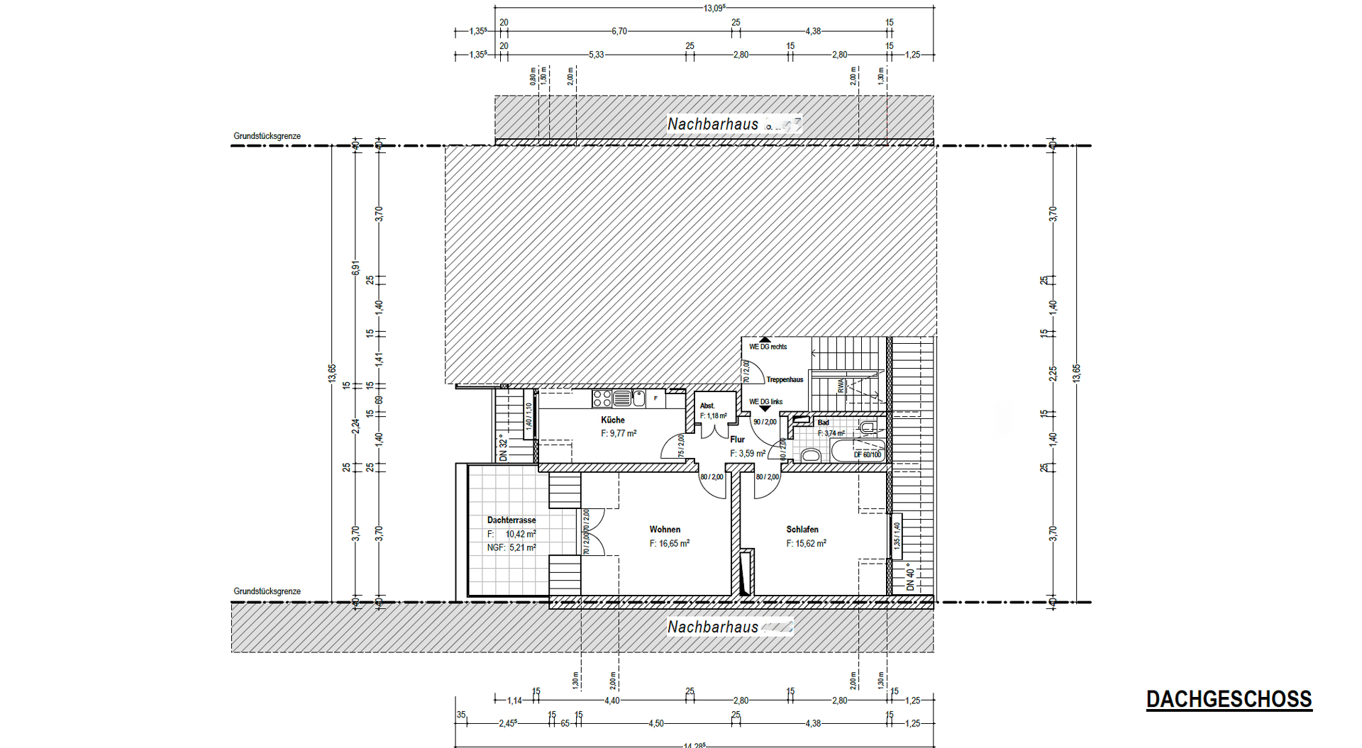
Das hier angebotene Wohnungs­paket umfasst zwei eigenständige, hochwertig ausgebaute Wohneinheiten auf der vierten Etage (Dachgeschoss) eines gepflegten Mehrfamilienhauses in begehrter Lage von Düsseldorf-Düsseltal. Beide Wohnungen sind die einzigen Einheiten auf dieser Etage, was ein außergewöhnliches Maß an Privatsphäre schafft und zugleich eine seltene bauliche Perspektive eröffnet: Ein Durchbruch zwischen den Wohnungen erscheint möglich und eröffnet damit das Potenzial zur Schaffung einer großzügigen, zusammenhängenden Wohneinheit mit weit überdurchschnittlichem Raumangebot.

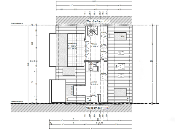
In der aktuellen Konfiguration verfügen die beiden Einheiten gemeinsam über ca. 166 m² Wohnfläche sowie drei wundervolle Dachterrassen. Die größere Einheit ist als Maisonette mit insgesamt ca. 110 m² Wohnfläche über zwei Ebenen ausgeführt und überzeugt durch ein offenes, lichtdurchflutetes Wohnkonzept, hochwertige Sanierung, edle Materialien und außergewöhnlichen Dachterrassen, darunter eine großzügige Terrasse im oberen Geschoss mit West-Südwest-Ausrichtung und beeindruckendem Weitblick. Die zweite Wohnung ergänzt das Ensemble ideal auf ca. 56 m² Wohnfläche mit einem klar strukturierten Grundriss, hellen Räumen, einer weiteren sonnigen Dachterrasse sowie einem modernen Bad mit Tageslicht.

Beide Wohnungen befinden sich in einem sehr gepflegten bis hochwertig sanierten Zustand. Dach und Fenster wurden erneuert, die Haustechnik und Leitungen präsentieren sich solide und zeitgemäß. Der Energieausweis weist für beide Einheiten einen Endenergiebedarf von 75 kWh/m²a (Energieeffizienzklasse C) aus und liegt jeweils haarscharf an der Schwelle zur Energieeffizienzklasse B. Die Beheizung erfolgt über eine Gaszentralheizung mit zentraler Warmwasserbereitung. Die Hausgeldkosten bewegen sich für beide Einheiten mit 529,40 € auf einem moderaten Niveau.

Das Gesamtangebot richtet sich insbesondere an Eigennutzer mit Anspruch, die ein großzügiges, individuelles Wohnkonzept auf einer gesamten Etage realisieren möchten – sei es als repräsentative Familienwohnung, Wohnen und Arbeiten auf einer Ebene oder als Kombination aus Eigennutzung und separater Einheit. Ebenso ist das Paket für Kapitalanleger interessant, die zwei hervorragend vermietbare Einheiten in absoluter Toplage erwerben möchten und sich zugleich eine zukünftige Zusammenlegung offenhalten wollen.

Die ruhige Anliegerstraße und das gewachsene Umfeld von Düsseltal bieten ein tolles Wohngefühl. Parken ist gut über den Bewohnerparkausweis sowie zusätzliche Anmietmöglichkeiten von (Tiefgaragen-)Stellplätzen in der näheren Umgebung möglich.

Die Kombination aus Etagenexklusivität, außergewöhnlichen Außenflächen, hochwertigem Zustand und der seltenen Option einer wohnungsübergreifenden Zusammenlegung macht dieses Immobilienpaket zu einer absoluten Besonderheit am Düsseldorfer Markt. Die Wohnungen können ggf. auch einzeln erworben werden.

Lage

In einer ruhigen Anliegerstraße im Herzen von Düsseltal gelegen, verbindet diese Adresse kompromisslose Wohnqualität mit einer Lage, die in Düsseldorf zu den begehrtesten zählt. Die Umgebung vermittelt ein Gefühl vollkommener Ruhe, während die durchdachte städtische Infrastruktur sämtliche Annehmlichkeiten des täglichen Lebens in unmittelbarer Nähe bereithält. Die charmante Rethelstraße mit ihren vielfältigen Einkaufsmöglichkeiten, Feinkostläden, traditionellen Bäckereien, modernen Boutiquen sowie einer Auswahl an Cafés und ausgezeichneten Restaurants ist bequem zu Fuß erreichbar. Ärzte, Banken und alltägliche Dienstleister liegen ebenfalls nur wenige Schritte entfernt und runden das komfortable Wohnumfeld ab.

Die berühmte Königsallee in Düsseldorf erreichen Sie bequem in etwa 10 Gehminuten oder alternativ in rund 3 Minuten mit den öffentlichen Verkehrsmitteln.

Für naturnahe Erholung bietet der wunderschöne Zoopark – ehemaliger Tierpark und heute eines der beliebtesten Grünareale des Viertels – eine idyllische Kulisse mit Spielplätzen, Spazierwegen und einem kleinen See. Darüber hinaus erwartet Sie der nahegelegene Grafenberger Wald, ein weitläufiges Naturgebiet, das zu Spaziergängen, Joggingrunden oder entspannten Auszeiten einlädt. Dass Düsseltal als das grünste Viertel der Stadt gilt, zeigt sich an den üppig bepflanzten Grünstreifen und den prachtvollen Alleen, die das gesamte Quartier durchziehen und zum Flanieren einladen.

Kulturell und verkehrstechnisch präsentiert sich Düsseltal ebenfalls erstklassig: Dank der hervorragenden Anbindung an den öffentlichen Nahverkehr sowie die Nähe zum internationalen Flughafen Düsseldorf erreichen Sie sowohl die Düsseldorfer Innenstadt mit Oper, Museen, Theatern und dem pulsierenden Medienhafen als auch die umliegenden Metropolen Köln und Duisburg in kürzester Zeit. Die zentrale Lage des Viertels – genau in der geographischen Mitte Düsseldorfs, was eine im Boden eingelassene Tafel eindrucksvoll markiert – unterstreicht die besondere Bedeutung dieses Standorts. Der Stadtteil grenzt im Westen an Stadtmitte und Pempelfort, im Norden an Derendorf und Mörsenbroich, im Osten an Grafenberg und im Süden an Flingern-Nord. Die Bahnlinie Köln–Düsseldorf–Duisburg bildet die östliche Grenze und gewährleistet hervorragende regionale Mobilität.

Ein lebendiger Bestandteil des Viertels ist der Wochenmarkt am Ahnfeldplatz, der donnerstags und samstags stattfindet und mit frischen, lokalen Produkten von regionalen Landwirten überzeugt. Die Eissporthalle, ein bekanntes Wahrzeichen des Stadtteils, sorgt zudem für sportliche Abwechslung und lädt zu spannenden Spielen der lokalen Eishockeymannschaft ein.

Wohnen in Düsseltal bedeutet, urbanes Leben und Naturnähe in idealer Weise zu verbinden – ein Zusammenspiel aus Ruhe, Lebensqualität, Infrastruktur und kultureller Vielfalt, wie es in Düsseldorf nur selten zu finden ist.
Lade Orte in der Umgebung

Sonstiges

Für die Richtigkeit sowie der Vollständigkeit der genannten Immobilienangabe übernehmen wir keine Haftung. Diese basieren ausschließlich auf Angaben vom Eigentümer.

Provisionsanspruch: Wir haben Ihnen für diese Immobilie eine Gelegenheit zum Kauf vorgestellt und nachgewiesen. Sollte es infolgedessen für dieses Objekt zu einem Kaufvertragsabschluss mit der Eigentümerseite kommen, wird hiermit darauf hingewiesen, dass Nachweis bzw. Vermittlung ausschließlich durch uns zustande kamen und somit wird, im Falle des Zustandekommens eines Kaufvertrages, die nachfolgend aufgeführte Maklerprovision fällig und zahlbar.

Maklerprovision: Die Höhe der vom Käufer bei Abschluss eines Kaufvertrages zu entrichtende Maklerprovision beträgt im Falle des Erwerbs einer Immobilie 3,57 % inkl. MwSt. des notariell beurkundeten Kaufpreises. Diese Maklerprovision ist verdient und fällig bei Abschluss des Kaufvertrages.

Der Maklervertrag mit uns kommt entweder durch schriftliche Vereinbarung oder auch durch die Inanspruchnahme unserer Maklertätigkeit auf der Basis des Objekt-Exposés und seiner Bedingungen zustande. Sollte das von uns nachgewiesene Objekt bereits bekannt sein, teilen Sie uns dieses bitte unverzüglich mit.

Widerrufsrecht: Ihr Widerrufsrecht ist in § 355 des BGB geregelt und schützt Sie als Verbraucher vor vertraglichen Bedingungen. Sie als Verbraucher haben das Recht, sich unter bestimmten Voraussetzungen von einem bereits geschlossenen Vertrag innerhalb gesetzlicher Fristen durch Erklärung des Widerrufs zu lösen.

GELDWÄSCHE: Als Immobilienmaklerunternehmen sind wir nach § § 1, 2 Abs. 1 Nr. 10, 4 Abs. 3 Geldwäschegesetz (GwG) dazu verpflichtet, vor Begründung einer Geschäftsbeziehung die Identität des Vertragspartners festzustellen und zu überprüfen. Hierzu ist es erforderlich, dass wir die relevanten Daten Ihres Personalausweises festhalten - beispielsweise mittels einer Kopie. Das Geldwäschegesetz (GwG) sieht vor, dass der Makler die Kopien bzw. Unterlagen fünf Jahre aufbewahren muss.

Anbieterdaten

Tobias Bartsch

Ansprech­partner

Tobias Bartsch

Ihre Nachricht an Königskinder Immobilien GmbH

Ihr Ansprechpartner: Tobias Bartsch

Mit (*) gekennzeichnete Felder sind Pflichtangaben.