Ihr neues Zuhause in ruhiger Sackgassenlage – Einfamilienhaus mit großem Grundstück in Holtrup
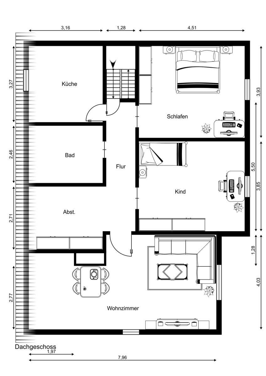
Haufront ,ExposeBüro, ErdgeschossKücheKüche EG (2)WohnzimmerEsszimmer ,ErdgeschossGästezimmerKinderzimmer OG (2)Kinderzimmer OGSchlafzimmer OGWaschküche KellerKaminzimmer KellerBildBildBildErdgeschossgrundriss Feenweg 5, 32457 Porta Westfalica-1DachgeschossgrundrissSchnitt Feenweg 5, 32457 Porta Westfalica-1Feenweg,Gartensicht
Eckdaten
Zimmer
Wohnfl.
Grundst.
Kaufpreis
Zimmer
Wohnfl.
Grundst.
289000.0€ Kaufpreis
Basisdaten
Objektnummer
Immopark ID
IP-301542
Objekt ID
2664
Adresse
32457 Porta Westfalica
Ort
32457 Porta Westfalica
Fakten und Zahlen
Haustyp
Einfamilienhaus
Vermarktungsart
Kauf
Nutzungsart
wohnen
Verkaufsstatus
offen
Baujahr
1974
Kerndaten
Wohnfläche
170 m2
Zimmer
6.0
Schlafzimmer
3.0
Badezimmer
3.0
Grundstücksfläche
535 m2
Anzahl Stellplätze (gesamt)
4.0
Bauweise / Substanz
Objektzustand
gepflegt
Preisdaten
Preis
Kaufpreis
289.000 €
Courtage
Käufercourtage
Die Käuferprovision beträgt 3,57 % vom Kaufpreis inkl. MwSt.
Merkmale
Zimmer und Bereiche
Anzahl (Terrassen)
1.0
Zimmer und Räume
Schlafzimmer
Ausstattung und Technik
TV Anschluss
Kabel Sat TV
Stellplätze
Anzahl Stellplätze (gesamt)
4.0
Stellplatzdetails
Carport
Anzahl
4.0
Stellplatzdetails
Garage
Anzahl
4.0
Energie
Energieausweis
Typ
Verbrauchsausweis
EnEV
ab 01.05.2014 (gemäß EnEV 2014)
Energieausweis gültig bis
2035-09-15
Energieverbrauchskennwert gemessen in kWh/(m²a)
243.30
A+ABCDEFGH
wesentlicher Energieträger
Öl
Energieeffizienzklasse
G
Baujahr lt. Energieausweis
1974
Gebäudeart lt. Energieausweis
Wohngebäude
Befeuerungsart
Befeuerungsart
Öl
Umgebung
Es wurden keine Daten angegeben.
Objektbeschreibung
Dieses Einfamilienhaus aus dem Jahr 1974 liegt ruhig und familienfreundlich in einer Sackgasse in Holtrup auf einem sonnigen Eckgrundstück mit 535 m². Es bietet insgesamt ca. 170 m² Wohn- Nutzfläche, davon ca. 100 m² Wohnfläche im Erdgeschoss und ca. 70 m² Nutzfläche im ausgebauten Dachgeschoss. Weiterhin steht Ihnen ein großzügiger Vollkeller mit Außentreppe zur Verfügung – und damit viel Platz, um sich den Traum vom eigenen Zuhause zu erfüllen. Im Erdgeschoss empfängt Sie ein heller Eingangsbereich, von dem aus alle Räume zentral zugänglich sind. Eine schöne Holztreppe führt ins Dachgeschoss, das derzeit als Nutzfläche mit Schlafräumen genutzt wird – ideal für Kinder, Gäste oder Homeoffice. Das Herzstück des Hauses ist der großzügige Wohn- und Essbereich, der viel Platz für das Familienleben bietet. Vom Wohnzimmer und vom angrenzenden Büro aus haben Sie direkten Zugang zur großen Terrasse mit Blick in den Garten – ein idealer Ort für entspannte Stunden und Spielen im Freien. Die Einbauküche ist praktisch geschnitten und über eine Durchreiche mit dem Essbereich verbunden. Ein modernisiertes Tageslichtbad aus (2020) mit ebenerdiger Dusche, Badewanne und WC sowie ein separates Gäste-WC ergänzen das Erdgeschoss. Zwei weitere Zimmer bieten sich flexibel als Büro, Gäste- oder Kinderzimmer an. Im Vollkeller befinden sich eine Waschküche, Vorratsräume, ein Werkraum, ein Bad mit Dusche/WC sowie ein gemütlicher Partyraum mit Kamin. Ein Gasanschluss liegt bereits im Keller, und ein Glasfaseranschluss ist ebenfalls im Haus vorhanden – ideale Voraussetzungen für modernes Wohnen. Beheizt wird das Haus aktuell über eine Ölheizung (Niedertemperaturkessel aus ca. 2009). Dieses Haus bietet viel Raum für eigene Ideen – und die Möglichkeit sich zu verwirklichen.
Ausstattung
- Einfamilienhaus Baujahr 1974 - Wohnfläche EG: ca. 100 m² - zusätzlich teilausgebautes OG mit Nutzfläche ca 70 m² - Vollkeller (ca. 102 m²) mit Außentreppe - 3 Schlafzimmer + 1 Gästezimmer im EG - 1 modernes Bad (EG, 2020 erneuert, altersgerecht, mit Dusche, Badewanne & WC) - 1 Gäste-WC (EG, blau gefliest) - Bad im Keller mit Dusche & WC - Einbauküche mit Elektrogeräten - Fußbodenheizung in Teilen des EG (Flur, Küche, Bad, Gäste-WC, Eingangsbereich) - Ölzentralheizung (Niedertemperaturkessel, ca. 2009 erneuert), Heizöltank ca. 7.000 l - Gasanschluss im Haus vorhanden - Glasfaseranschluss bis Dachboden verlegt - Kamin im Keller (Partyraum mit Kamin) - Terrasse mit Markise - Garage (ohne direkten Hauszugang) + zusätzlicher Carport - Gartenhaus vorhanden - Fenster: Mahagoni-Holz, im EG überwiegend erneuert mit 2-fach-Verglasung - Bodenbeläge: überwiegend Stäbchenparkett und Fliesen, Keller komplett gefliest
Lage
Das Objekt liegt in einer ruhigen, familienfreundlichen Anwohner-Sackgasse (30 km/h-Zone) in Holtrup. Die Umgebung ist geprägt von gepflegten Einfamilienhäusern mit viel Grün. Kurze Wege führen in den Wald sowie zur Weser, was ideal für Spaziergänge, Freizeit und Erholung ist. Einkaufsmöglichkeiten, Schulen, Kindergärten und medizinische Versorgung sind im nahen Umfeld vorhanden. Eine gute Verkehrsanbindung sorgt zudem für schnelle Erreichbarkeit der umliegenden Städte.
Lade Orte in der Umgebung
Sonstiges
Es liegt ein Energieverbrauchsausweis vor. Dieser ist gültig bis 15.9.2035. Endenergieverbrauch beträgt 243.30 kwh/(m²*a). Wesentlicher Energieträger der Heizung ist Öl. Das Baujahr des Objekts lt. Energieausweis ist 1974. Die Energieeffizienzklasse ist G.
- Grundstück: 535 m² - Regenwasserzisterne (ca. 3.000 l) - Weichwasseranlage im Keller - Starkstromanschluss im Keller - Schornstein 3-zügig, keine Verrohrung notwendig - Kaufpreis: 309.000 € - Übernahme: nach Vereinbarung (Haus ist bereits frei.)
Für weitere Informationen oder zur Vereinbarung eines Besichtigungstermins stehe ich Ihnen gerne jederzeit zur Verfügung. Ich freue mich auf Ihre Kontaktaufnahme!