Jeder bekommt seine eigene Etage! Terrasse und Garage und viel Platz auf engstem Raum
StraßenansichtTerrassenblickEntréWohnzimmer mit TerrasseTerrasseKücheKinderzimmerSchlafzimmerHobby _ Kind _ Schlafen im DachgeschossEinbauschränke im FlurDurchgang zur GarageLageplanQR-LageplanErdgeschossDachgeschoss1. Obergeschoss2. ObergeschossPreis gesenkt
Eckdaten
Zimmer
Wohnfl.
Grundst.
Kaufpreis
Zimmer
Wohnfl.
Grundst.
120000.0€ Kaufpreis
Basisdaten
Objektnummer
Immopark ID
IP-306977
Objekt ID
FALC-TB-79019
Adresse
07381 Pößneck
Ort
07381 Pößneck
Fakten und Zahlen
Haustyp
Reihenendhaus
Vermarktungsart
Kauf
Nutzungsart
wohnen
Baujahr
1800
Kerndaten
Wohnfläche
154 m2
Zimmer
4.0
Schlafzimmer
3.0
Badezimmer
2.0
Nutzfläche
2 m2
Grundstücksfläche
120 m2
Anzahl Stellplätze (gesamt)
1.0
Bauweise / Substanz
Objektzustand
vollsaniert
Letzte Renovierung
2025
Etagenanzahl der Immobilie
4
Verfügbarkeit
Verfügbar ab
sofort
Preisdaten
Preis
Kaufpreis
120.000 €
Courtage
Provisionspflichtig /provisionsfrei
provisionspflichtig
Käufercourtage
3,57 % inkl. MwSt. vom notariell vereinbarten Kaufpreis
Merkmale
Zimmer und Bereiche
Gesamtfläche
25 m2
Anzahl (Balkone)
1.0
Anzahl (Terrassen)
1.0
Zimmer und Räume
Schlafzimmer
Zimmer und Räume
Abstellraum
Ausstattung und Technik
Qualität der Ausstattung
standard
Böden
Fliesenboden
Böden
Laminat
Sanitäre Einrichtung
Sanitäre Einrichtung
Dusche
Sanitäre Einrichtung
Wanne
Sanitäre Einrichtung
Gäste WC
Besondere Merkmale
Besondere Merkmale
WG-geeignet
Besondere Merkmale
Nutzung als Ferienimmobilie
Stellplätze
Anzahl Stellplätze (gesamt)
1.0
Stellplatzdetails
Freiplatz
Stellplatzdetails
Carport
Anzahl
1.0
Energie
Energieausweis
Typ
Bedarfsausweis
EnEV
ab 01.05.2014 (gemäß EnEV 2014)
Energieausweis gültig bis
20.11.2035
Endenergiebedarf gemessen in kWh/(m²a)
183.09
A+ABCDEFGH
wesentlicher Energieträger
Gas
Energieeffizienzklasse
F
Ausstelldatum
21.11.2025
Gebäudeart lt. Energieausweis
Wohngebäude
Befeuerungsart
Befeuerungsart
Gas
Umgebung
Es wurden keine Daten angegeben.
Objektbeschreibung
Willkommen in Ihrem neuen Zuhause – einem charmanten Reihenendhaus in begehrter Lage von Pößneck, das mit über 150 m² Wohnfläche auf mehreren Ebenen viel Raum für Leben, Familie und individuelle Wohnträume bietet. Gerade diese Etagenbauweise verleiht der Immobilie ihren besonderen Reiz: Sie verbindet Individualität und Flexibilität – ideal, um Wohnen, Arbeiten und Rückzug ganz nach Ihren Bedürfnissen zu gestalten.
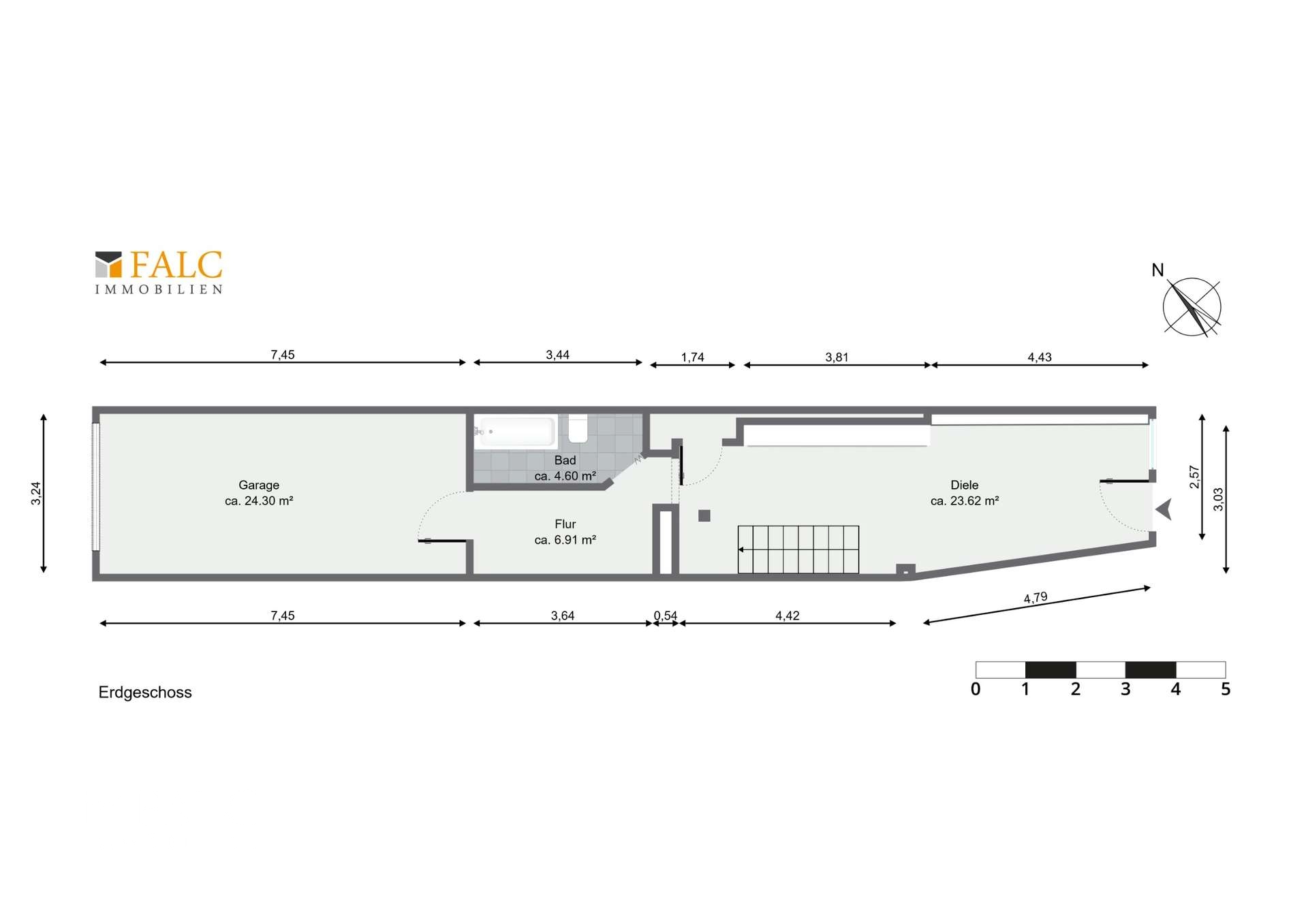
Im Erdgeschoss empfängt Sie von Stadtseite eine großzügige Diele, die einladend Platz für Garderobe und Ankommen schafft. Ein Badezimmer mit Badewanne lädt zu entspannten Wohlfühlmomenten ein. Praktisch durchdacht: Über den Flur gelangen Sie direkt in die mit dem Haus verbundene Garage, die direkt vom Haus aus zugänglich ist.
Im 1. Obergeschoss befindet sich der Lebensmittelpunkt: Neben einem separaten WC und einer zusätzlichen Dusche erwarten Sie Küche und Wohnzimmer. Der lichtdurchflutete Wohnbereich öffnet sich nach außen und führt Sie in Ihren zukünftigen Freiraum und auf die Terrasse.
Das 2. Obergeschoss überzeugt mit einem durchdachten Grundriss und viel Stauraum: Der Flur ist mit Einbauschränken ausgestattet und bietet Platz für alles, was im Alltag gut verstaut sein will. Von hier aus erreichen Sie das Schlafzimmer sowie ein Kinderzimmer, das sich ebenso gut als Gäste- oder Arbeitszimmer nutzen lässt.
Ein echtes Highlight ist das ausgebaute Dachgeschoss: Eine knapp 37 m² große, offene Fläche mit vielfältigen Gestaltungsmöglichkeiten – ob Hobbyraum, Atelier oder ein Rückzugsort zum Arbeiten und Entspannen. Für behaglichen Komfort sorgt hier eine zusätzliche moderne Infrarot-Fußbodenheizung, die jederzeit wohlige Wärme schafft.
Das Haus wurde in den letzten Monaten bereits für Sie renoviert. Die Restarbeiten wurden bewusst offengelassen, um diese gemeinsam mit Ihnen als zukünftigen Eigentümer abzustimmen – so können Sie Ihre eigenen Vorstellungen direkt noch einfließen lassen.
Besonders attraktiv ist die Außenfläche: Die Terrasse auf dem Anbau ist bereits vorbereitet. Hier haben Sie die ideale Grundlage, Ihre persönliche Wohlfühl-Oase nach eigenen Ideen zu gestalten. Ein zusätzlicher Pluspunkt: Die Garage schließt sich an die Terrasse an und bildet so eine wunderbare Verbindung zum Haus – praktisch im Alltag und zugleich ein stimmiges Ensemble, das Innen und Außen harmonisch miteinander verknüpft.
Ausstattung
* Massivhaus mit Satteldach (ohne Keller) * Neue Holzfenster mit Thermoverglasung * Gasheizung mit Heizkörpern * Über 150 m² Wohn- und Nutzfläche auf 4 Etagen * Großzügige Diele im Erdgeschoss * Badezimmer mit Badewanne (gefliest) * Zweites separates WC im 1. Obergeschoss * Zusätzliche Dusche im 1. Obergeschoss (gefliest) * Küche mit Fliesenspiegel * Wohnzimmer mit Zugang zur Terrasse * Terrasse auf dem Anbau vorbereitet * Ausgebautes Dachgeschoss mit ca. 37 m² offener Fläche (flexibel nutzbar) * Moderne Infrarot-Fußbodenheizung im Dachgeschoss * Flur im 2. Obergeschoss mit Einbauschränken und viel Stauraum * Schlafzimmer und Kinderzimmer im 2. Obergeschoss * Lichtdurchflutete Räume * Laminatböden in den Wohnräumen * Direkt ans Haus angebundene Garage (vom Haus aus zugänglich) * Garage aktuell als Werkstatt/Lager genutzt, wird nach Verkauf freigeräumt * Zusätzlicher Stellplatz vor der Garage * Renovierung bereits erfolgt – Haus nahezu einzugsfertig * Innengestaltung in Teilen noch nach Ihren Wünschen möglich
Lage
Das Haus liegt in zentraler und zugleich angenehm wohnlicher Lage von Pößneck – ideal für eine junge Familie, die kurze Wege liebt und dennoch ein ruhiges Zuhause sucht. Der Marktplatz im Stadtzentrum ist in etwa 5 bis 7 Minuten zu Fuß erreichbar – perfekt für den schnellen Einkauf, den Wochenmarkt oder ein Eis am Nachmittag. Und wenn es einmal zügig gehen soll: Die Bushaltestelle befindet sich nur rund 40 Meter entfernt. So bleibt im Familienalltag mehr Zeit für das, was wirklich zählt.
Pößneck zeigt sich als familienfreundliche Stadt mit Herz: überschaubar, sicher und mit einer Infrastruktur, die den Alltag spürbar erleichtert. Genug Spielraum für ein entspanntes Familienleben.
Als größte Stadt im Saale-Orla-Kreis vereint Pößneck vieles, was Familien schätzen: naturnahes Wohnen ein solides wirtschaftliches Umfeld und ein vielfältiges Angebot an Bildung, Betreuung und Freizeit. Kindertagesstätten und Schulen sind ebenso gut erreichbar wie Einkaufsmöglichkeiten des täglichen Bedarfs – von Supermärkten bis hin zu Baumärkten und Tankstellen. Kurze Wege bedeuten: weniger Organisation, mehr Familienzeit.
Auch gesundheitlich sind Sie bestens aufgehoben: Mit einem eigenen Krankenhaus sowie zahlreichen Arztpraxen und physiotherapeutischen Einrichtungen ist eine verlässliche Versorgung direkt vor Ort gegeben – ein beruhigender Pluspunkt, gerade mit Kind.
Für kleine Wasserratten, Sportbegeisterte und alle, die gern aktiv sind, bietet Pößneck hervorragende Möglichkeiten: eine große, moderne Schwimmhalle, ein weitläufiges Freibad, das 2023 komplett saniert wurde, sowie viele weitere Sport- und Freizeitangebote – unter anderem der beliebte „Sportpark an der Warte“. Hier wird aus einem freien Nachmittag schnell ein kleines Familienabenteuer.
Die Anbindung ist ebenfalls überzeugend: Durch das regionale und überregionale Schienennetz erreichen Sie Städte wie Jena und Leipzig sowie Neustadt, Saalfeld und Rudolstadt bequem auch mit dem ÖPNV – ideal für Pendler oder spontane Ausflüge. Mit dem Auto profitieren Sie zudem vom gut ausgebauten Straßennetz; die BAB 9 ist in etwa 15 Minuten erreichbar und öffnet Ihnen den Weg zu weiter entfernten Zielen.
Unterm Strich: Eine Lage, die Familienfreundlichkeit, Alltagstauglichkeit und Lebensqualität verbindet – mit kurzen Wegen, viel Infrastruktur, starken Freizeitmöglichkeiten und einem Umfeld, in dem Kinder unbeschwert aufwachsen können.
Lade Orte in der Umgebung
Sonstiges
Die Angaben zur Immobilie basieren teilweise auf Informationen des Eigentümers. Für deren Richtigkeit und Vollständigkeit übernehmen wir keine Gewähr. Dies gilt insbesondere für Baujahr, Maße und Flächenangaben.
Die in diesem Exposé enthaltenen Fotos und Videos sind teilweise unter Einsatz digitaler Bildbearbeitung und künstlicher Intelligenz erstellt oder optimiert worden. Sie dienen ausschließlich der Veranschaulichung. Verbindlich sind nur die tatsächlichen Gegebenheiten bei einer Besichtigung vor Ort! Eine persönliche Besichtigung vermittelt Ihnen den besten Eindruck.
Bitte geben Sie bei Ihrer Anfrage stets Ihre vollständige Adresse und Telefonnummer an!
Wenn Sie Interesse an dieser oder einer anderen Immobilie aus unserem Portfolio haben, nähere Informationen wünschen oder Fragen zur Finanzierung bestehen, unterstützen wir Sie gern umfassend.
FALC Immobilien – Ihr innovativer Immobilienmakler. Wir sind auf allen relevanten Portalen präsent – gemäß unserem Motto: Einfach mehr!
Ihr Ansprechpartner: Thomas Braun FALC Immobilien Weimar · Über der Nonnenweise 1 · 99428 Weimar Büro: +49 3643 498 87 12 · Mobil: +49 177 573 26 36 FALC Zentrale (Mo–So 6:00–22:00 Uhr): 0800 / 646 0 646 (kostenfrei) E-Mail: thomas.braun@falcimmo.de weitere Immobilienangebote finden Sie hier: https://www.falcimmo.de/immobilienangebote.html