Komfort & Aussicht vereint: Neubauwohnung mit Südterrasse und Garage

Eckdaten

 Zimmer
 Wohnfl.
 Grundst.
Kaufpreis
 Zimmer
 Wohnfl.
Grundst.

Kaufpreis

Basisdaten

Objektnummer
Immopark ID
IP-313679
Objekt ID
9363
Adresse
Ort
21220 Trogir
Fakten und Zahlen
Wohnungstyp
Etage
Vermarktungsart
Kauf
Nutzungsart
wohnen
Verkaufsstatus
offen
Baujahr
2026
Kerndaten
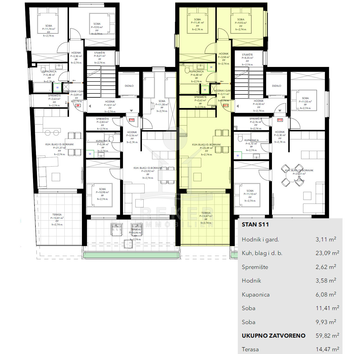
Wohnfläche
74,29 m2
Zimmer
3.0
Schlafzimmer
2.0
Badezimmer
1.0
Anzahl Stellplätze (gesamt)
1.0
Bauweise / Substanz
Objektzustand
Erstbezug
Etagenanzahl der Immobilie
1
Lage im Gebäude
Etage
2

Preisdaten

Preis
Kaufpreis
241.956 €
Courtage
Käufercourtage
3,75 % inkl. MwSt. in Kroatien

Merkmale

Zimmer und Bereiche
Ausrichtung
Süd
Schlaf­zimmer
Abstell­raum
Ausstattung und Technik
Klima­anlage
Stellplätze
Anzahl Stellplätze (gesamt)
1.0
Tiefgarage
Anzahl
1.0
Ausblick
Meer

Energie

Energieausweis
Gebäudeart lt. Energieausweis
Wohngebäude
Heizung
Fußboden­heizung

Umgebung

Es wurden keine Daten angegeben.

Objektbeschreibung

Hier treffen Komfort und Aussicht aufeinander: Morgens Sonne, abends Meerblick. Die Wohnung überzeugt mit modernen Details, Klimaanlage in jedem Raum und Fußbodenheizung im Bad. Die 14,47 m² große Terrasse wird zum Lieblingsplatz und die Garage ist inklusive.

Ausstattung

https://www.reker-immobilien.de/kroatien/wohnung-ciovo-erstbezug-meerblick_9363?utm_source=ausstattung&utm_medium=txt&utm_campaign=9363
~

Lage

Auf der Insel Čiovo, nicht weit von Trogir, steht dieses moderne Wohnhaus, umgeben von neuen Wohnhäusern. Eine typische dalmatinische Mischung: grüne Landschaft, Meernähe und alles Wichtige für den Alltag gleich um die Ecke. Die Hanglage bringt zwei Vorteile: Privatsphäre und einen weiten Blick bis zur Küste. Weitblick inklusive. Strände, Spazierwege und Freizeitmöglichkeiten? Erreichen Sie alles bequem in ein paar Minuten.

Das Gebäude umfasst 15 Wohnungen und wird mit einem Aufzug ausgestattet. Jede Wohnung bekommt einen eigenen Garagenplatz im Untergeschoss, natürlich im Preis enthalten. Sie parken bequem in der hauseigenen Garage. Kein Parkplatzsuchen im Sommer.

Das Haus entsteht bis 2026 in solider Bauweise. Es bietet modernen Wohnkomfort und ist so geplant, dass Sie langfristig Energie sparen. Die Umgebung? Ruhig, gepflegt und geprägt von neuen Wohnhäusern.
Lade Orte in der Umgebung

Anbieterdaten

Ansprech­partner

Ihre Nachricht an Reker Immobilien

Ihr Ansprechpartner: admin@reker-immobilien.de

Mit (*) gekennzeichnete Felder sind Pflichtangaben.