Ladenlokal direkt an der Ortsdurchfahrt in Steinen!

Eckdaten

 Zimmer
 Wohnfl.
 Grundst.
Kaltmiete
 Zimmer
Wohnfl.
Grundst.

Kaltmiete

Basisdaten

Objektnummer
Immopark ID
IP-302714
Objekt ID
1067-276-0-JT
Adresse
Ort
79585 Steinen
Fakten und Zahlen
Immobilientyp
Verkaufs­fläche
Vermarktungsart
Miete / Pacht
Nutzungsart
Gewerbliche Nutzung
Verkaufsstatus
offen
Baujahr
1920
Kerndaten
Zimmer
2.0
Vermietbare Fläche
132 m2
Nutzfläche
132 m2
Verkaufsfläche
132 m2
Bauweise / Substanz
Objektzustand
gepflegt

Preisdaten

Preis
Kaltmiete
1.400 €
Nebenkosten
350 €
Warmmiete
1.750 €
Heizkosten enthalten
Gesamtbelastungs-Brutto
1.750 €
Weitere Kosten
Kaution
2.800 €
Courtage
Käufercourtage
2,37 KM inkl. gesetzl. MwSt. (19%)
inkl. MwSt.
Betriebskosten
Betriebskostennetto
350 €

Merkmale

Sanitäre Einrichtung
Gäste WC

Energie

Es wurden keine Daten angegeben.

Umgebung

Es wurden keine Daten angegeben.

Objektbeschreibung

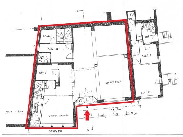
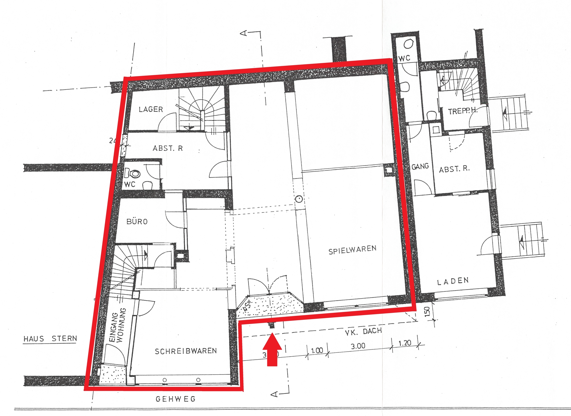
Dieses Ladenlokal befindet sich direkt an der Ortsdurchfahrt in Steinen. Ihnen steht eine große Ladenfläche mit ca. 132 m² Nutzfläche zur Verfügung. Außerdem gibt es noch ein kleines Lager im UG, ein Büro und eine Toilette. Verwirklichen Sie sich hier Ihr Geschäft!

Konditionen:
Kaltmiete: 1.400,-€
Nebenkosten: 350,-€
Warmmiete: 1.750,-€
Kaution: 2.800,-€

Mieterprovision: 2 Kaltmiete zzgl. 19% MwSt.

Haben wir Interesse geweckt? Dann rufen Sie uns an! Gerne vereinbaren wir einen Besichtigungstermin.

Lage

Steinen ist ein kleiner Ortsteil, in dem Sie alles finden was Sie benötigen, wie diverse Einkaufsmöglichkeiten, Schulen und Verkehrsverbindungen.

Entfernungen mit dem Auto:

Lörrach: 12 Minuten
Basel: 29 Minuten
Freiburg: 55 Minuten
Lade Orte in der Umgebung

Anbieterdaten

Dr. Jörg Thalmann

Ansprech­partner

Dr. Jörg Thalmann

Ihre Nachricht an RE/MAX Immobilienmakler Lörrach

Ihr Ansprechpartner: Dr. Jörg Thalmann

Mit (*) gekennzeichnete Felder sind Pflichtangaben.