Lager, Büro - was suchen Sie!

Eckdaten

 Zimmer
 Wohnfl.
 Grundst.
Kaltmiete
Zimmer
Wohnfl.
 Grundst.

Kaltmiete

Basisdaten

Objektnummer
Immopark ID
IP-305150
Objekt ID
FALC-MAK-78351
Adresse
Ort
63110 Rodgau / Weiskirchen
Fakten und Zahlen
Immobilientyp
Lager­flächen
Vermarktungsart
Miete / Pacht
Nutzungsart
Gewerbliche Nutzung
Baujahr
1930
Kerndaten
Lagerfläche
148 m2
Gesamtfläche
148 m2
Nutzfläche
148 m2
Bauweise / Substanz
Objektzustand
gepflegt
Letzte Renovierung
1994

Preisdaten

Preis
Kaltmiete
1.190 €
Nebenkosten
380 €
Warmmiete
1.570 €
Heizkosten enthalten
Weitere Kosten
Kaution Info
3570
Courtage
provisionspflichtig
Käufercourtage
3,57 Kaltmieten inkl. 19% MwSt vom Mietpreis

Merkmale

Es wurden keine Daten angegeben.

Energie

Energieausweis
Typ
Verbrauchs­ausweis
EnEV
ab 01.05.2014 (gemäß EnEV 2014)
Energieausweis gültig bis
17.03.2032
Energie­verbrauchs­kennwert gemessen in kWh/(m²a)
118

A+ABCDEFGH

Energieeffizienz­klasse
D
Ausstelldatum
18.03.2022
Gebäudeart lt. Energieausweis
Nicht Wohngebäude
Heizung
Zentral­heizung
Befeuerungsart
Öl

Umgebung

Es wurden keine Daten angegeben.

Objektbeschreibung

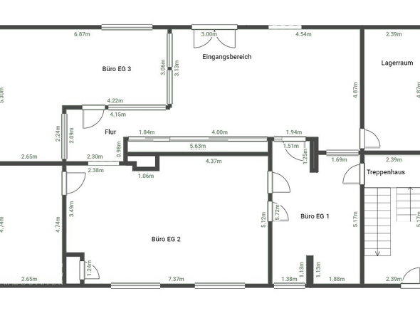
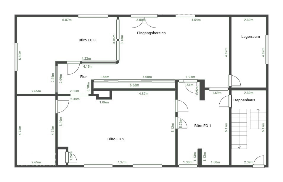
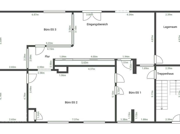
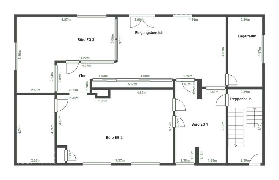
Bei der Immobilie handelt es sich um Büroräume oder Lagerflächen von 148 m² im Erdgeschoss, mit einer Laderampe. Optional stehen 76 m² Keller als Lagerfläche zur Verfügung.

Die Büros sind mit PC Steckdosen, Lan- Verkabelung sowie Sozialräume für die Mitarbeiter ausgestattet.

Parkplätze sind vorhanden und stehen Ihnen nach Vereinbarung, optional zur Verfügung.

Einen ersten Eindruck dieser Büro- und Lagerräume vermittelt Ihnen unser 360° Rundgang: https://app.immoviewer.com/portal/tour/3088979

Ausstattung

Ausstattungsmerkmale Bürofläche / Lagerfläche

# Büro oder Lagerfläche mit insgesamt 148 m²
# ca. 4m hohe Decken
# PC Steckdosen
# Lan- Verkabelung
# Gäste WC
# Deckenbeleuchtung
# Isolierglasfenster
# Zentralheizung
# Sanitär-/ Sozialräume
# Parkplätze

Lage

Rodgau zählt zum Landkreis Offenbach und liegt zentral im Rhein-Main Gebiet südöstlich von Offenbach. Die 5 Stadteile Rodgaus zählen insgesamt rund 44.000 Einwohner.

Freizeitmöglichkeiten bieten die Waldfreizeitanlagen, zahlreiche Vereine und ein großes Waldgebiet. Rodgau verfügt über einen S-Bahn-Anschluss (S1). Die Anbindung an die Autobahnen (A3) und Bundesstraßen (B45), sowie zum Flughafen FFM ist ausgezeichnet. Städte wie Frankfurt, Offenbach, Hanau, Aschaffenburg oder Darmstadt sind sehr schnell erreicht.

Kindergärten, Grundschule und Gesamtschule befinden sich ebenfalls direkt in Jügesheim. Rodgau verfügt über eine sehr gute Infrastruktur, die über die Grenzen Rodgaus hinaus bekannt ist.

Infrastrukturell bietet Rodgau mit öffentlichen Einrichtungen, Einkaufsmöglichkeiten und ärztlicher Versorgung in näherer Umgebung ein gutes Angebot. Die Bewohner von Rodgau sind mittendrin, umgeben von guter Infrastruktur und gleichzeitiger Nähe zur Natur mit Freizeitwerten, wie z.B. sehr gut ausgebauten Fahrradwegen und vielen Seen.
Lade Orte in der Umgebung

Sonstiges

Die Objektbeschreibung beruht ganz oder zum Teil auf Angaben des Eigentümers. Für die Richtigkeit oder Vollständigkeit übernehmen wir keine Gewähr.

Vereinbaren Sie noch heute einen unverbindlichen Besichtigungstermin und überzeugen Sie sich selbst! Da wir die Termine für Besichtigungen mit größter Sorgfalt planen, bitten wir Sie um Verständnis dafür, dass Termine ausschließlich per E-Mail vereinbart werden können.

Um fair und gerecht gegenüber jedem unserer Interessenten zu werden ist dies unumgänglich. Wir freuen uns über Ihre Kontaktaufnahme! Geben Sie bitte immer die vollständige ADRESSE und RUFNUMMER an!

Ihr Ansprechpartner: Marcus Kanert, marcus.kanert@falcimmo.de
Besuchen Sie uns auch in unserem Büro in: Hauptstr. 66, 63110 Rodgau

Sie denken selbst über die Veräußerung Ihrer Immobilie nach oder möchten einfach nur wissen, was diese wert ist? Bei uns erhalten Sie kostenlos eine professionelle Wertermittlung! Gehen Sie hierzu auf:
www.falcimmo.de/Das-ist-meine-Immobilie-wert.htm
oder kontaktieren Sie uns.

Anbieterdaten

Marcus Kanert

Ansprech­partner

Marcus Kanert

Ihre Nachricht an FALC Immobilien Rodgau / Weiskirchen (Marcus Kanert)

Ihr Ansprechpartner: Marcus Kanert

Mit (*) gekennzeichnete Felder sind Pflichtangaben.