Mehrfamilienhaus mit 11% Rendite! Wo gibt es noch sowas?

Eckdaten

 Zimmer
 Wohnfl.
 Grundst.
Kaufpreis
 Zimmer
 Wohnfl.
 Grundst.

Kaufpreis

Basisdaten

Objektnummer
Immopark ID
IP-301832
Objekt ID
1067-375-1-SG
Adresse
Ort
79541 Lörrach-Brombach
Fakten und Zahlen
Haustyp
Mehr­familien­haus
Vermarktungsart
Kauf
Nutzungsart
wohnen
Verkaufsstatus
offen
Baujahr
1880
Kerndaten
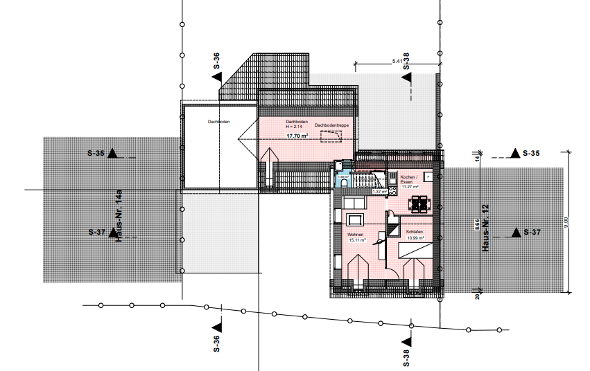
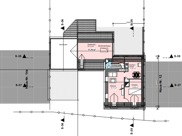
Wohnfläche
251 m2
Zimmer
10.0
Schlafzimmer
5.0
Badezimmer
1.0
separate WC
1.0
Grundstücksfläche
542 m2

Preisdaten

Preis
Kaufpreis
500.000 €
Courtage
Käufercourtage
2,38 % inkl. gesetzl. MwSt. (19%)
inkl. MwSt.

Merkmale

Zimmer und Bereiche
Schlaf­zimmer
Wasch- / Trocken­raum
Sanitäre Einrichtung
Fenster
Dusche

Energie

Befeuerungsart
Gas

Umgebung

Es wurden keine Daten angegeben.

Objektbeschreibung

Jahresmiete 11% Rendite. Nach Sanierung mit vorliegendem Angebot von 210.000€ noch über 8% durch Festvermietung. Neue Außenfassade, neues Dach, neue Elektrik teilweise neue Bäder, neue Küche, teilweise neue Heizung

Dieses Mehrfamilienhaus befindet sich in einer ruhigen Seitenstraße unweit des Dorfzentrums des Lörracher Stadtteils Lörrach – Brombach.

Das Haus wurde ursprünglich im Jahre 1880 erbaut und wurde in den Jahren 1946 und 1970 saniert und renoviert.
Die Gesamtwohnfläche beträgt ca. 270 m², welche sich auf das EG, OG und im DG auf 5 Wohnungen verteilen. Das Grundstück misst 542 m². Hinter dem Haus befindet sich der Hinterhof direkt anliegend an einen Hang mit Wald.

Das Haus verfügt über
- eine 1 Zimmer-Wohnung mit ca. 35 m² und großer Terrasse,
- drei 2-Zimmer-Wohnungen mit je ca. 60 m² und
- eine 3-Zimmer-Wohnung mit ca. 80 m².

Der hinter dem Haus gelegene Bereich lädt zum gestalten ein. Hier können Sie Ihren kreativen Ideen freien Lauf lassen. Es ist eventuell möglich mit Rücksprache bei den Behörden den hinteren Bereich zu bebauen.

Ausstattung

1 Zimmer ca: 35m² große Terrasse
3*2 Zimmer ca: 60m²
1* 3 Zimmer ca: 80m²
Doppelgarage
Eine Terrasse hinterm Haus

Lage

Brombach bietet mit seinem dörflichen Charakter alles, was Sie für den täglichen Bedarf benötigen. Einkaufsmöglichkeiten, Bäcker und Apotheken befinden sich in unmittelbarer Nähe. In wenigen Gehminuten erreichen Sie den Bahnhof Lörrach Brombach, von dem Sie aus 10 Minuten Lörrach erreichen oder in 20 Minuten Basel.

Entfernungen:
Autobahn A5: 5 Minuten
Lörrach: 10 Minuten
Basel: 25 Minuten
Freiburg: 50 Minuten

Brombach with its village character offers everything you need for your daily needs. Shopping
bakeries and pharmacies are in the immediate vicinity. In a few minutes walk you can reach the train station Lörrach Brombach, from where you can reach Lörrach in 10 minutes or in 20
minutes to Basel.

Distances:
Freeway A5: 5 minutes
Lörrach: 10 minutes
Basel: 25 minutes
Freiburg: 50 minutes
Lade Orte in der Umgebung

Sonstiges

Verpassen Sie keine Immobilie mehr!

Unser komplettes Immobilienangebot finden Sie immer zuerst auf www.remax.de.

Gerne helfen wir Ihnen auch beim Verkauf oder der Vermietung Ihrer Immobilie. Wir freuen uns sehr, wenn Sie uns weiterempfehlen.

===

Never miss a property again!
You will always find our complete real estate offer first on www.remax.de.
We are also happy to help you with the sale or rental of your property. We would be very pleased if you recommend us to others.

Anbieterdaten

Samuel Grauer

Ansprech­partner

Samuel Grauer

Ihre Nachricht an RE/MAX Immobilienmakler Lörrach

Ihr Ansprechpartner: Samuel Grauer

Mit (*) gekennzeichnete Felder sind Pflichtangaben.