Moderne 3 Zimmerwohnung über 2 Etagen mit Balkon in Löhne Gohfeld

Eckdaten

 Zimmer
 Wohnfl.
 Grundst.
Kaltmiete
 Zimmer
 Wohnfl.
Grundst.

Kaltmiete

Basisdaten

Objektnummer
Immopark ID
IP-311909
Objekt ID
1998
Adresse
Ort
32584 Löhne
Fakten und Zahlen
Wohnungstyp
Etage
Vermarktungsart
Miete / Pacht
Nutzungsart
wohnen
Verkaufsstatus
offen
Baujahr
1935
Kerndaten
Wohnfläche
95 m2
Zimmer
3.0
Schlafzimmer
2.0
Badezimmer
2.0
Anzahl Stellplätze (gesamt)
1.0
Bauweise / Substanz
Objektzustand
teil- vollsaniert
Bestimmungen
Max. Personenanzahl
3

Preisdaten

Preis
Kaltmiete
760 €
Nebenkosten
100 €
Nettokaltmiete
760 €
ges. Mietkosten (Netto)
760 €
Weitere Kosten
Kaution
1.520 €
Betriebskosten
Betriebskostennetto
100 €

Merkmale

Zimmer und Bereiche
Gesamtfläche
8 m2
Schlaf­zimmer
Ausstattung und Technik
Kabel Sat TV
Stellplätze
Anzahl Stellplätze (gesamt)
1.0
Freiplatz
Anzahl
1.0
Mietpreis
20 €

Energie

Energieausweis
Typ
Verbrauchs­ausweis
EnEV
bis 30.04.2014 (gemäß EnEV 2009)
Energieausweis gültig bis
2019-09-30
Energie­verbrauchs­kennwert gemessen in kWh/(m²a)
102.40

A+ABCDEFGH

wesentlicher Energieträger
Gas
Energieeffizienz­klasse
D
Baujahr lt. Energieausweis
1935
Gebäudeart lt. Energieausweis
Wohngebäude
Heizung
Zentral­heizung
Befeuerungsart
Gas

Umgebung

Es wurden keine Daten angegeben.

Objektbeschreibung

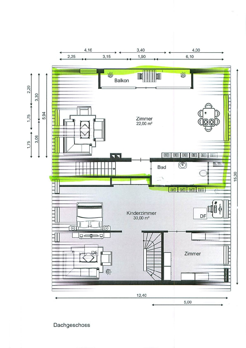
Moderne Maisonettwohnung über 2 Etagen, mit 3 Zimmer, Küche, neues Bad mit Dusche und Gäste WC, sowie ein Balkon. Die Wohnung wurde vor einigen Jahren umfangreich saniert. Alle Fenster wurden als Schallschutzfenster, teilweise mit elektrischen Rollläden neu eingebaut.

Ausstattung

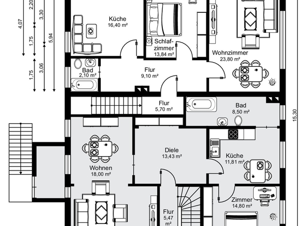
Die Wohnung befindet sich im 1. Obergeschoss und Dachgeschoss eines 4 Familienhauses. Hier stehen ihnen ein großes Wohn- und Esszimmer, ein Schlafzimmer, eine große Küche und ein Bad mit Dusche zur Verfügung. Über eine Treppe gelangen sie ins Dachgeschoss. Dort stehen ihnen ein weiteres großes Zimmer mit Zugang zum Balkon und ein WC zur Verfügung. Die Wände wurden glatt gespachtelt und weis gestrichen. Wasser, Strom, Heizung ist alles getrennt. Kabel TV, Gasbrennwertheizung,
Ein Waschraum ist im Erdgeschoss vorhanden.
Ein PKW Stellplatz kann für 20,00 € angemietet werden.

Lage

Zentrale Lage in Löhne Gohfeld an der Nordbahnstraße gelegen. Schulen, Kindergarten, Bäcker, Sparkasse sind fußläufig schnell erreicht.
Lade Orte in der Umgebung

Sonstiges

Es liegt ein Energieverbrauchsausweis vor.
Dieser ist gültig bis 30.9.2019.
Endenergieverbrauch beträgt 102.40 kwh/(m²*a).
Wesentlicher Energieträger der Heizung ist Gas.
Das Baujahr des Objekts lt. Energieausweis ist 1935.
Die Energieeffizienzklasse ist D.

Lust auf Veränderung? Rufen Sie uns an!
760,00 € Kaltmiete
20,00€ Stellplatz
100,00 € Nebenkostenabschlag
+ Heizkosten direkt über Gasversorgung Erenja

Ansprechpartner ist Frau Anja Strathmann Tel. 0151-25355975

Anbieterdaten

Anja Strathmann

Ansprech­partner

Anja Strathmann

Ihre Nachricht an CCV Immobilien

Ihr Ansprechpartner: Anja Strathmann

Mit (*) gekennzeichnete Felder sind Pflichtangaben.