Moderne Büroflächen im Gewerbepark-Süd *provisionsfrei*

Eckdaten

 Zimmer
 Wohnfl.
 Grundst.
Kaltmiete
Zimmer
Wohnfl.
Grundst.

Kaltmiete

Basisdaten

Objektnummer
Immopark ID
IP-294680
Objekt ID
FALC-SL-68878
Adresse
Ort
40723 Hilden
Fakten und Zahlen
Vermarktungsart
Miete / Pacht
Nutzungsart
Gewerbliche Nutzung
Baujahr
1905
Kerndaten
Gesamtfläche
253 m2
Bürofläche
253 m2
Bauweise / Substanz
Objektzustand
neuwertig
Verfügbarkeit
Verfügbar ab
nach Vereinbarung

Preisdaten

Preis
Kaltmiete
2.930,11 €
Nebenkosten
1.447 €
Warmmiete
4.377,11 €
Mietpreis pro Quadratmeter
11,58 €
Heizkosten enthalten
Weitere Kosten
Kaution Info
3 MM

Merkmale

Ausstattung und Technik
Qualität der Ausstattung
gehoben
Teppich­boden
Sanitäre Einrichtung
Gäste WC
Gewerbe Merkmale
Bürofläche
253 m2
Besondere Merkmale
barriere­frei

Energie

Energieausweis
Typ
Verbrauchs­ausweis
EnEV
ab 01.05.2014 (gemäß EnEV 2014)
Energieausweis gültig bis
26.08.2035
wesentlicher Energieträger
Gas
Stromwert
2
Wärmewert
98
Ausstelldatum
25.08.2025
Gebäudeart lt. Energieausweis
Nicht Wohngebäude
Befeuerungsart
Gas

Umgebung

Es wurden keine Daten angegeben.

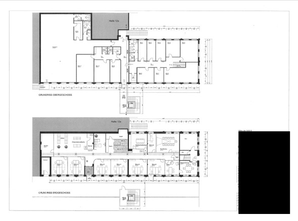
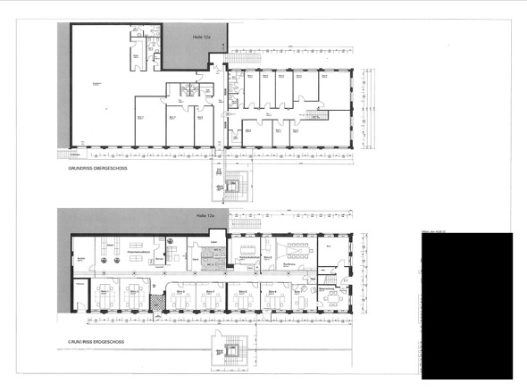
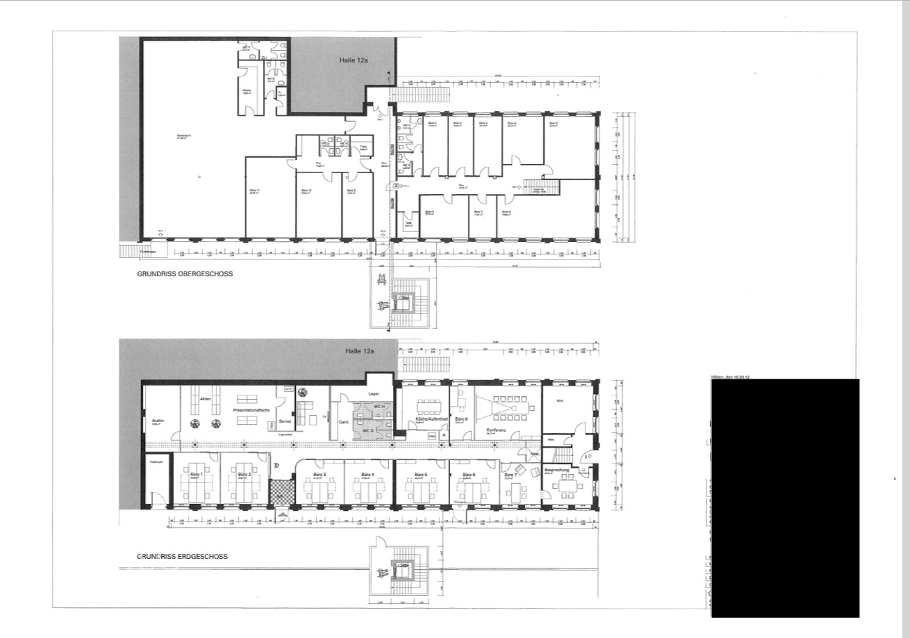
Objektbeschreibung

Willkommen in Ihrem neuen Büro auf der Hofstraße 64, 40723 Hilden. Das Büro liegt innerhalb eines Gewerbestandortes im rheinischen Hilden (bei Düsseldorf), im Gewerbepark-Süd.

Zum Mietbeginn werden die Büroräume in den ersten drei Monaten mietfrei angeboten. In diesem Zeitraum sind lediglich die Nebenkosten zu zahlen.

Verschiedene Unternehmen, Firmen und Institutionen unterschiedlichster Größe haben Ihren Sitz in diesem 4,2 Hektar großen Gewerbepark. Durch diesen Branchenmix entstehen Synergieeffekte, die von Mietern gern genutzt werden.

Die Gewerbefläche ist komplett saniert, modernisiert und für die Ansprüche moderner Wirtschaftsbetriebe gestaltet. Hierbei wurden sowohl Böden, Decken als auch Wände und Toilettenanlagen vollständig erneuert. Moderne Türen und Fenster runden das hochwertige Erscheinungsbild ab und sorgen für eine freundliche und helle Arbeitsatmosphäre. Die Büros verfügen über eine gut durchdachte Raumaufteilung unter Verwendung hochwertiger Materialien und bieten viel Platz für die Umsetzung Ihrer individuellen Ideen.

Die Sanitäranlagen überzeugen durch ein zeitloses Design und genügen höchsten Ansprüchen. Eine vorinstallierte Pantryküche bietet die Möglichkeit, Ihre Mitarbeiter und Gäste mit kleinen Snacks und Getränken zu versorgen.

Die gesamte Gewerbefläche wird mit der modernsten Internetverkabelung (CAD-7) ausgestattet, was Ihnen höchste Geschwindigkeit und Zuverlässigkeit für alle Ihre digitalen Arbeitsprozesse garantiert.

Ein besonderer Vorteil dieser Büroetage ist der Zugang über einen Aufzug, der Ihnen und Ihren Mitarbeitern einen barrierefreien Zugang bietet.

Diese Büroetage bietet Ihnen modernste Arbeitsbedingungen in einer stilvollen Umgebung. Die Kombination aus hochwertiger Ausstattung, neuester Technik und durchdachtem Design schafft ein Umfeld, das sowohl produktiv als auch komfortabel ist.

Die neuen Heizkörper bieten eine verbesserte Heizleistung.

Der Gewerbepark-Süd bietet flexible Optionen nach Ihrem Bedarf und ermöglicht Ihnen die Skalierung Ihrer Geschäftsräume entsprechend dem Wachstum Ihres Unternehmens.

Bei einer monatlichen Kaltmiete in Höhe von 11,58€/ m² zzgl. der zur Zeit gesetzl. MwSt. in Höhe von 19 %, bietet dieses Büro ein attraktives Preis-Leistungs-Verhältnis.

Die Fläche ist ggfls. nach Absprache teilbar. Verschaffen Sie sich bei einer Besichtigung einen persönlichen Eindruck und lassen Sie sich von den Vorzügen dieser Immobilie überzeugen.

Der Energieausweis liegt zur Besichtigung vor.

Wir freuen uns darauf, Ihnen dieses wunderschöne Büro vorstellen zu dürfen.

Alle Informationen beruhen auf den Angaben des Eigentümers.

Ausstattung

modernste Internetverkabelung (CAD-7)
kernsaniert
Bodenbeläge, Decken, Wände und Türen neu
neue Heizkörper mit besseren Heizwerten
Pantryküche
neue Toilettenanlagen

Lage

Das Bürogebäude liegt verkehrsgünstig an der A3, A46 und A59. Zur Innenstadt sind es nur wenige Gehminuten. Auch mit Bus (O3) und Bahn (S1) sind Sie schnell erreichbar.
Die traditionsreichen Gebäude sind saniert und modernisiert und bieten somit ein ideales Arbeitsumfeld mit historischem Altbauflair. Die optimale Verkehrsanbindung macht den Gewerbepark-Süd zu einem attraktiven Standort.

Die Lage des Büros ist ideal. Sie arbeiten in einer ruhigen Wohngegend, die dennoch eine gute Anbindung an den öffentlichen Nahverkehr sowie an die Autobahn bietet, sodass Sie auch die umliegenden Städte schnell erreichen.
Lade Orte in der Umgebung

Zusätzliche Information

Das Bürogebäude liegt verkehrsgünstig an der A3, A46 und A59. Zur Innenstadt sind es nur wenige Gehminuten. Auch mit Bus (O3) und Bahn (S1) sind Sie schnell erreichbar.
Die traditionsreichen Gebäude sind saniert und modernisiert und bieten somit ein ideales Arbeitsumfeld mit historischem Altbauflair. Die optimale Verkehrsanbindung macht den Gewerbepark-Süd zu einem attraktiven Standort.

Die Lage des Büros ist ideal. Sie arbeiten in einer ruhigen Wohngegend, die dennoch eine gute Anbindung an den öffentlichen Nahverkehr sowie an die Autobahn bietet, sodass Sie auch die umliegenden Städte schnell erreichen.

Sonstiges

Das Mietangebot wurde nach Angaben und Unterlagen des Verkäufers erstellt. Eine Gewähr für Vollständigkeit und Richtigkeit können wir nicht übernehmen.


Haftungsausschluss:

Wir bemühen uns, möglichst vollständige und richtige Angaben zu erhalten und weiterzuleiten. Eine Haftung für die Richtigkeit, Vollständigkeit und Aktualität der Angaben können wir jedoch nicht übernehmen.

Änderungen, Irrtum und Zwischenvermietung vorbehalten.


Sie überlegen Ihre Immobilie zu vermieten/verkaufen?


Als lokale Immobilienexperten bieten wir Ihnen unseren kompletten Service, der Sie als Verkäufer von Beginn an bis hin zum Notartermin begleitet.

Mit unserer langjährigen Erfahrung und der hervorragenden Kenntnis des lokalen Immobilienmarktes möchten wir gerne auch Sie beim Immobilienverkauf unterstützen.


Wir sind stolz, durch unser Engagement in den führenden Internetportalen überdurchschnittlich gute Bewertungen erzielt zu haben. Die Fachzeitschrift "Focus-Spezial" hat unser Unternehmen seit 2013 durchgehend als eines der besten Immobilienunternehmen in Deutschland ausgezeichnet.


Als FALC Exklusivpartner bieten wir unseren Kunden noch mehr Vorteile. Wir sind jetzt Teil eines Immobiliennetzwerkes mit mehr als 150 Partnern an über 100 Standorten in Deutschland und Europa. So können wir Ihnen über 1.000 Immobilien anbieten, national wie international. In unserer Datenbank warten weit über 50.000 Interessenten auf Ihre Immobilie.


Gerne vermieten/verkaufen wir mit Kompetenz und Leidenschaft auch Ihre Immobilie. Schenken Sie uns Ihr Vertrauen! Sie erreichen uns unter Tel : 0212 88 13 47 99

Anbieterdaten

Sabine Littera

Ansprech­partner

Sabine Littera

Ihre Nachricht an FALC Immobilien Solingen (HTN Immobilien Management GmbH)

Ihr Ansprechpartner: Sabine Littera

Mit (*) gekennzeichnete Felder sind Pflichtangaben.