Moderner Neubau in ausgezeichneter Lage - FALC Immobilien Heilbronn

Eckdaten

 Zimmer
 Wohnfl.
 Grundst.
Kaufpreis
 Zimmer
 Wohnfl.
 Grundst.

Kaufpreis

Basisdaten

Objektnummer
Immopark ID
IP-308724
Objekt ID
FALC-SLa-79964
Adresse
Ort
Zadar
Fakten und Zahlen
Wohnungstyp
Erd­geschoss
Vermarktungsart
Kauf
Nutzungsart
wohnen
Kerndaten
Wohnfläche
70 m2
Zimmer
3.5
Schlafzimmer
2.0
Badezimmer
2.0
Gesamtfläche
74,33 m2
Anzahl Stellplätze (gesamt)
2.0
Bauweise / Substanz
Objektzustand
Erstbezug
Lage im Gebäude
Wohnungsnummer
S1

Preisdaten

Preis
Kaufpreis
241.000 €
Kaufpreis pro Quadratmeter
3.442 €
Courtage
provisionspflichtig
Käufercourtage
3,57 % inkl. MwSt vom not. Kaufpreis

Merkmale

Zimmer und Bereiche
Voll unterkellert
Anzahl (Balkone)
1.0
Anzahl (Terrassen)
1.0
Schlaf­zimmer
Abstell­raum
Ausstattung und Technik
Qualität der Ausstattung
gehoben
Einbau­küche
Fliesen­boden
Holz­dielen­boden
Klima­anlage
Sanitäre Einrichtung
Dusche
Besondere Merkmale
Nutzung als Ferienimmobilie
Stellplätze
Anzahl Stellplätze (gesamt)
2.0
Freiplatz
Anzahl
2.0

Energie

Energieausweis
Energieausweis ist nicht notwendig nach EnEV
Gebäudeart lt. Energieausweis
Wohngebäude

Umgebung

Es wurden keine Daten angegeben.

Objektbeschreibung

Wohnungen in einem modernen Neubau in Zadar - Ausgezeichnete Lage!

In einem modernen Neubau in ausgezeichneter Lage von Zadar präsentieren wir Ihnen attraktive Wohnungen, die höchsten Wohnkomfort mit zeitgemäßer Architektur verbinden. Die Immobilie befindet sich in unmittelbarer Nähe aller wichtigen Einrichtungen des täglichen Lebens und bietet somit ideale Voraussetzungen für ein komfortables und entspanntes Wohnen.

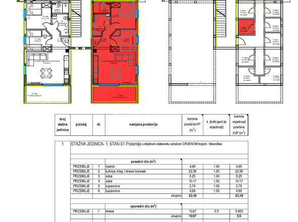
Die hier angebotene Wohnung befindet sich im Erdgeschoss und verfügt über eine Wohnfläche von circa 70 m². Sie umfasst zwei Schlafzimmer mit Bad en Suite, ein weiteres Badezimmer, ein großzügiges Wohnzimmer mit offener Küche und Essbereich, eine Diele sowie eine Terrasse. Ein privater Garten, ein Abstellraum und zwei zugehörige Parkplätze runden dieses attraktive Wohnangebot ab.

Das Gebäude wird mit hochwertigen Materialien und einer erstklassigen Ausstattung realisiert. Dazu zählen Fußbodenheizung in den Bädern, hochwertige Keramikfliesen sowie elegante Hartholzböden. Feuerfeste und einbruchsichere Eingangstüren sorgen für zusätzliche Sicherheit, während moderne Innentüren mit Magnetsystemen und verdeckten Dichtungen das stilvolle Gesamtbild unterstreichen. Eine Video-Gegensprechanlage, eine 10 cm starke Wärmedämmung sowie hochwertige PVC-Fenster der Marke Gealan Smoovio mit Insektenschutzgittern und elektrischen Jalousien gewährleisten hohen Wohnkomfort. Ergänzt wird die Ausstattung durch ein modernes Inverter-Klimasystem im Multisplit-Format sowie erstklassige Fliesen und Sanitärobjekte in den Bädern.

Das Projekt umfasst insgesamt elf Wohneinheiten, die sich auf Erdgeschoss, ersten und zweiten Stock verteilen. Jeder Wohnung sind zwei Parkplätze sowie ein Abstellraum zugeordnet, was die Alltagstauglichkeit und Funktionalität zusätzlich erhöht.

Lage

Die Stadt Zadar liegt an der kroatischen Adriaküste in Norddalmatien und verbindet auf eindrucksvolle Weise mediterranes Flair mit einer reichen Geschichte. Zum Stadtgebiet gehören insgesamt 14 Dörfer, von denen einige auf den umliegenden Inseln liegen, darunter Babindub, Brgulje, Crno, Ist, Kožino, Mali Iž, Molat, Olib, Petrčane, Premuda, Rava, Silba, Veli Iž und Zapuntel. Das milde mediterrane Klima macht Zadar zu einem attraktiven Reiseziel zu nahezu jeder Jahreszeit.

Bereits in illyrischer Zeit war Zadar eine bedeutende Siedlung und der wichtigste Handelsort Liburniens. Die Stadt liegt auf einer schmalen Landzunge am Adriatischen Meer und am Kanal von Zadar und war bis 1873 eine befestigte Festungsstadt, die durch einen Wassergraben vom Festland getrennt wurde. Noch heute zeugen der große Hafen und die vier historischen Stadttore von dieser Vergangenheit, darunter das Marinetor mit einem Fragment eines römischen Triumphbogens sowie die nach einem Entwurf von Sanmicheli errichtete Porta di Terraferma.

Der überwiegende Teil der Altstadt ist vom venezianischen Baustil geprägt. Besonders hervorzuheben sind die historischen Plätze wie der Herrenplatz mit dem ehemaligen Hauptwachtgebäude und der Gradska Straža, in der sich heute die Stadtbibliothek befindet, sowie der Brunnenplatz mit seiner antiken korinthischen Säule. Eine weitere solche Säule schmückt den Simeonsplatz. Von zentraler Bedeutung für die Stadtgeschichte ist das Staatsarchiv Zadar, dessen umfangreiche Archivalien bis ins frühe 10. Jahrhundert zurückreichen.

Neben den kulturhistorisch bedeutenden Kirchen beherbergt Zadar zahlreiche weitere bemerkenswerte Bauwerke, darunter das römische Forum, der ehemalige Palast der Prioren, der erzbischöfliche Palast und das Arsenal. Ein besonderes Ensemble bilden zudem die „fünf Brunnen“ und der angrenzende Turm des Stadtkommandanten. Dieser Platz entstand 1574 über einer großen Zisterne, deren Brunnen die Stadt bis Mitte des 19. Jahrhunderts mit Wasser versorgten und bis heute ein eindrucksvolles Zeugnis der historischen Stadtinfrastruktur darstellen.

Zadar ist hervorragend an das kroatische Straßennetz angebunden und verfügt über einen wichtigen Fährhafen, von dem aus sowohl die vorgelagerten Inseln als auch Verbindungen nach Italien erreicht werden können. Der internationale Flughafen Zadar ergänzt die gute Verkehrsanbindung und bietet neben regionalen auch zahlreiche europäische Flugverbindungen.
Lade Orte in der Umgebung

Sonstiges

Die Objektbeschreibung beruht ganz oder zum Teil auf Angaben des Eigentümers, der Text wurde teilweise mit Unterstützung künstlicher Intelligenz bearbeitet und überprüft. Für die Richtigkeit oder Vollständigkeit übernehmen wir keine Gewähr.

Beim ausgewiesenen Preis handelt es sich um den Angebotspreis, der sich durch Verhandlungen auch verändern kann. Bei diesem Objekt ist nicht vorgesehen, dass der Käufer mit uns eine eigenständige Provisionsvereinbarung trifft, sofern dieser als Verbraucher (§ 14 BGB) zu qualifizieren ist. Der Verkauf erfolgt nur an denjenigen, der sich bereit erklärt, einen Teil der vom Verkäufer zugesagten Provision zu übernehmen. Dieser Anteil beträgt in diesem Fall 3,57 % inkl. MwSt. vom Kaufpreis und ist nach Abschluss des Kaufvertrages zur Zahlung fällig.

Vereinbaren Sie noch heute einen unverbindlichen Besichtigungstermin und überzeugen Sie sich selbst! Terminvorschläge an: heilbronn@falcimmo.de. Da wir die Termine für Besichtigungen mit größter Sorgfalt planen, bitten wir Sie um Verständnis dafür, dass Termine ausschließlich in schriftlicher Form per E-Mail vereinbart werden können. Um fair und gerecht gegenüber jedem unserer Interessenten zu werden, ist dies unumgänglich. Wir freuen uns über Ihre Kontaktaufnahme! Geben Sie bitte immer die vollständige ADRESSE und RUFNUMMER an!

Ihr Ansprechpartner: Andreas Franzke, heilbronn@falcimmo.de
Besuchen Sie uns auch in unserem Büro in: Neckarsulmer Str. 2, 74076 Heilbronn

Sie denken selbst über die Veräußerung Ihrer Immobilie nach oder möchten einfach nur wissen, was diese wert ist? Bei uns erhalten Sie kostenlos eine professionelle Wertermittlung! Gehen Sie hierzu auf: https://www.falcimmo.de/wertermittlung-immobilien.html oder kontaktieren Sie uns.

Anbieterdaten

Andreas Franzke

Ansprech­partner

Andreas Franzke

Ihre Nachricht an FALC Immobilien Heilbronn (Andreas Franzke)

Ihr Ansprechpartner: Andreas Franzke

Mit (*) gekennzeichnete Felder sind Pflichtangaben.