Nachmieter gesucht: Große Arztpraxis in Ludwigshafen-Süd

Eckdaten

 Zimmer
 Wohnfl.
 Grundst.
Kaltmiete
Zimmer
Wohnfl.
Grundst.

Kaltmiete

Basisdaten

Objektnummer
Immopark ID
IP-306789
Objekt ID
FALC-AND-78702
Adresse
Ort
67059 Ludwigshafen am Rhein
zus. Info
1A Lage
Fakten und Zahlen
Immobilientyp
Praxis
Vermarktungsart
Miete / Pacht
Nutzungsart
Gewerbliche Nutzung
Baujahr
1955
Kerndaten
Bürofläche
230 m2
Verfügbarkeit
Verfügbar ab
sofort

Preisdaten

Preis
Kaltmiete
2.500 €
Courtage
provisionspflichtig
Käufercourtage
8.925 € incl. MwSt nach Abschluss des Mietvertrages

Merkmale

Zimmer und Bereiche
Voll unterkellert
Abstell­raum
Ausstattung und Technik
Einbau­küche
EDV - Ver­ka­be­lung
Gewerbe Merkmale
Bürofläche
230 m2
Besondere Merkmale
barriere­frei
Stellplätze
Anzahl Stellplätze (gesamt)
2.0
Tiefgarage
Anzahl
2.0

Energie

Energieausweis
Typ
Bedarfs­ausweis
EnEV
ab 01.05.2014 (gemäß EnEV 2014)
Energieausweis gültig bis
16.12.2034
Endenergiebedarf gemessen in kWh/(m²a)
96.62

A+ABCDEFGH

wesentlicher Energieträger
Fernwärme
Energieeffizienz­klasse
C
Ausstelldatum
17.12.2024
Gebäudeart lt. Energieausweis
Nicht Wohngebäude
Befeuerungsart
Fernwärme

Umgebung

Es wurden keine Daten angegeben.

Objektbeschreibung

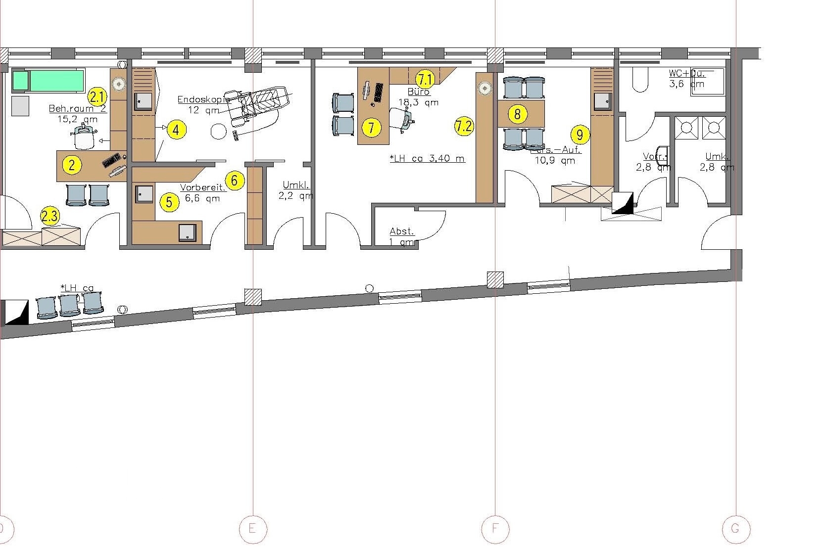
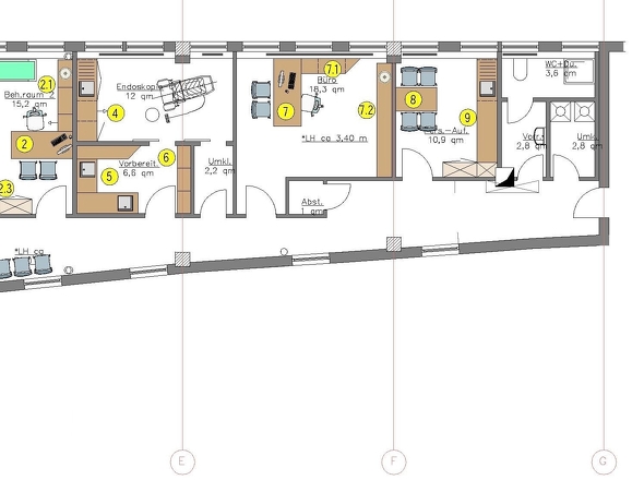
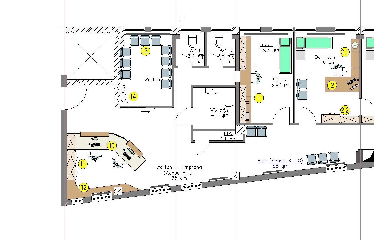
Die zur Vermietung stehende Fläche umfasst insgesamt ca. 230 m² und verfügt über eine durchdachte Raumaufteilung, die sich ideal für medizinische oder therapeutische Dienstleistungen eignet.

Die Einheit gliedert sich in folgende Räume:

Anmeldebereich mit Garderobe
1 Wartezimmer
3 Sprech- bzw. Untersuchungszimmer
1 Laborraum mit Einbauschränken und Waschbecken
1 Raum für Eingriffe bzw. Endoskopien mit angrenzendem Vorbereitungsraum und separater Patientenumkleide
1 Personalraum mit Küchenzeile, Spülmaschine und Platz für einen Kühlschrank
2 Abstell- bzw. Lagerräume
1 Waschraum
1 Duschbad für Mitarbeiter
3 WCs, darunter ein Behinderten-WC
1 Kellerraum
2 Stellplätze in der Tiefgarage

Die Räumlichkeiten wurden zuletzt als urologische Praxis genutzt und befinden sich in einem gepflegten Zustand. Die Praxis befindet sich im ersten Obergeschoss und ist bequem mit einem Fahrstuhl erreichbar. Der bisherige Mieter ist bereits ausgezogen und sucht einen geeigneten Nachmieter.

Der aktuelle Mietvertrag läuft bis zum 30.04.2027, eine Verlängerung ist nach Absprache möglich. Die monatliche Kaltmiete beträgt 2.500 €. Die Kaution beträgt drei Kaltmieten.


Nach Rücksprache mit dem Vermieter ist auch eine Nutzung für andere Gewerbe, beispielsweise als Anwalts- oder Steuerkanzlei, möglich.

Ausstattung

In sämtlichen Räumen der Praxis ist ein pflegeleichter, chemikalienresistenter Vinylboden verlegt, der sowohl funktional als auch langlebig ist. Die Fenster sind zweifach verglast und verfügen über Lamellen- sowie Plisseejalousien, die eine flexible Licht- und Sichtregulierung ermöglichen.

Für ein angenehmes Raumklima sorgt eine Klimaanlage in allen Räumen, während die Beheizung über eine Gaszentralheizung erfolgt. Zudem sind alle Behandlungs- und Untersuchungszimmer mit Datenleitungen ausgestattet und bieten damit eine zeitgemäße technische Infrastruktur.

Die im Objekt verbleibenden Maßanfertigungen der Möblierung, wie auf den Fotos und im 3D-Rundgang ersichtlich, verleihen den Räumlichkeiten eine hochwertige und funktionale Ausstattung. Der bisherige Mieter hat bei seinem Einzug im Jahr 2012 rund 80.000 € in den Ausbau der Praxis investiert und stellt diese Investitionen gegen eine Abstandszahlung in Höhe von 25.000 € zur Verfügung.

Lage

Die Arztpraxis befindet sich in Ludwigshafen-Süd, einem attraktiven Stadtteil der zweitgrößten Stadt der Pfalz. Ludwigshafen liegt zentral in der Metropolregion Rhein-Neckar, einer der bedeutendsten und wirtschaftlich stärksten Regionen Deutschlands. Die Lage zeichnet sich durch eine hervorragende Erreichbarkeit, eine hohe Einwohnerdichte und eine sehr gute medizinische sowie infrastrukturelle Versorgung aus.

In unmittelbarer Nähe befindet sich die beliebte Rhein-Galerie, ein modernes Einkaufszentrum direkt am Rheinufer, das täglich zahlreiche Besucher anzieht und damit für eine hohe Passantenfrequenz sorgt. Die Umgebung ist geprägt von Wohn- und Geschäftshäusern, wodurch ein stetiger Bedarf an medizinischen Dienstleistungen besteht.

Die Anbindung an den öffentlichen Personennahverkehr ist ausgezeichnet. Ludwigshafen ist in das Netz des Verkehrsverbunds Rhein-Neckar (VRN) eingebunden und wird durch die Rhein-Haardt-Bahn sowie mehrere Buslinien optimal erschlossen. Die nächste Straßenbahnhaltestelle liegt lediglich rund 3 Gehminuten entfernt und ermöglicht Patienten eine schnelle und bequeme Anreise. Auch die überregionalen Verkehrsadern der Region sind gut erreichbar, was die Lage zusätzlich unterstreicht.
Lade Orte in der Umgebung

Zusätzliche Information

Die Arztpraxis befindet sich in Ludwigshafen-Süd, einem attraktiven Stadtteil der zweitgrößten Stadt der Pfalz. Ludwigshafen liegt zentral in der Metropolregion Rhein-Neckar, einer der bedeutendsten und wirtschaftlich stärksten Regionen Deutschlands. Die Lage zeichnet sich durch eine hervorragende Erreichbarkeit, eine hohe Einwohnerdichte und eine sehr gute medizinische sowie infrastrukturelle Versorgung aus.

 

In unmittelbarer Nähe befindet sich die beliebte Rhein-Galerie, ein modernes Einkaufszentrum direkt am Rheinufer, das täglich zahlreiche Besucher anzieht und damit für eine hohe Passantenfrequenz sorgt. Die Umgebung ist geprägt von Wohn- und Geschäftshäusern, wodurch ein stetiger Bedarf an medizinischen Dienstleistungen besteht.

 

Die Anbindung an den öffentlichen Personennahverkehr ist ausgezeichnet. Ludwigshafen ist in das Netz des Verkehrsverbunds Rhein-Neckar (VRN) eingebunden und wird durch die Rhein-Haardt-Bahn sowie mehrere Buslinien optimal erschlossen. Die nächste Straßenbahnhaltestelle liegt lediglich rund 3 Gehminuten entfernt und ermöglicht Patienten eine schnelle und bequeme Anreise. Auch die überregionalen Verkehrsadern der Region sind gut erreichbar, was die Lage zusätzlich unterstreicht.

Sonstiges

Wir bieten folgendes Prozedere für die Immobilienbesichtigung an:

1. Schauen Sie unser aussagekräftiges Exposé an

2. Wandern Sie mittels unseres 360° Rundgangs durch die Immobilie. Kopieren Sie dazu folgenden Link:
https://app.immoviewer.com/portal/tour/3137329

3. Bitte haben Sie Verständnis, dass wir Besichtigungen nur bei Vorliegen einer Mieterselbstauskunft und einer positiven Schufa durchführen.

4. Wir freuen uns auf Ihre Kontaktaufnahme. Bitte senden Sie uns dazu über den Button „Anbieter kontaktieren“ Ihre vollständigen Kontaktdaten (incl. Ihrer Telefonnummer für Absprache eines Besichtigungstermins). Wir bitten um Verständnis, dass nur schriftliche Anfragen beantwortet werden können.

Die Objektbeschreibung beruht ganz oder zum Teil auf Angaben des derzeitigen Mieters. Für die Richtigkeit oder Vollständigkeit übernehmen wir keine Gewähr.

Die im Exposé ausgewiesene Maklercourtage ist nach Abschluss des Mietvertrages fällig.

Anbieterdaten

Andreas Dahm

Ansprech­partner

Andreas Dahm

Ihre Nachricht an FALC Immobilien Viernheim (Andreas Dahm)

Ihr Ansprechpartner: Andreas Dahm

Mit (*) gekennzeichnete Felder sind Pflichtangaben.