Neubau-Doppelhaushälfte in Srima nur 200 m vom Strand entfernt

Eckdaten

 Zimmer
 Wohnfl.
 Grundst.
Kaufpreis
 Zimmer
 Wohnfl.
 Grundst.

Kaufpreis

Basisdaten

Objektnummer
Immopark ID
IP-311819
Objekt ID
9223
Adresse
Ort
22211 Vodice
Fakten und Zahlen
Haustyp
Doppel­haus­hälfte
Vermarktungsart
Kauf
Nutzungsart
wohnen
Verkaufsstatus
offen
Baujahr
2025
Kerndaten
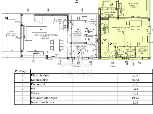
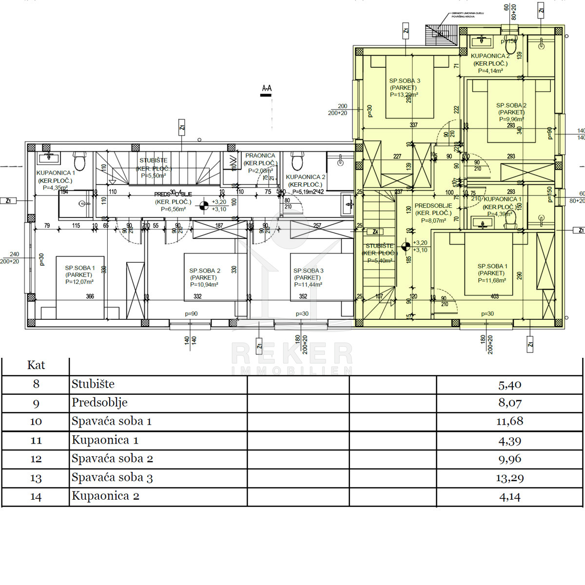
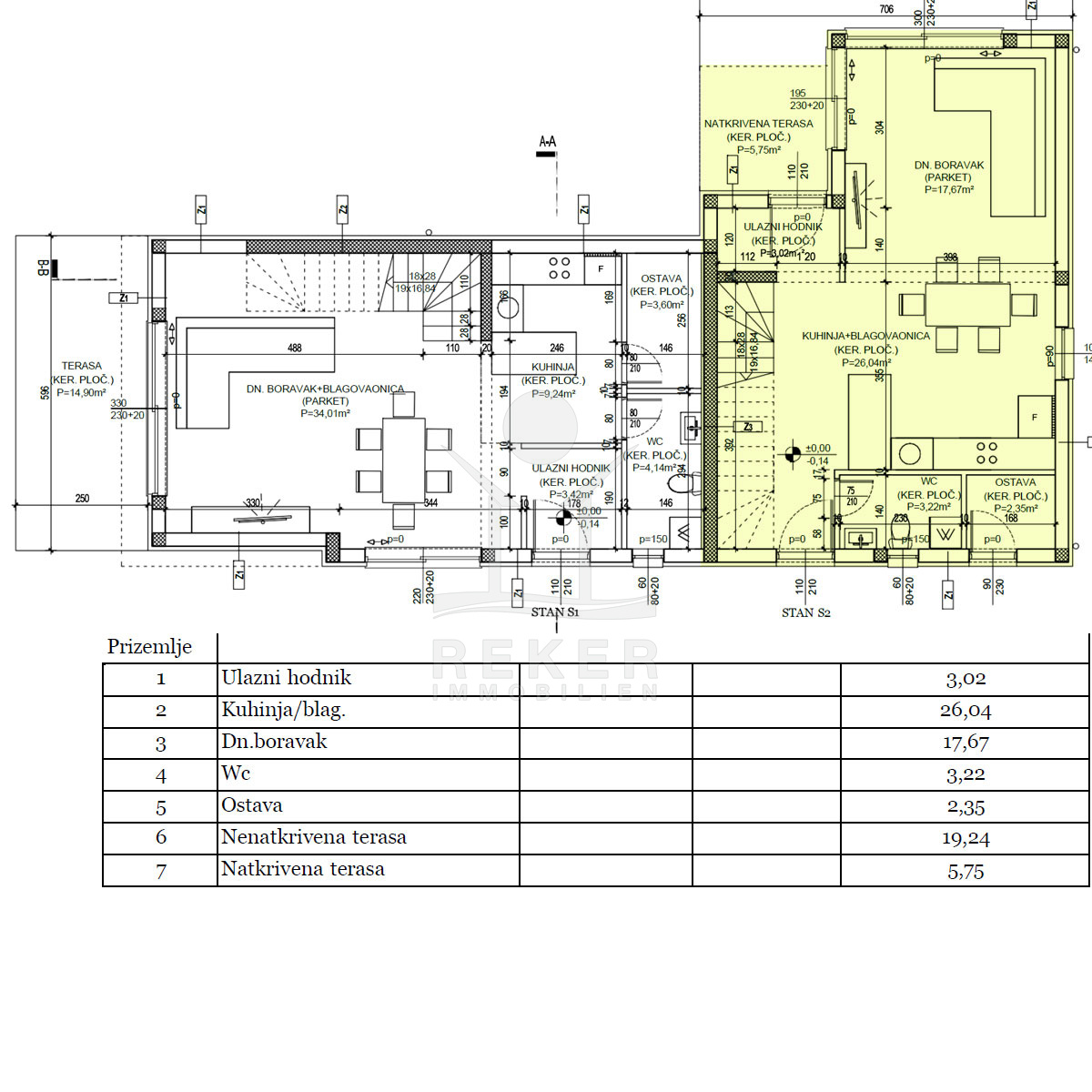
Wohnfläche
134,22 m2
Zimmer
4.0
Schlafzimmer
3.0
Badezimmer
2.0
Grundstücksfläche
165 m2
Anzahl Stellplätze (gesamt)
2.0
Bauweise / Substanz
Objektzustand
Erstbezug
Etagenanzahl der Immobilie
2

Preisdaten

Preis
Kaufpreis
450.000 €
Courtage
Käufercourtage
3,75 % inkl. MwSt. in Kroatien

Merkmale

Zimmer und Bereiche
Anzahl (Terrassen)
1.0
Schlaf­zimmer
Ausstattung und Technik
Klima­anlage
Sanitäre Einrichtung
Gäste WC
Wellness
Swimming-Pool
Stellplätze
Anzahl Stellplätze (gesamt)
2.0
Sonstiger Stellplatz
Anzahl
2.0

Energie

Energieausweis
Gebäudeart lt. Energieausweis
Wohngebäude
Heizung
Fußboden­heizung

Umgebung

Es wurden keine Daten angegeben.

Objektbeschreibung

Fußbodenheizung in Bädern, Küche und Wohnzimmer, Klimaanlagen in allen Schlafräumen und ein privater Pool machen Ihr neues Zuhause komfortabel und behaglich – zu jeder Jahreszeit. Ihr Alltag wird leichter und entspannter.

Ausstattung

https://www.reker-immobilien.de/kroatien/doppelhaushaelfte-vodice-meerblick-neubau_9223?utm_source=ausstattung&utm_medium=txt&utm_campaign=9223
~

Lage

In Srima, einem ruhigen Stadtteil von Vodice, erwartet Sie diese moderne Doppelhaushälfte. Zum Strand sind es nur 200 Meter, das Ortszentrum mit Restaurants und Geschäften erreichen Sie nach 550 Metern. Zwei Stellplätze direkt am Haus sorgen für kurze Wege und sicheren Komfort. Das Haus wird in solider Bauweise errichtet und ist im Herbst 2025 bezugsfertig. So genießen Sie von Beginn an moderne Standards und hochwertige Qualität.
Lade Orte in der Umgebung

Anbieterdaten

Ansprech­partner

Ihre Nachricht an Reker Immobilien

Ihr Ansprechpartner: admin@reker-immobilien.de

Mit (*) gekennzeichnete Felder sind Pflichtangaben.