Neubau Doppelhaushälfte in toller Lage von Hüllhorst Schnathorst. Fertigstellung Ende 2026 geplant
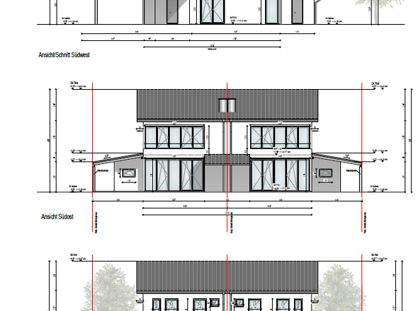
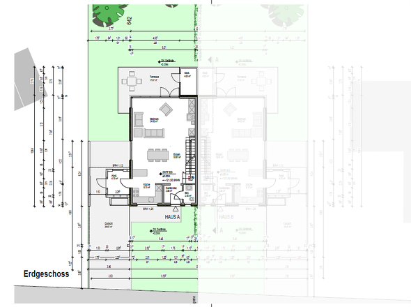
Bild mit KI bearbeitetBild mit KI bearbeitetBild mit KI bearbeitetBild mit KI bearbeitetBild mit KI bearbeitetKinderzimmer (Bild mit KI bearbeitet)Ansichten NordwestAnsichten Nordost und SüdwestEG linksEG rechts1. OG links1. OG rechtsEG komplett beide Haushälften1. OG komplett beide HaushälftenSchnittansichtenFlurkarte Haus linkFlurkarte Haus rechtsBild mit KI bearbeitet
Eckdaten
Zimmer
Wohnfl.
Grundst.
Kaufpreis
Zimmer
Wohnfl.
Grundst.
359000.0€ Kaufpreis
Basisdaten
Objektnummer
Immopark ID
IP-314702
Objekt ID
2663
Adresse
32609 Hüllhorst / Schnathorst
Ort
32609 Hüllhorst / Schnathorst
Fakten und Zahlen
Haustyp
Doppelhaushälfte
Vermarktungsart
Kauf
Nutzungsart
wohnen
Verkaufsstatus
offen
Baujahr
2022
Kerndaten
Wohnfläche
120 m2
Zimmer
4.0
Schlafzimmer
3.0
Badezimmer
1.0
Vermietbare Fläche
120 m2
Grundstücksfläche
300 m2
Anzahl Stellplätze (gesamt)
2.0
Bauweise / Substanz
Objektzustand
Erstbezug
Etagenanzahl der Immobilie
2
Preisdaten
Preis
Kaufpreis
359.000 €
Courtage
Käufercourtage
3,57 % vom Kaufpreis inkl. MwSt.
Merkmale
Zimmer und Bereiche
Typ
Nicht unterkellert
Anzahl (Terrassen)
1.0
Zimmer und Räume
Schlafzimmer
Stellplätze
Anzahl Stellplätze (gesamt)
2.0
Stellplatzdetails
Freiplatz
Anzahl
2.0
Energie
Energieausweis
Typ
Bedarfsausweis
EnEV
ab 01.05.2014 (gemäß EnEV 2014)
Energieausweis gültig bis
2032-10-03
Endenergiebedarf gemessen in kWh/(m²a)
21.20
A+ABCDEFGH
wesentlicher Energieträger
Luft-/Wasser-Wärmepumpe
Energieeffizienzklasse
A+
Baujahr lt. Energieausweis
2023
Gebäudeart lt. Energieausweis
Wohngebäude
Heizung
Heizungsart
Fußbodenheizung
Befeuerungsart
Befeuerungsart
Luft-/Wasser-Wärmepumpe
Umgebung
Es wurden keine Daten angegeben.
Objektbeschreibung
Willkommen im neuen Zuhause – Einzug noch 2026 geplant? Auf einem ca. 600 m² großen Grundstück entstehen aktuell zwei moderne Doppelhaushälften. Die Fertigstellung ist für Ende 2026 geplant. Noch haben Sie die Möglichkeit, viele Ausstattungsdetails wie Bodenbeläge, Badausstattung und Innentüren nach Ihren persönlichen Wünschen zu gestalten. Raumkonzept – durchdacht und familienfreundlich Jede Doppelhaushälfte bietet ca. 120 m² Wohnfläche, verteilt auf zwei Etagen mit insgesamt vier Zimmern. Im Erdgeschoss befinden sich: •ein Gäste-WC •ein praktischer Hauswirtschaftsraum •ein großzügiger Wohn- und Essbereich mit offener Küche und Zugang zur Terrasse mit Blick in den Garten Im Obergeschoss erwarten Sie drei helle, gut geschnittene Schlafzimmer, die sich ideal als Kinderzimmer, Büro oder Gästezimmer nutzen lassen. Zusätzlich steht Ihnen ein komfortables Badezimmer zur Verfügung – ausgestattet mit einer modernen Dusche und einer entspannenden Eckbadewanne.
Ausstattung
Ausstattung – hochwertig und individuell Die Ausstattung lässt kaum Wünsche offen. Sie wählen selbst: •Bodenbeläge in Vinyl - Holzoptik oder stilvolle Fliesen •Hochwertige Sanitärobjekte namhafter Hersteller •Türen und Details nach Ihrem Stil
Weitere Highlights: •Moderne Luft-Wasser-Wärmepumpe für umweltfreundliches Heizen •Fußbodenheizung in allen Wohnräumen •Bodentiefe Fenster mit 3-fach-Wärmeschutzverglasung •Elektrische Rollläden •Schwimmender Estrich mit Wärmedämmung •Malerarbeiten im Leistungsumfang enthalten •Optionale Photovoltaikanlage (nicht im Preis enthalten)
Lage
Lage – Leben in Hüllhorst-Schnathorst Ihr neues Zuhause entsteht in einer verkehrsberuhigten Anwohnerstraße im beliebten Hüllhorster Ortsteil Schnathorst – ruhig gelegen und doch gut angebunden. Die Gemeinde Schnathorst zählt rund 2.700 Einwohner und gehört zur Großgemeinde Hüllhorst mit ca. 15.000 Einwohnern. Die unmittelbare Nähe zum Wiehengebirge bietet Ihnen einen hohen Freizeitwert, ideal zum Wandern, Radfahren oder einfach zum Entspannen in der Natur. Infrastruktur – alles in direkter Nähe •Supermärkte, Bäckereien, Gastronomie, Banken, Ärzte & Apotheken: 300–750 m entfernt •Spielplatz: fußläufig in wenigen Minuten erreichbar •Grund- und weiterführende Schulen: ebenfalls im nahen Umfeld •Bushaltestelle im Ortskern mit stündlicher Anbindung an umliegende Orte •Bundesstraßen B65 & B238 sowie A30: in ca. 15 Minuten erreichbar
Lade Orte in der Umgebung
Sonstiges
Es liegt ein Energiebedarfsausweis vor. Dieser ist gültig bis 3.10.2032. Endenergiebedarf beträgt 21.20 kwh/(m²*a). Wesentlicher Energieträger der Heizung ist Luft/wasser Wärmepumpe. Das Baujahr des Objekts lt. Energieausweis ist 2023. Die Energieeffizienzklasse ist A+.
Der Preis versteht sich für eine Doppelhaushälfte. Die zweite Doppelhaushälfte steht ebenfalls zum Verkauf. Alle Bilder sind mit KI bearbeitet und dienen lediglich als Beispiel für eine Ausführung! Eine Preisreduktion durch Eigenleistungen ist ebenfalls vorstellbar.
Ansprechpartner ist Herr Thomas Küssner Tel. 0173-2861291