Penthouse-Maisonettewohnung mit Dachterrasse in Bestlage von Remscheid
überdachter TerrassenbereichTreppenaufgang HauseingangWohnungseingangSchlafzimmerBadezimmerTreppenaufgang im EingangsbereichWohnzimmerWohnzimmerEssbereichEinbaukücheEinbaukücheGästebereich auf der GalerieBlick ins Wohnzimmerseitliche DachterrasseDachterrasseGrundriss OGGrundriss DGGrundriss Spitzboden33(1)
Eckdaten
Zimmer
Wohnfl.
Grundst.
Kaufpreis
Zimmer
Wohnfl.
Grundst.
565000.0€ Kaufpreis
Basisdaten
Objektnummer
Immopark ID
IP-312622
Objekt ID
5208
Adresse
42853 Remscheid
Ort
42853 Remscheid
Fakten und Zahlen
Wohnungstyp
Penthouse
Vermarktungsart
Kauf
Nutzungsart
wohnen
Verkaufsstatus
offen
Baujahr
1980
Kerndaten
Wohnfläche
244 m2
Zimmer
5.0
Schlafzimmer
3.0
Badezimmer
1.0
separate WC
1.0
Nutzfläche
60 m2
Anzahl Stellplätze (gesamt)
3.0
Bauweise / Substanz
Etagenanzahl der Immobilie
3
Verfügbarkeit
Verfügbar ab
nach Vereinbarung
Preisdaten
Preis
Kaufpreis
565.000 €
Courtage
Käufercourtage
2,98 % inkl. MwSt.
Innen- / Außencourtage
inkl. MwSt.
Merkmale
Zimmer und Bereiche
Typ
Voll unterkellert
Gesamtfläche
60 m2
Anzahl (Balkone)
2.0
Anzahl (Terrassen)
1.0
Zimmer und Räume
Schlafzimmer
Zimmer und Räume
Wasch- / Trockenraum
Ausstattung und Technik
Qualität der Ausstattung
gehoben
Küche
Einbauküche
TV Anschluss
Kabel Sat TV
Sanitäre Einrichtung
Sanitäre Einrichtung
Gäste WC
Stellplätze
Anzahl Stellplätze (gesamt)
3.0
Stellplatzdetails
Garage
Anzahl
3.0
Kaufpreis
10.000 €
Energie
Energieausweis
Typ
Verbrauchsausweis
EnEV
ab 01.05.2014 (gemäß EnEV 2014)
Energieausweis gültig bis
2032-02-21
Energieverbrauchskennwert gemessen in kWh/(m²a)
162.50
A+ABCDEFGH
wesentlicher Energieträger
Gas
Energieeffizienzklasse
F
Baujahr lt. Energieausweis
1980
Gebäudeart lt. Energieausweis
Wohngebäude
Heizung
Heizungsart
Fußbodenheizung
Befeuerungsart
Befeuerungsart
Gas
Umgebung
Es wurden keine Daten angegeben.
Objektbeschreibung
Sehr geehrte/r Interessent/in,
diese exklusive Penthouse-Maisonette-Wohnung bietet auf rund 244 m² Wohnfläche ein außergewöhnliches Wohnambiente über drei Ebenen. Das Gebäude mit insgesamt nur zwei Wohneinheiten wurde 1980 errichtet. Durch die geschickte Aufteilung genießen Sie hier ein Höchstmaß an Privatsphäre. Der repräsentative Hauseingang führt direkt zum Zugang im 1. Obergeschoss. Zudem besteht die Möglichkeit, einen Aufzug nachzurüsten und so zusätzlichen Wohnkomfort zu schaffen.
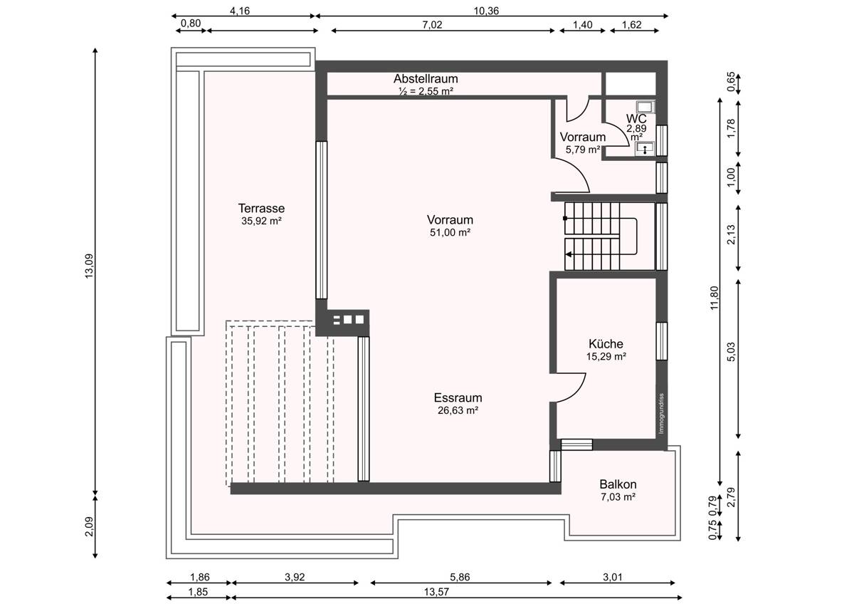
Im ersten Obergeschoss erwartet Sie eine großzügige Diele, die in ein Schlafzimmer mit Balkon, zwei weitere Zimmer (ideal als Kinder- oder Arbeitszimmer), ein Ankleidezimmer, ein großes Badezimmer mit Marmor-Ausstattung sowie einen Abstellraum führt.
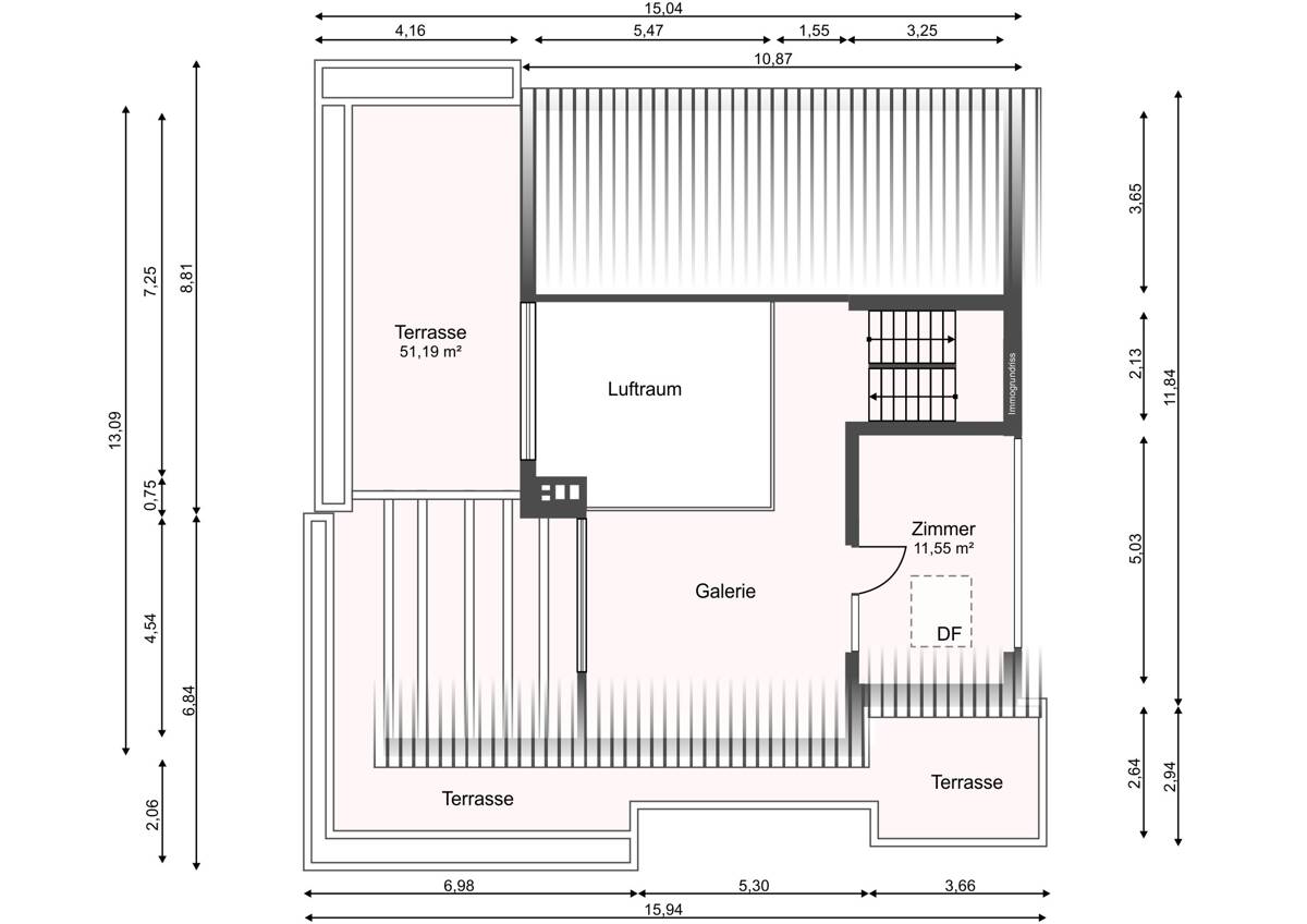
Über eine offene Treppe gelangen Sie in den Wohnbereich der oberen Etage. Hier dominieren lichtdurchflutete Räume mit hohen Decken und großen Fensterflächen. Besonders beeindruckend ist der verglaste Giebel mit einer Höhe von sieben Metern, der ein einzigartiges Raumgefühl schafft. Der weitläufige Wohn- und Essbereich mit angrenzender Küche überzeugt durch direkten Zugang zu einem Balkon sowie zur rund 51 m² großen Dachterrasse in Südwestausrichtung. Ein überdachter Freisitz sorgt für geschützte Momente im Freien, der sich im Winter durch einsetzbare Elemente vollständig schließen und als Wintergarten nutzen lässt. Ein Gäste-WC komplettiert diese Etage.
Die offene Galerie bietet zusätzliche Wohnfläche und eignet sich ideal als Fernsehzimmer oder Gästebereich.
Zur Wohnung gehört ein großer Keller- und Hobbyraum mit Dusche, ein Bügelzimmer sowie drei Garagenplätze.
Das Haus verfügt außerdem bereits über einen Glasfaseranschluss von E-ON.
Haben wir Ihr Interesse geweckt? Gerne zeigen wir Ihnen diese tolle Wohnung persönlich.
Ausstattung
•ca. 244 m² Wohnfläche •Dachterrasse (Südwestlage, ca. 51 m²) •überdachter Freisitz / Wintergarten •großzügiger Wohn-/Essbereich mit Kamin •Einbau- und Abstellmöglichkeiten •Marmorbadezimmer •weitläufige Galerie •Glasfaseranschluss vorhanden •Fitnessraum mit Dusche •drei Garagenplätze •Alarmanlage •Klimaanlage im Gästezimmer auf der Galerie
Lage
Die Immobilie befindet sich in einer ruhigen Seitenstraße in fußläufiger Nähe zur Remscheider Innenstadt. Große Laubbäume prägen das Straßenbild, während die großzügige Dachterrasse mit Südausrichtung sonnige Stunden bis in den Abend garantiert.
Remscheid – im Herzen des Bergischen Landes – bietet ein attraktives Wohnumfeld mit vielfältigen Kultur- und Freizeitmöglichkeiten. Sehenswürdigkeiten wie Schloss Burg, die Müngstener Brücke oder die Talsperren der Region sind in kurzer Zeit erreichbar. Auch der Remscheider Stadtpark sowie Kindergärten, Schulen und das Einkaufszentrum „Allee-Center“ mit über 100 Geschäften befinden sich in unmittelbarer Nähe.
Die Anbindung an den öffentlichen Nahverkehr ist hervorragend, der Hauptbahnhof sowie die Autobahnen A1 und A46 sind in wenigen Minuten erreichbar. Die Städte Düsseldorf, Köln und das Ruhrgebiet liegen lediglich 30–45 Minuten entfernt.
Lade Orte in der Umgebung
Sonstiges
RECHTSHINWEIS Da wir Objektangaben nicht selbst ermitteln, übernehmen wir hierfür keine Gewähr. Dieses Exposé ist nur für Sie persönlich bestimmt. Eine Weitergabe an Dritte ist an unsere ausdrückliche Zustimmung gebunden und unterbindet nicht unseren Provisionsanspruch bei Zustandekommen eines Vertrages. Alle Gespräche sind über unser Büro zu führen. Bei Zuwiderhandlung behalten wir uns Schadenersatz bis zur Höhe der Provisionsansprüche ausdrücklich vor. Zwischenverkauf ist nicht ausgeschlossen.