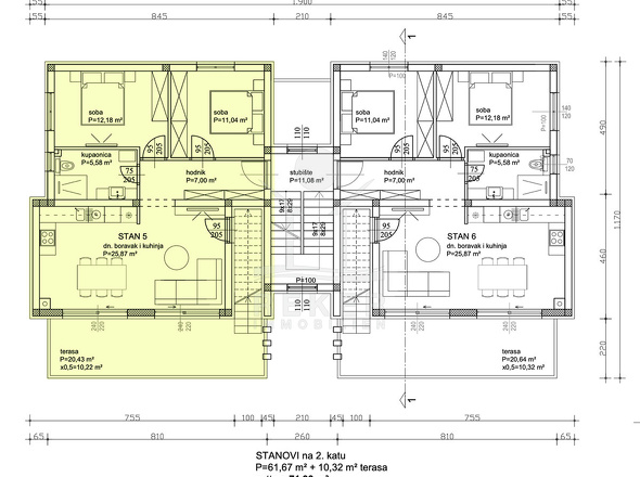
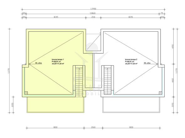
Penthouse mit Meerblick und beeindruckender Dachterrasse von 68,81 m²

Eckdaten

 Zimmer
 Wohnfl.
 Grundst.
Kaufpreis
 Zimmer
 Wohnfl.
Grundst.

Kaufpreis

Basisdaten

Objektnummer
Immopark ID
IP-314956
Objekt ID
9465
Adresse
Ort
23206 Sukošan
Fakten und Zahlen
Wohnungstyp
Pent­house
Vermarktungsart
Kauf
Nutzungsart
wohnen
Verkaufsstatus
offen
Baujahr
2026
Kerndaten
Wohnfläche
91,69 m2
Zimmer
3.0
Schlafzimmer
2.0
Badezimmer
1.0
Anzahl Stellplätze (gesamt)
1.0
Bauweise / Substanz
Objektzustand
Erstbezug
Etagenanzahl der Immobilie
1
Lage im Gebäude
Etage
2

Preisdaten

Preis
Kaufpreis
348.253 €
Courtage
Käufercourtage
3,75 % inkl. MwSt. in Kroatien

Merkmale

Zimmer und Bereiche
Ausrichtung
Südwest
Schlaf­zimmer
Ausstattung und Technik
Klima­anlage
Stellplätze
Anzahl Stellplätze (gesamt)
1.0
Freiplatz
Anzahl
1.0
Ausblick
Meer

Energie

Energieausweis
Gebäudeart lt. Energieausweis
Wohngebäude
Heizung
Fußboden­heizung

Umgebung

Es wurden keine Daten angegeben.

Objektbeschreibung

Über den Dingen wohnen: Meerblick, Sonne, Stil. Die Dachterrasse mit 68,81 m² Fläche krönt dieses Penthouse und schafft ein Ambiente, das jeden Tag besonders macht.

Ausstattung

https://www.reker-immobilien.de/kroatien/wohnung-sukosan-neubau-fussbodenheizung_9465?utm_source=ausstattung&utm_medium=txt&utm_campaign=9465
~

Lage

In Sukošan, einem beliebten Küstenort in Dalmatien, entsteht ein modernes Wohnhaus, nur 250 Meter vom Meer entfernt. Die südwestliche Ausrichtung sorgt für helle Räume und angenehme Sonnenstunden am Nachmittag. Das Umfeld ist ruhig, grün und vermittelt ein Gefühl von Leichtigkeit. Ein Ort, an dem Wohnen und Erholung selbstverständlich zusammenfinden.

Das kompakte Gebäude umfasst sechs Wohneinheiten, jeweils zwei pro Etage. Klare Linien und moderne Architektur bestimmen den Stil. Der Bau schreitet planmäßig voran, die Fertigstellung ist bis spätestens 15. März 2026 vorgesehen. Jede Wohnung verfügt über einen eigenen Parkplatz direkt vor dem Haus.
Lade Orte in der Umgebung

Anbieterdaten

Ansprech­partner

Ihre Nachricht an Reker Immobilien

Ihr Ansprechpartner: admin@reker-immobilien.de

Mit (*) gekennzeichnete Felder sind Pflichtangaben.