Renovierungsbedürftige Doppelhaushälfte in Trudering

Eckdaten

 Zimmer
 Wohnfl.
 Grundst.
Kaufpreis
 Zimmer
 Wohnfl.
 Grundst.

Kaufpreis

Basisdaten

Objektnummer
Immopark ID
IP-314882
Objekt ID
1065-4701-GM
Adresse
Ort
81827 München
Fakten und Zahlen
Haustyp
Doppel­haus­hälfte
Vermarktungsart
Kauf
Nutzungsart
wohnen
Verkaufsstatus
offen
Baujahr
1972
Kerndaten
Wohnfläche
110,94 m2
Zimmer
4.5
Schlafzimmer
3.0
Badezimmer
1.0
Gesamtfläche
175,34 m2
Nutzfläche
64,4 m2
Grundstücksfläche
289 m2
Anzahl Stellplätze (gesamt)
1.0
Bauweise / Substanz
Objektzustand
teil- vollrenovie­rungsbedürftig
Wohneinheiten
1.0

Preisdaten

Preis
Kaufpreis
749.000 €
Kaufpreis pro Quadratmeter
6.751,40 €
Courtage
Käufercourtage
3,57 % inkl. ges. MwSt.
inkl. MwSt.
Mieteinnahmen
aktuelle Mieteinnahmen
15.871,32 €
pro Jahr

Merkmale

Zimmer und Bereiche
Gesamtfläche
8,12 m2
Anzahl (Terrassen)
1.0
Schlaf­zimmer
Abstell­raum
Ausstattung und Technik
Qualität der Ausstattung
standard
Einbau­küche
Sanitäre Einrichtung
Gäste WC
Stellplätze
Anzahl Stellplätze (gesamt)
1.0
Garage
Anzahl
1.0

Energie

Energieausweis
Typ
Bedarfs­ausweis
EnEV
ab 01.05.2014 (gemäß EnEV 2014)
Energieausweis gültig bis
2036-03-26
Endenergiebedarf gemessen in kWh/(m²a)
288.90

A+ABCDEFGH

wesentlicher Energieträger
Öl
Energieeffizienz­klasse
H
Baujahr lt. Energieausweis
1972
Gebäudeart lt. Energieausweis
Wohngebäude
Heizung
Zentral­heizung
Befeuerungsart
Öl

Umgebung

Es wurden keine Daten angegeben.

Objektbeschreibung

Beim Betreten dieser Doppelhaushälfte eröffnet sich Ihnen ein Eingangsbereich, der harmonisch in die Küche und den großzügigen Wohn- und Essbereich übergeht. Die offene Gestaltung des Erdgeschosses vermittelt eine lichte, angenehme Atmosphäre – verstärkt durch weitläufige Fensterflächen, die den Blick ins Grüne einfangen und den Räumen eine freundliche Weite verleihen.

Die Küche bietet genügend Platz für gemeinsames Kochen und ist durch eine praktische Durchreiche geschickt mit dem Wohn- und Essbereich verbunden. Dieser besticht durch seine leichte Splitlevel-Architektur: Zwei Stufen trennen das höher gelegene Esszimmer vom etwas tiefer liegenden Wohnzimmer, wodurch ein sehr wohnlicher, räumlich strukturierter Eindruck entsteht. Vom Wohnzimmer aus gelangen Sie direkt auf die überdachte Terrasse und in den kleinen Garten – ein schöner Ort für entspannte Stunden im Freien.

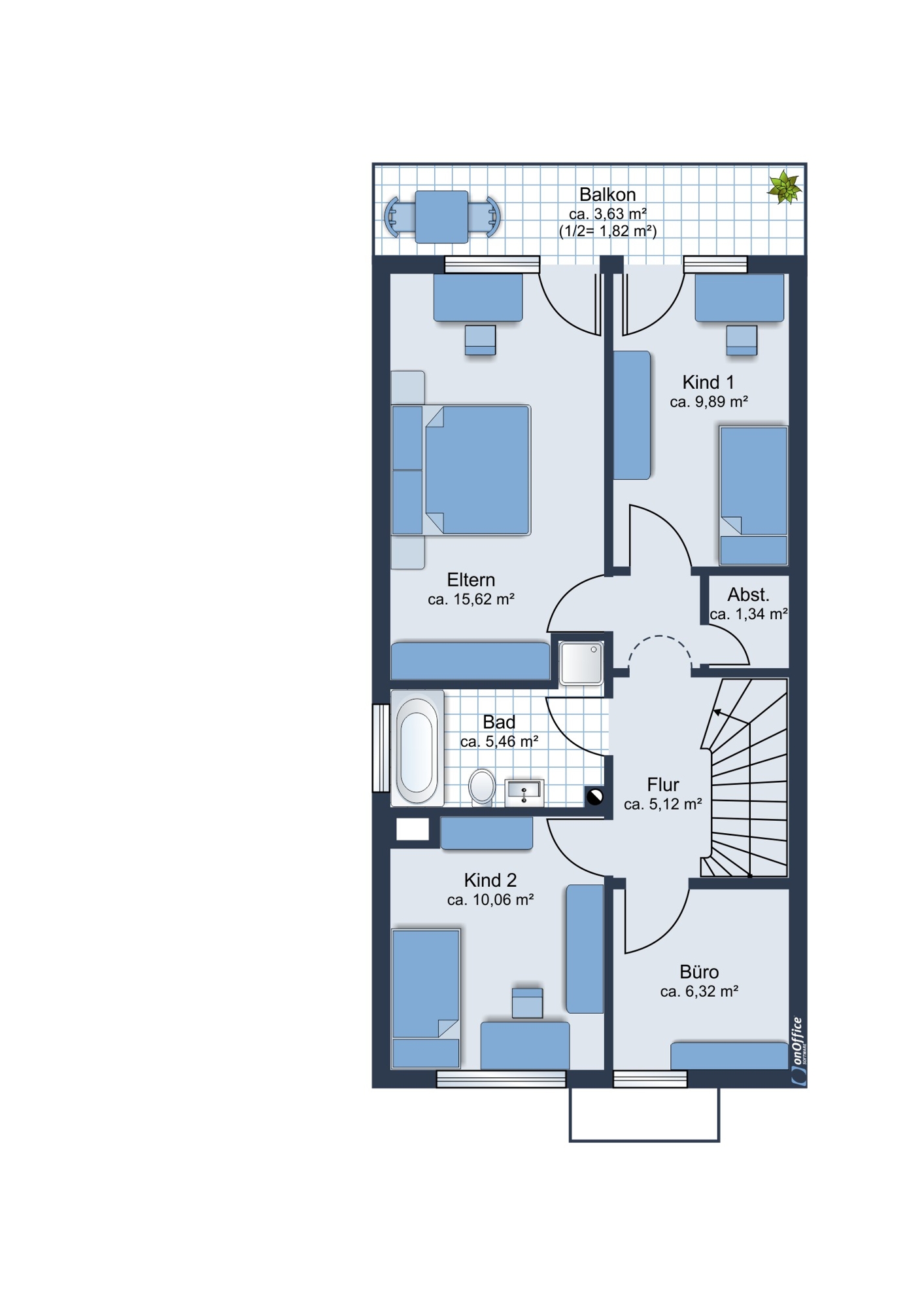
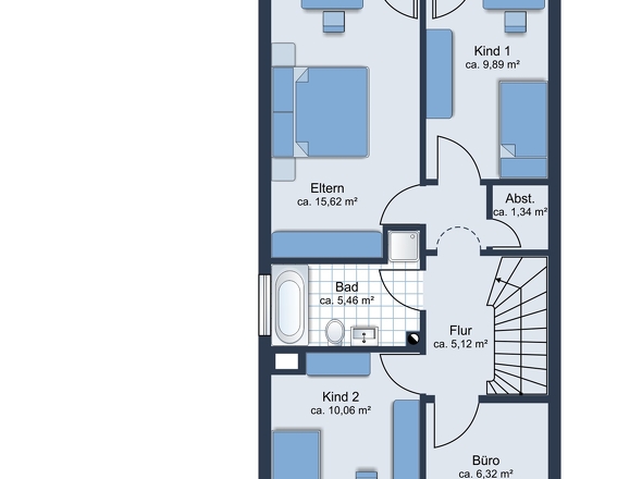
Im Obergeschoss liegen die privaten Rückzugsräume des Hauses. Drei Schlafzimmer bieten vielfältige Nutzungsmöglichkeiten; zwei davon verfügen über einen Zugang zum Balkon. Ein weiteres Zimmer eignet sich ideal als Homeoffice oder Gästezimmer. Das modernisierte Badezimmer, vor rund fünf bis sechs Jahren stilvoll erneuert, überzeugt mit einer komfortablen Badewanne und einem zeitlosen Design.

Ergänzt wird das Platzangebot durch den Kellerbereich, der neben praktischem Stauraum sowohl eine Waschküche als auch einen größeren Hobbykeller sowie den Heizungskeller umfasst. Eine Garage rundet dieses Angebot zusätzlich ab.

Die Doppelhaushälfte befindet sich in einem renovierungsbedürftigen Zustand und wird mit einem bestehenden Mietverhältnis angeboten.

Ausstattung

- Wohnfläche: ca. 110,94 m²
- Nutzfläche: ca. 64,40 m²
- Grundstücksfläche: ca. 289,00 m²
- Durchreiche zwischen Küche und Esszimmer
- Offener Wohn- und Essbereich mit Splitlevel-Architektur
- Große Fensterflächen für viel Tageslicht im Wohn- und Esszimmer
- Überdachte Terrasse mit Zugang zum Garten
- Garten mit Süd-Ausrichtung
- Tageslicht-Badezimmer mit Badewanne
- Südausgerichteter Balkon im Obergeschoss, zugänglich von zwei Schlafzimmern
- Balkon mit Süd-Ausrichtung
- Keller mit Waschküche, Hobbyraum und Heizungskeller
- 1 Garage vorhanden
- Mietverhältnis seit 09/1982
- aktuelle Nettokaltmiete p.M.: 1322,61€

Letzte Renovierungen:
- Neue Dachdeckung (2025)
- Teileweise Erneuerung der Fenster (2014)

Lage

Die Doppelhaushälfte liegt in einer ruhigen, grünen Wohngegend in München-Trudering. Gepflegte Wohnhäuser, gewachsene Strukturen und eine freundliche Nachbarschaft prägen das Umfeld und verleihen der Gegend eine entspannte und familienfreundliche Atmosphäre – ideal für alle, die stadtnah wohnen und dennoch zur Ruhe kommen möchten.

Einkaufsmöglichkeiten, Bäckereien, Ärzte und weitere Angebote für den täglichen Bedarf befinden sich in der Nähe und sind schnell erreichbar. Auch Schulen und Kindertagesstätten liegen im Umfeld und sorgen für kurze Wege im Alltag.

Verkehrstechnisch überzeugt Trudering durch seine gute Anbindung: Öffentliche Verkehrsmittel sowie wichtige Verkehrsachsen sind bequem erreichbar. Dadurch gelangen Sie sowohl in die Münchner Innenstadt als auch in die umliegenden Stadtteile in kurzer Zeit. Besonders praktisch ist die Nähe zur Messestadt Riem – inklusive Riem Arcaden, Messegelände und vielfältigen Freizeitmöglichkeiten rund um den Riemer See. Alles liegt nur wenige Fahrminuten entfernt und erweitert die Lebensqualität spürbar.

So besteht ein Wohnumfeld, das städtische Nähe, kurze Wege im Alltag und ein angenehm ruhiges, naturnahes Ambiente harmonisch miteinander vereint.
Lade Orte in der Umgebung

Sonstiges

Alle Angaben sind freibleibend, unverbindlich, ohne Gewähr und basieren ausschließlich auf Informationen, die uns von unserem Auftraggeber mitgeteilt wurden. Wir übernehmen keine Gewähr für Vollständigkeit, Richtigkeit und Aktualität.

Zwischenvermittlung bleibt vorbehalten. Sollte Ihnen die von uns nachgewiesene Immobilie bereits bekannt sein, teilen Sie uns dieses bitte unverzüglich mit. Die Weitergabe dieses Exposés an Dritte ohne unsere Zustimmung löst gegebenenfalls Schadensersatzansprüche aus.

Wir weisen Sie darauf hin, dass unsere Tätigkeit im Erfolgsfall eine Vermittlungs- und oder Nachweisprovision nach sich zieht. Bei Verkauf beträgt die Provision 3,57% inkl. 19% MwSt. des notariell beurkundeten Kaufpreises. Der Immobilienmakler hat einen provisionspflichtigen Maklervertrag mit dem Verkäufer in gleicher Höhe abgeschlossen.

Anbieterdaten

Gabriele Meier

Ansprech­partner

Gabriele Meier

Ihre Nachricht an RE/MAX Living / MDV Consult GmbH

Ihr Ansprechpartner: Gabriele Meier

Mit (*) gekennzeichnete Felder sind Pflichtangaben.