Saniertes Mehrfamilienhaus mit 5 Wohneinheiten in Bad Salzuflen -Kapitalanlage-

Eckdaten

 Zimmer
 Wohnfl.
 Grundst.
Kaufpreis
 Zimmer
 Wohnfl.
 Grundst.

Kaufpreis

Basisdaten

Objektnummer
Immopark ID
IP-315661
Objekt ID
15502#nwWiq
Adresse
Ort
32108 Bad Salzuflen
zus. Info
Wohngebiet
Fakten und Zahlen
Haustyp
Mehr­familien­haus
Vermarktungsart
Kauf
Nutzungsart
wohnen
Baujahr
1972
Kerndaten
Wohnfläche
379 m2
Zimmer
14.0
Schlafzimmer
9.0
Badezimmer
5.0
separate WC
3.0
Grundstücksfläche
709 m2
Bauweise / Substanz
Objektzustand
modernisiert
Bauweise
Massivhaus

Preisdaten

Preis
Kaufpreis
849.000 €
Mieteinnahmen
aktuelle Mieteinnahmen
40.560 €

Merkmale

Zimmer und Bereiche
Voll unterkellert
Anzahl (Balkone)
5.0
Anzahl (Terrassen)
1.0
Schlaf­zimmer
Ausstattung und Technik
Einbau­küche
Fliesen­boden
Kunst­stoff­boden
Kamin
Sanitäre Einrichtung
Fenster
Dusche
Wanne
Gäste WC
Wellness
Sauna

Energie

Energieausweis
Typ
Verbrauchs­ausweis
EnEV
ab 01.05.2014 (gemäß EnEV 2014)
Energieausweis gültig bis
15.02.2036
Energie­verbrauchs­kennwert gemessen in kWh/(m²a)
156.0

A+ABCDEFGH

Ausstelldatum
16.02.2026
Gebäudeart lt. Energieausweis
Wohngebäude
Heizung
Zentral­heizung
Befeuerungsart
Öl

Umgebung

Es wurden keine Daten angegeben.

Objektbeschreibung

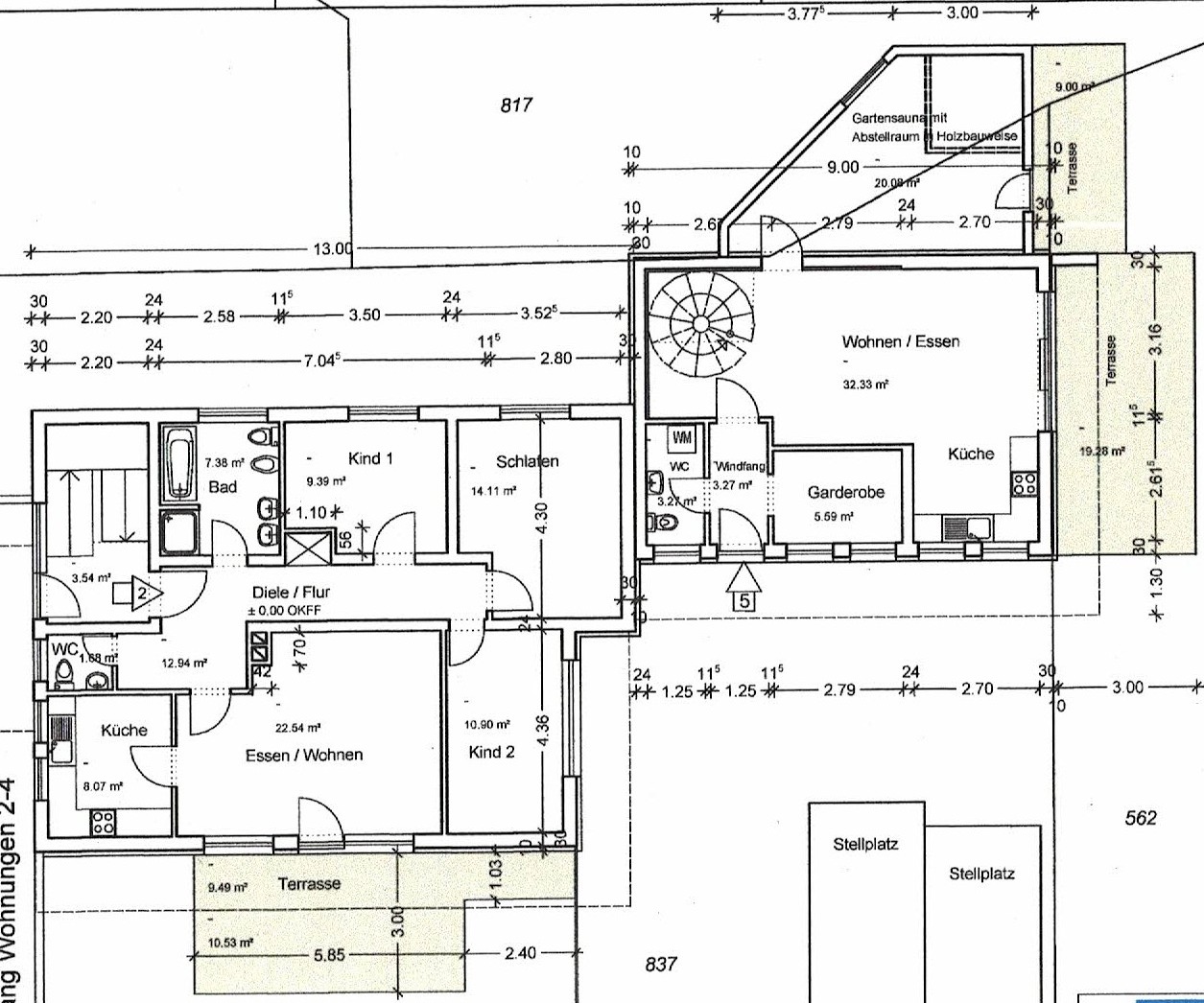
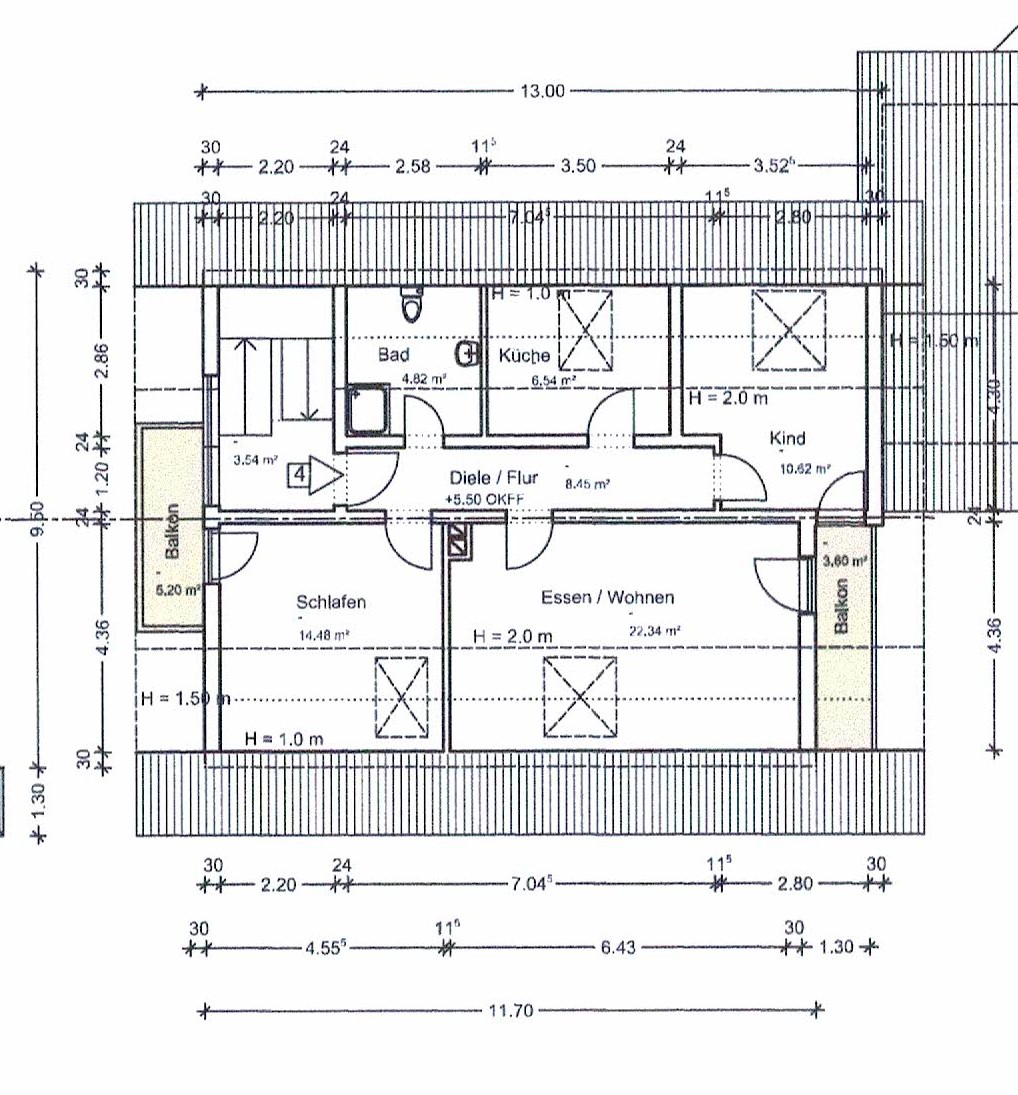
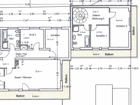
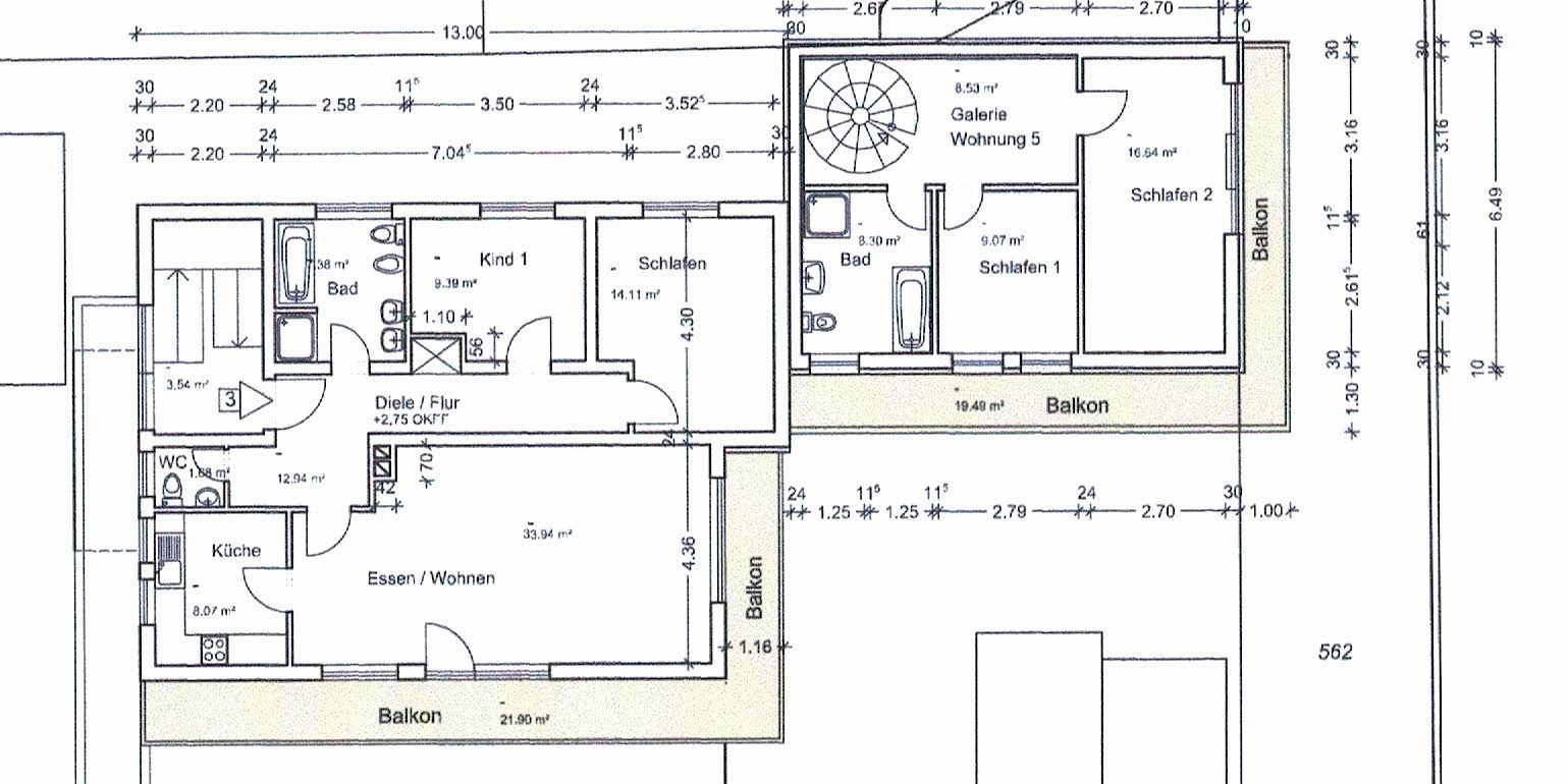
Das 1972 erbaute Mehrfamilienhaus in Massivbauweise befindet sich auf einem 709 m² großen Grundstück und verfügt über eine Wohnfläche von 379 m². Das Gebäude wurde im Jahr 2017-2018 zuletzt umfangreich modernisiert und präsentiert sich in einem sehr gepflegten Zustand. Hier wurden Wasser- Abwasser- Elektroleitungen erneuert, alle Bäder und WCs wurden neu gestaltet. Die Heizkörper und Heizungsrohren wurden teilweise neu installiert. Die Fenster, Balkontüren und Terassentüren, Böden, Putz in der Wohnungen und im Treppenhaus wurden erneuert. Die Fassade wurde teilweise gedämmt. Die Balkone, Dachrinnen und Fallrohren wurden erneuert. Im Jahr 2022 wurde eine neue Gartensauna errichtet. Der Schornstein wurde im Jahr 2024 erneuert. Das Gebäude befindet sich in einem gepflegten Zustand und wurde ständig modernisiert. Es besteht kein Reparaturstau. Die fünf Wohnungen sind hell und haben zeitgemäße Grundrisse.

Alle Wohnungen mit lichtdurchflutetem und hellen Räumen ermöglichen gepflegtes Wohnen auf hohem Niveau, besticht durch ihr hochwertiges Erscheinungsbild und bietet ein modernes und stylisches Wohngefühl. Die Wohnungen haben Terrassen, Balkone sowie Gartenanteil, auf denen man einen Weitblick in die grüne Umgebung genießen kann.

Der Keller bietet zusätzlichen Stauraum und Platz für Waschmaschinen und Trockner.
Die Immobilie ist vermietet, was eine attraktive Rendite für potenzielle Investoren bedeutet. Die jährliche Kaltmiete beträgt ca. 40.600 Euro.

Ausstattung

- 5 Familienhaus
- 5 Wohnungen, Wohnfläche ca. 379 qm
- 5 Bäder mit Fenster
- 3 Gäste-WCs mit Fenster
- Böden: Fliesen und Designboden
- teilunterkellert
- Zentralheizung
- Sauna
- Gartenteich
- 3 Terrassen
- 5 Balkone
- Zentralheizung
- Kamin

Lage

Das Mehrfamilienhaus befindet sich in einem grünen Wohngebiet im Stadtteil Wüsten in Bad Salzuflen. Die Umgebung zeichnet sich durch eine familienfreundliche Atmosphäre aus und bietet eine gute Infrastruktur mit Einkaufsmöglichkeiten, Schulen und Freizeiteinrichtungen in unmittelbarer Nähe. Die Nachbarschaft ist geprägt von gepflegten Gärten und Einzelhäusern, was für eine angenehme Wohnqualität sorgt.

Bad Salzuflen ist eine charmante Kurstadt in Nordrhein-Westfalen, die für ihre Solequellen und Kurangebote bekannt ist. Die Stadt bietet eine hohe Lebensqualität mit zahlreichen Parks, Kuranlagen und historischen Sehenswürdigkeiten. Einkaufsmöglichkeiten, Restaurants und kulturelle Einrichtungen sind innerhalb kurzer Zeit erreichbar. Die verkehrsgünstige Anbindung an die Autobahn und den öffentlichen Nahverkehr ermöglicht eine gute Erreichbarkeit der umliegenden Städte.
Sehr gute Infrastruktur. Hervorragende Anbindung nach Herford, Bielefeld, Hannover, Osnabrück, usw.
Sehr gute Anbindung an die Autobahnen.

Die Region um Bad Salzuflen zeichnet sich durch eine abwechslungsreiche Landschaft aus, die zu ausgedehnten Spaziergängen und Radtouren einlädt. Das nahegelegene Teutoburger Wald bietet zahlreiche Möglichkeiten für Outdoor-Aktivitäten und Erholung in der Natur. Die Nähe zu den Städten Bielefeld und Herford sowie die gute Anbindung an das Ruhrgebiet machen die Region zu einem attraktiven Wohnort für Familien und Pendler.
Lade Orte in der Umgebung

Sonstiges

Vereinbaren Sie einfach einen Besichtigungstermin - es lohnt sich!

Auch bei Finanzierungsfragen können wir Ihnen gern behilflich sein und ein individuelles, sehr günstiges Finanzierungsangebot unterbreiten - sprechen Sie uns gern darauf an!

Wir übernehmen keine Haftung für die Vollständigkeit, inhaltliche Richtigkeit und Aktualität dieser Angaben. Alle Angaben sind ohne Gewähr und basieren ausschließlich auf Informationen des jeweiligen Eigentümers.

Anbieterdaten

Lilija Malakan

Ansprech­partner

Lilija Malakan

Ihre Nachricht an Malakan Immobilien

Ihr Ansprechpartner: Lilija Malakan

Mit (*) gekennzeichnete Felder sind Pflichtangaben.