Sanierungsbedürftiges Mehrfamilienhaus mit attraktivem Entwicklungspotenzial in Essen-Altendorf

Eckdaten

 Zimmer
 Wohnfl.
 Grundst.
Kaufpreis
 Zimmer
 Wohnfl.
 Grundst.

Kaufpreis

Basisdaten

Objektnummer
Immopark ID
IP-306122
Objekt ID
FALC-AnRo-77131
Adresse
Ort
45143 Essen
Fakten und Zahlen
Haustyp
Mehr­familien­haus
Vermarktungsart
Kauf
Nutzungsart
wohnen
Baujahr
1910
Kerndaten
Wohnfläche
342,41 m2
Zimmer
16.0
Schlafzimmer
13.0
Badezimmer
6.0
Gesamtfläche
193 m2
Grundstücksfläche
193 m2
Gartenfläche
75,8 m2
Bauweise / Substanz
Etagenanzahl der Immobilie
3
Lage im Gebäude
Wohnungsnummer
6
Verfügbarkeit
Verfügbar ab
Sofort

Preisdaten

Preis
Kaufpreis
327.000 €

Merkmale

Zimmer und Bereiche
Voll unterkellert
Schlaf­zimmer
Abstell­raum
Ausstattung und Technik
Qualität der Ausstattung
standard
Sanitäre Einrichtung
Fenster
Wanne

Energie

Energieausweis
Typ
Bedarfs­ausweis
Energieausweis gültig bis
2034
Energieeffizienz­klasse
F
Ausstelldatum
14.06.2024
Gebäudeart lt. Energieausweis
Wohngebäude

Umgebung

Es wurden keine Daten angegeben.

Objektbeschreibung

Dieses Mehrfamilienhaus in Essen-Altendorf wurde im Jahr 1910 erbaut und umfasst insgesamt acht aufgeteilte Wohneinheiten, im Erdgeschoss und im Dachgeschoss wurden jeweils zwei Wohnungen zusammengeführt, sodass aktuell sechs Wohneinheiten vorhanden sind. Bei Bedarf kann die ursprüngliche Aufteilung jedoch problemlos wiederhergestellt werden, sodass die Immobilie erneut in acht separate Wohneinheiten gegliedert werden kann. Das Gebäude zeigt den charakteristischen Altbaucharme seines Baujahres und befindet sich in einem deutlich sanierungsbedürftigen Zustand. Die solide Grundsubstanz bietet jedoch ein attraktives Entwicklungspotenzial für Investoren, Projektentwickler oder handwerklich versierte Käufer, die eine Bestandsimmobilie mit Ausbau- und Wertsteigerungsmöglichkeiten suchen. Beim Betreten des Hauses fällt das großzügige Treppenhaus mit seiner klassischen Holzverkleidung auf, das den traditionellen Charakter des Objekts unterstreicht.

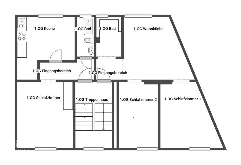
Im Erdgeschoss befindet sich eine großzügige Wohnung mit einer Wohnfläche von 81,50 m², verteilt auf mehrere Zimmer, darunter ein Wohnzimmer, eine Küche sowie ein Badezimmer mit Badewanne und WC. Vier weitere Räume können flexibel als Schlaf-, Kinder-, Arbeits- oder Hobbyzimmer genutzt werden. Das erste Obergeschoss verfügt über zwei Wohneinheiten. Die linke Wohnung umfasst 37,45 m² und ist mit einem Schlafzimmer, einer Wohnküche – deren Fenster 2012 erneuert wurden – sowie einem Badezimmer mit Badewanne ausgestattet. Die rechte Wohnung bietet 49,21 m² Wohnfläche; hier wurden zwischen 1995 und 2015 teilweise Sanierungsarbeiten durchgeführt, insbesondere an Fenstern und Elektrik, jedoch nicht vollständig abgeschlossen. Die Raumaufteilung ermöglicht die Nutzung von zwei Schlafzimmern.

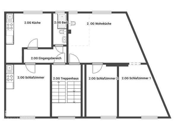
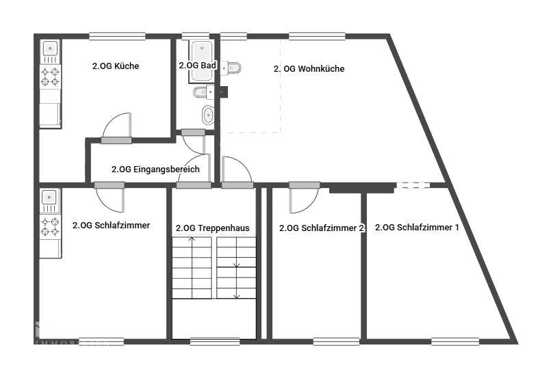
Auch im zweiten Obergeschoss befinden sich zwei ähnlich geschnittene Wohnungen. Die linke Einheit verfügt über eine Wohnfläche von 37,39 m² und ist derzeit teilweise vermietet, das bestehende Mietverhältnis kann auf Wunsch übernommen oder beendet werden. Die rechte Wohnung bietet 49,15 m² Wohnfläche und weist ebenfalls begonnene, jedoch nicht vollendete Sanierungsmaßnahmen aus dem Zeitraum 1995 bis 2015 auf. Das Dachgeschoss umfasst 87,71 m² Wohnfläche, aufgeteilt in drei potenzielle Schlafzimmer, ein Wohnzimmer, eine Küche, ein Gäste-WC sowie ein Badezimmer. Die Gauben wurden 1995 errichtet, ebenso stammen die Dachfenster aus diesem Zeitraum. Das Dach wurde im selben Jahr vollständig neu eingedeckt, die Dämmung erfolgte zwischen 1995 und 2015.

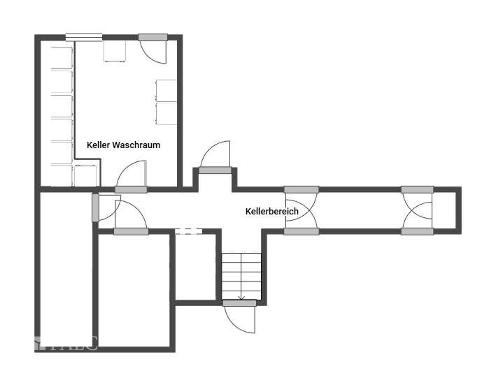
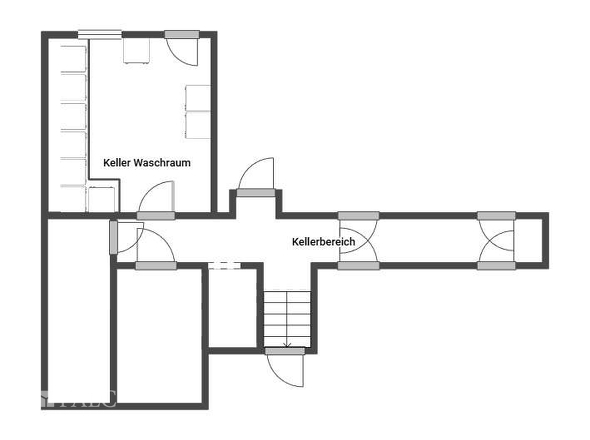
Im Kellergeschoss stehen eine Waschküche sowie acht Kellerräume zur Verfügung. Der Garten hinter dem Haus bietet zusätzliche Gestaltungsmöglichkeiten und kann im Zuge einer Sanierung individuell angepasst werden. Die Heizungsanlage des Gebäudes ist derzeit nicht angeschlossen, aktuell erfolgt die Wärmeversorgung über elektrische Nachtspeicheröfen. Insgesamt handelt es sich bei dieser Immobilie um ein deutlich renovierungsbedürftiges Objekt. Durch umfassende Modernisierungsmaßnahmen bietet es hervorragende Voraussetzungen für die Entwicklung zu einem attraktiven Mehrfamilienhaus mit solidem Mietpotenzial.

Ausstattung

Kompakt zusammengefasst:

- Ursprünglich 8 WE, aktuell 6 Wohneinheiten (EG & DG zusammengelegt)
- Wohnung EG: 81,50 m²
- Wohnung OG links: 37,45 m²
- Wohnung OG rechts: 49,21 m²
- Wohnung OG links: 37,39 m²
- Wohnung OG rechts: 49,15 m²
- Wohnung DG: 87,71 m²
- Dach neu eingedeckt 1995
- Gauben 1995 gebaut, Dachfenster aus 1995
- Teilweise Modernisierung (Fenster/Elektrik 1995–2015, einzelne Fenster 2012)
- Ein Raum im 2. OG vermietet (Übernahme möglich)
- Heizungsanlage derzeit nicht angeschlossen
- Objekt sanierungsbedürftig

Lage

Die Immobilie liegt in einer lebendigen und sehr gut angebundenen Lage in Essen. Die Umgebung bietet eine hervorragende Infrastruktur mit vielfältigen Einkaufsmöglichkeiten, Bildungseinrichtungen und Freizeitangeboten. Supermärkte wie Lidl und EDEKA sind in wenigen Gehminuten erreichbar. Für Familien stehen mehrere Kindergärten und Schulen – darunter die Hüttmannschule – in direkter Nähe zur Verfügung.

Die Anbindung an den öffentlichen Nahverkehr ist optimal: Die Haltestelle „Jahnplatz“ liegt nur etwa 140 Meter entfernt, die Straßenbahnstation „Helenenstraße“ erreicht man nach rund 660 Metern. Dadurch besteht eine schnelle Verbindung in die Essener Innenstadt, zum Hauptbahnhof und den umliegenden Stadtteilen. Auch für Autofahrer ist die Lage attraktiv – die A40 und A42 sind in wenigen Minuten erreichbar und ermöglichen eine hervorragende regionale und überregionale Anbindung

Für Investoren, die an eine Vermietung an Studierende denken, ist die Lage besonders interessant. Nur wenige Fahrminuten entfernt befindet sich der Campus Essen der Universität Duisburg-Essen (Universitätsstraße 2, ca. 2,5 km Entfernung). Die Hochschule gehört zu den größten Universitäten Deutschlands und zieht Studierende aus dem In- und Ausland an. Ergänzend sind auch die FOM Hochschule für Oekonomie & Management sowie die Hochschule für Technik, Wirtschaft und Gestaltung (HWTG Essen) gut erreichbar. Diese Nähe zu mehreren Hochschulen schafft ein kontinuierliches Nachfragepotenzial für studentischen Wohnraum.

In der Freizeit bietet die Umgebung zahlreiche Möglichkeiten zur Erholung und Unterhaltung. Der Niederfeldsee ist in wenigen Gehminuten erreichbar und lädt zu Spaziergängen, sportlichen Aktivitäten und Aufenthalten am Wasser ein. Darüber hinaus bietet der nahegelegene Jahnplatz zusätzliche Aufenthalts- und Bewegungsmöglichkeiten. Sportbegeisterte profitieren von mehreren Fitnessstudios, die ideale Trainingsbedingungen bieten.
Lade Orte in der Umgebung

Sonstiges

FALC Immobilien – mehr geht nicht!

Falls Sie eine Finanzierung benötigen, unterstützen wir Sie gerne und stellen auf Wunsch den Kontakt zu kompetenten Finanzierungspartnern her.

Ein Energieausweis liegt zur Besichtigung vor.

Die Objektbeschreibung beruht ganz oder teilweise auf Angaben des Eigentümers. Für die Richtigkeit und Vollständigkeit dieser Angaben übernehmen wir keine Gewähr.

Bitte beachten Sie, dass einzelne Bilder sowie Teile des Homestagings mithilfe moderner KI-Technologie erstellt bzw. visualisiert wurden. Diese dienen der besseren Vorstellungskraft und ersetzen nicht die reale Begehung des Objekts.

Sie möchten Ihre Immobilie ebenfalls professionell vermarkten? Sprechen Sie uns an! Wir stehen Ihnen von Montag bis Sonntag zwischen 6:00 und 22:00 Uhr persönlich zur Verfügung. Über 40.000 aktive Interessenten warten bereits auf Ihr Angebot.

FALC Immobilien Dorsten und Schermbeck

Ann-Kathrin Roth
Mobil: 0176 21195575
Festnetz: 02362 / 96669 35
E-Mail: ann-kathrin.roth@falcimmo.de

Anbieterdaten

Ann-Kathrin Roth

Ansprech­partner

Ann-Kathrin Roth

Ihre Nachricht an FALC Immobilien Dorsten

Ihr Ansprechpartner: Ann-Kathrin Roth

Mit (*) gekennzeichnete Felder sind Pflichtangaben.