Schöne und gut geschnittene 2 1/2 Zimmer Wohnung in Hausen

Eckdaten

 Zimmer
 Wohnfl.
 Grundst.
Kaltmiete
 Zimmer
 Wohnfl.
Grundst.

Kaltmiete

Basisdaten

Objektnummer
Immopark ID
IP-305269
Objekt ID
1067-717-1-SG
Adresse
Ort
79688 Hausen
Fakten und Zahlen
Wohnungstyp
Etage
Vermarktungsart
Miete / Pacht
Nutzungsart
wohnen
Verkaufsstatus
offen
Baujahr
1954
Kerndaten
Wohnfläche
64,02 m2
Zimmer
2.5
Schlafzimmer
1.0
Badezimmer
1.0
Bauweise / Substanz
Objektzustand
gepflegt

Preisdaten

Preis
Kaltmiete
850 €
Nebenkosten
170 €
Warmmiete
1.020 €
Gesamtbelastungs-Brutto
1.020 €
Weitere Kosten
Kaution
2.550 €
Betriebskosten
Betriebskostennetto
170 €

Merkmale

Zimmer und Bereiche
Anzahl (Balkone)
1.0
Schlaf­zimmer
Sanitäre Einrichtung
Fenster
Wanne

Energie

Energieausweis
Typ
Verbrauchs­ausweis
EnEV
ab 01.05.2014 (gemäß EnEV 2014)
Energieausweis gültig bis
2033-11-19
Energie­verbrauchs­kennwert gemessen in kWh/(m²a)
262.00

A+ABCDEFGH

wesentlicher Energieträger
Gas
Energieeffizienz­klasse
H
Baujahr lt. Energieausweis
1990
Gebäudeart lt. Energieausweis
Wohngebäude
Heizung
Etagen­heizung
Befeuerungsart
Gas

Umgebung

Es wurden keine Daten angegeben.

Objektbeschreibung

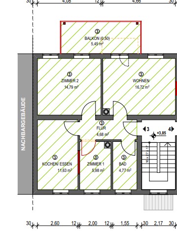
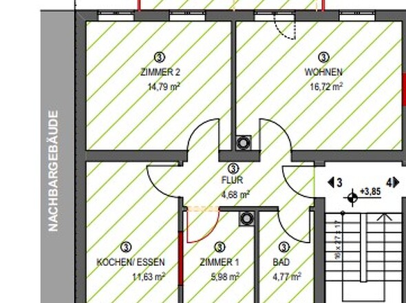
Die im 1. Obergeschoss gelegene 2,5-Zimmer-Wohnung zeichnet sich durch eine praktische Größe aus und eignet sich hervorragend für Paare oder kleine Familien. Auch Singles, die etwas mehr Platz benötigen, finden hier ein passendes Zuhause. Darüber hinaus kann die Wohnung auch von zwei Personen als Wohngemeinschaft genutzt werden.

Die durchdachte Raumaufteilung umfasst ein Wohnzimmer mit Balkon, ein Schlafzimmer sowie ein Esszimmer, das direkt an die Küche grenzt und vielfältige Gestaltungsmöglichkeiten bietet. Das Badezimmer ist mit Tageslicht und einer Badewanne ausgestattet.

Ausstattung

Wohnzimmer mit Balkon
Schlafzimmer
Badezimmer mit Badewanne und Fenster
Küche
Esszimmer

Lage

Hausen im Wiesental liegt in der Mitte des Tals der Wiese, eines rechten Nebenflusses des Rheins im Süden des Naturparks Südschwarzwald. Die Gemeinde Hausen ist etwa 15 Kilometer von der Schweizer Grenze entfernt. Nachbargemeinden von Hausen sind die Stadt Zell im Wiesental sowie Schopfheim, durch die direkte Anbindung an die B317 und eine eigene
Bahnstation bietet Hausen eine gute Infrastruktur auch in Richtung Lörrach und
Basel.

Entfernungen mit dem Auto:

Schopfheim 10 Minuten
Lörrach 25 Minuten
Basel 40 Minuten

Bushaltestelle: 300m
Bahnhof Hausen: 1,2 km
Edeka Supermarkt: 750m
Lade Orte in der Umgebung

Sonstiges

Verpassen Sie keine Immobilie mehr!
Unser komplettes Immobilienangebot finden Sie immer zuerst auf www.remax.de
Gerne helfen wir Ihnen auch beim Verkauf oder der Vermietung Ihrer Immobilie.

Anbieterdaten

Samuel Grauer

Ansprech­partner

Samuel Grauer

Ihre Nachricht an RE/MAX Immobilienmakler Lörrach

Ihr Ansprechpartner: Samuel Grauer

Mit (*) gekennzeichnete Felder sind Pflichtangaben.