Schöne Wohnung zentral in Rheinfelden, Balkon, TG-Stellplatz, Keller!
backbone_584970-A_037_WEBbackbone_584970-A_022_WEBbackbone_584970-A_016_WEBbackbone_584970-A_004_WEBbackbone_584970-A_001_WEBbackbone_584970-A_007_WEBbackbone_584970-A_013_WEBbackbone_584970-A_025_WEBbackbone_584970-A_034_WEBAnsichtenGrundriss WohnungOGSchnittUGGutschein für Bewertung Ihrer Immobiliebackbone_584970-A_040_WEB
Eckdaten
Zimmer
Wohnfl.
Grundst.
Kaufpreis
Zimmer
Wohnfl.
Grundst.
279000.0€ Kaufpreis
Basisdaten
Objektnummer
Immopark ID
IP-305264
Objekt ID
1067-715-1-AM
Adresse
79618 Rheinfelden
Ort
79618 Rheinfelden
Fakten und Zahlen
Wohnungstyp
Etage
Vermarktungsart
Kauf
Nutzungsart
wohnen
Verkaufsstatus
offen
Baujahr
1998
Kerndaten
Wohnfläche
78 m2
Zimmer
3.0
Schlafzimmer
2.0
Badezimmer
1.0
separate WC
1.0
Gesamtfläche
84 m2
Nutzfläche
6 m2
Anzahl Stellplätze (gesamt)
1.0
Bauweise / Substanz
Objektzustand
gepflegt
Etagenanzahl der Immobilie
4
Preisdaten
Preis
Kaufpreis
279.000 €
Weitere Kosten
Hausgeld
240 €
Courtage
Provisionspflichtig /provisionsfrei
provisionspflichtig
Käufercourtage
3,57 % inkl. gesetzl. MwSt. (19%)
Innen- / Außencourtage
inkl. MwSt.
Merkmale
Zimmer und Bereiche
Typ
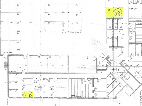
Voll unterkellert
Anzahl (Balkone)
1.0
Zimmer und Räume
Schlafzimmer
Zimmer und Räume
Wasch- / Trockenraum
Zimmer und Räume
Fahrradraum
Sanitäre Einrichtung
Sanitäre Einrichtung
Wanne
Stellplätze
Anzahl Stellplätze (gesamt)
1.0
Stellplatzdetails
Tiefgarage
Anzahl
1.0
Energie
Energieausweis
Typ
Verbrauchsausweis
EnEV
ab 01.05.2014 (gemäß EnEV 2014)
Energieausweis gültig bis
2030-02-02
Energieverbrauchskennwert gemessen in kWh/(m²a)
133.00
A+ABCDEFGH
Energieeffizienzklasse
D
Baujahr lt. Energieausweis
1998
Gebäudeart lt. Energieausweis
Wohngebäude
Heizung
Heizungsart
Zentralheizung
Umgebung
Es wurden keine Daten angegeben.
Objektbeschreibung
Objektbeschreibung
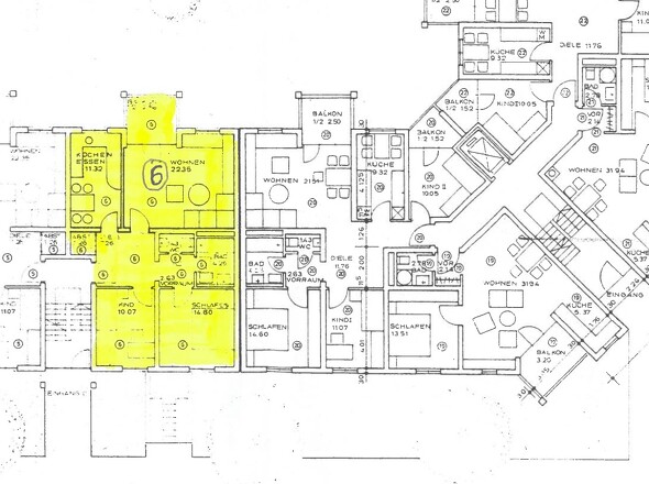
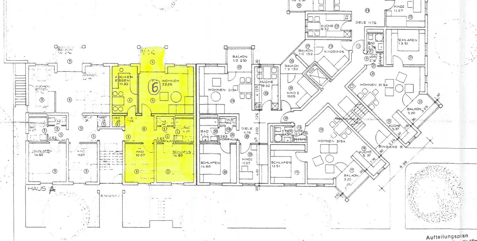
Diese gepflegte 3-Zimmer-Wohnung befindet sich im 2. Obergeschoss eines modernen Mehrfamilienhauses aus dem Jahr 1998 mit über 15 Wohneinheiten. Die Lage in einem ruhigen Wohngebiet von Rheinfelden bietet eine angenehme Mischung aus städtischer Infrastruktur und naturnahem Wohnen.
Mit ca. 78 m² Wohnfläche überzeugt das Objekt mit einer gut durchdachten Raumaufteilung, hellen Wohnbereichen und einer freundlichen Atmosphäre – ideal für Paare, Singles oder kleine Familien.
Ausstattung
Einbauküche (EBK) im Kaufpreis enthalten
Heller Wohn- und Essbereich
Zwei gut geschnittene Schlafzimmer
Badezimmer mit Badewanne
Balkon mit Blick ins Wohnumfeld
Üblicher bzw. durchschnittlicher Ausbaustandard
Gepflegte Gesamtanlage
Kellerraum und gemeinschaftliche Abstellflächen
Wohn- und Gebäudedaten
Wohnfläche: ca. 78 m²
Zimmer: 3
Etage: 2. Obergeschoss
Baujahr: 1998
Zustand: gut gepflegt
Gebäudetyp: Mehrfamilienhaus mit mehr als 15 Wohneinheiten
Lage
Die Karl-Fürstenberg-Straße gehört zu den bevorzugten Wohnlagen von Rheinfelden. Schulen, Einkaufsmöglichkeiten, Ärzte und Freizeitangebote befinden sich in direkter Umgebung. Die Schweizer Grenze ist in wenigen Minuten erreichbar – ideal für Grenzgänger oder alle, die die Nähe zur Schweiz schätzen.
Besonderheiten
Attraktive Raumaufteilung
Gute, solide Bausubstanz
Ruhige Wohnlage
Ideale Anbindung an ÖPNV und Autobahn
Nähe zur Schweiz
Kaufpreis & Provision
Kaufpreis: 279.000 €
Käuferprovision: 3,57 % inkl. MwSt.
Eine gepflegte, solide und gut gelegene 3-Zimmer-Wohnung, die sowohl zur Eigennutzung als auch als Kapitalanlage interessant ist. Die Kombination aus Lage, Ausstattung und Preis macht dieses Angebot besonders attraktiv.
Gerne sende ich Ihnen weitere Unterlagen oder vereinbare einen Besichtigungstermin.
Die Wohnung befindet sich in einer sehr gut etablierten Wohngegend von Rheinfelden. In unmittelbarer Nähe stehen alle wichtigen Einrichtungen des täglichen Bedarfs zur Verfügung:
Einkaufsmöglichkeiten: Supermärkte, Bäckereien, Apotheken und Fachgeschäfte sind bequem zu Fuß oder in wenigen Minuten mit dem Fahrrad erreichbar.
Bildung: Kindergärten, Grundschulen und weiterführende Schulen befinden sich im direkten Umfeld.
Medizinische Versorgung: Ärzte, Zahnärzte sowie das Rheinfelder Gesundheitszentrum sorgen für eine hervorragende Versorgung.
Freizeit & Erholung: Sportanlagen, Grünflächen, Spazierwege entlang des Rheins und diverse Vereine bieten vielseitige Freizeitmöglichkeiten.
Insgesamt überzeugt die Lage durch eine ideale Mischung aus Ruhe, Wohnqualität und urbaner Nähe.
Verkehrsanbindung
Rheinfelden (Baden) ist perfekt angebunden – sowohl regional als auch international:
ÖPNV: Buslinien verbinden die Karl-Fürstenberg-Straße regelmäßig mit dem Stadtzentrum, dem Bahnhof Rheinfelden sowie umliegenden Gemeinden.
Bahn: Der Bahnhof Rheinfelden bietet direkte Verbindungen Richtung Basel, Lörrach und Freiburg.
Auto: Über die A98 und die B34 erreicht man schnell Basel, Lörrach, Bad Säckingen und Waldshut.
Grenznähe: Die Schweizer Grenze ist nur wenige Minuten entfernt – ideal für Grenzgänger. Der Übergang nach Rheinfelden (CH) liegt sehr nahe.
Flughäfen: Der EuroAirport Basel-Mulhouse-Freiburg ist in rund 30–35 Minuten erreichbar.
Die Lage ist damit besonders attraktiv für Berufspendler in die Schweiz sowie für alle, die eine gute Verbindung an regionale und internationale Verkehrswege schätzen.
Wetter & Klima
Rheinfelden liegt im sonnenverwöhnten Markgräflerland, einer der mildesten Regionen Deutschlands.
Klima: Oberrheinisches Übergangsklima mit warmen Sommern und vergleichsweise milden Wintern.
Sonnentage: Die Region gehört zu den sonnigsten Gegenden im Südwesten – ideal für Outdoor-Aktivitäten.
Niederschlag: Moderate Niederschläge über das Jahr verteilt, keine extremen Wetterbedingungen.
Besonderheit: Durch die Nähe zum Rhein herrscht oft ein angenehmes Mikroklima, das für milde Temperaturen sorgt.
Für Bewohner bedeutet dies ein äußerst angenehmes, fast mediterran wirkendes Wohnklima.