Schönes Einfamilienhaus in begehrter Lage von Solingen mit Ausbaureserve

Eckdaten

 Zimmer
 Wohnfl.
 Grundst.
Kaufpreis
 Zimmer
 Wohnfl.
 Grundst.

Kaufpreis

Basisdaten

Objektnummer
Immopark ID
IP-295029
Objekt ID
4962
Adresse
Ort
42699 Solingen
Fakten und Zahlen
Haustyp
Einfamilien­haus
Vermarktungsart
Kauf
Nutzungsart
wohnen
Verkaufsstatus
offen
Baujahr
1982
Kerndaten
Wohnfläche
100 m2
Zimmer
3.0
Schlafzimmer
2.0
Badezimmer
1.0
separate WC
1.0
Nutzfläche
30 m2
Grundstücksfläche
1.061 m2
Anzahl Stellplätze (gesamt)
4.0
Bauweise / Substanz
Objektzustand
gepflegt
Wohneinheiten
1.0
Verfügbarkeit
Verfügbar ab
nach Absprache

Preisdaten

Preis
Kaufpreis
539.000 €
Courtage
Käufercourtage
2,98 % inkl. gesetzl. MwSt. vom Kaufpreis, fällig nach notarieller Beurkundung
inkl. MwSt.

Merkmale

Zimmer und Bereiche
Teilweise unterkellert
Gesamtfläche
40 m2
Anzahl (Terrassen)
1.0
Schlaf­zimmer
Wasch- / Trocken­raum
Ausstattung und Technik
Qualität der Ausstattung
standard
Sanitäre Einrichtung
Gäste WC
Stellplätze
Anzahl Stellplätze (gesamt)
4.0
Freiplatz
Anzahl
3.0
Garage
Anzahl
1.0

Energie

Heizung
Zentral­heizung
Befeuerungsart
Gas

Umgebung

Es wurden keine Daten angegeben.

Objektbeschreibung

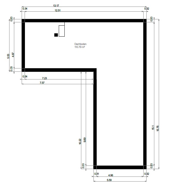
In einer der begehrtesten Lagen von Solingen-Aufderhöhe erwartet Sie dieses charmante Einfamilienhaus, das im Jahr 1982 in massiver Bauweise inkl. Satteldach erweitert wurde. Alle Räume befinden sich auf einer Ebene, und die L-förmige Architektur sorgt für eine besonders durchdachte und funktionale Raumaufteilung.

Mit einer Wohnfläche von ca. 100 m² bietet das Haus ausreichend Platz für eine Familie mit Kind. Sollte Ihnen die Wohnfläche zu gering sein, können Sie das Haus im Erdgeschoss erweitern oder die Ausbaureserve im Dachgeschoss umsetzen. Durch den Einbau von Dachgauben und zusätzlichen Dachflächenfenstern lassen sich hier weitere Wohnräume schaffen, sodass auch eine 4- bis 5-köpfige Familie ausreichend Platz findet. Das Potenzial für zusätzlichen Wohnraum im Dachgeschoss liegt bei ca. 50–70 m² und bietet eine hervorragende Möglichkeit, den Wert der Immobilie zu steigern. Welche Erweiterungsmöglichkeiten im Erdgeschoss möglich sind, müsste mit dem Bauamt abgestimmt werden. Aber auch hier sind sicher 40-60 m², wenn nicht sogar mehr, möglich.

Das großzügige Grundstück von ca. 1.061 m² bietet zudem eine herrliche Terrasse von ca. 40 m² und genügend Freiraum für Gartenliebhaber oder Familien mit Kindern. Drei Außenstellplätze sowie eine Garage sorgen für komfortables Parken.

Haben wir Ihr Interesse geweckt? Kontaktieren Sie uns gerne für weitere Informationen oder eine Besichtigung!

Ausstattung

Die Immobilie befindet sich in einem gepflegten Zustand, benötigt jedoch eine Modernisierung, um den heutigen Wohnansprüchen gerecht zu werden. Ein großer Vorteil: Die Heizungsanlage wurde erst 2023 durch eine moderne Gasbrennwertheizung ersetzt.

Weitere Ausstattungsmerkmale im Überblick:

• Wohnfläche: ca. 100 m² (Ausbaureserve am Haus oder im Dachboden)

• Nutzfläche: ca. 30 m²

• Grundstück: ca. 1.061 m²

• Zimmer: 3 (darunter 2 Schlafzimmer)

• Badezimmer: 1 + separates Gäste-WC

• Fenster: Holzrahmen mit Isolierverglasung

• Terrasse: ca. 40 m²

• Stellplätze: 3 Außenstellplätze + 1 Garage

Dieses Einfamilienhaus bietet großes Potenzial für individuelle Gestaltungsmöglichkeiten und ist die perfekte Gelegenheit für alle, die ein Zuhause in einer ruhigen und dennoch zentralen Lage suchen.

Lage

Das Haus befindet sich in einer ruhigen und sehr begehrten Wohnlage von Solingen-Aufderhöhe. Einkaufsmöglichkeiten, Ärzte, Apotheken und öffentliche Verkehrsmittel sind bequem zu Fuß erreichbar. Familien profitieren von der Nähe zu Kindergärten (ca. 500 m) sowie Grund- und weiterführenden Schulen.

Dank der guten Anbindung an die Autobahn A3 und den Ohligser Hauptbahnhof eignet sich die Immobilie ideal für Berufspendler, die in Köln oder Düsseldorf arbeiten. Zudem bietet die Umgebung zahlreiche Möglichkeiten zur Freizeitgestaltung – sei es durch Spaziergänge in der Natur, sportliche Aktivitäten oder Ausflüge ins Bergische Land.
Lade Orte in der Umgebung

Anbieterdaten

Hans Buchs

Ansprech­partner

Hans Buchs

Ihre Nachricht an m² Immobilien GmbH

Ihr Ansprechpartner: Hans Buchs

Mit (*) gekennzeichnete Felder sind Pflichtangaben.