Sehr gepflegte, moderne Doppelhaushälfte mit traumhaftem Ausblick!
LichtdurchflutetOffene RäumeTolle RaumaufteilungGemütliche RäumeAusblick BalkonGroßzügiges WohnenGroße TerrasseOffene KücheKüche mit EssbereichTerrasse bei der KücheFreisitz zum EntspannenModernes Gäste BadSchlafzimmer zum WohlfühlenHelles WohnenKuscheliges SchlafenModernes BadezimmerGroße DuscheWohnbadezimmerWeisenbach Am Wingert 7_0793BildAm WaldesrandToller AusblickTolle LageErdgeschoss1,ObergeschossDachgeschossFreundlicher Empfang
Eckdaten
Zimmer
Wohnfl.
Grundst.
Kaufpreis
Zimmer
Wohnfl.
Grundst.
295000.0€ Kaufpreis
Basisdaten
Objektnummer
Immopark ID
IP-307106
Objekt ID
LDW1.SM.10634
Adresse
76599 Weisenbach
Ort
76599 Weisenbach
Fakten und Zahlen
Haustyp
Doppelhaushälfte
Vermarktungsart
Kauf
Nutzungsart
wohnen
Verkaufsstatus
offen
Baujahr
1991
Kerndaten
Wohnfläche
103 m2
Zimmer
5.0
Wohn- und Schlafzimmer
3.0
Schlafzimmer
3.0
Badezimmer
1.0
separate WC
1.0
Gesamtfläche
121 m2
Nutzfläche
18 m2
Grundstücksfläche
320 m2
Anzahl Stellplätze (gesamt)
1.0
Bauweise / Substanz
Objektzustand
modernisiert
Etagenanzahl der Immobilie
2
Wohneinheiten
1.0
Preisdaten
Preis
Kaufpreis
295.000 €
Courtage
Käufercourtage
3,57 % inkl. MwSt.
Merkmale
Zimmer und Bereiche
Dachboden Merkmale
Dachboden
Zimmer und Räume
Schlafzimmer
Zimmer und Räume
Wasch- / Trockenraum
Ausstattung und Technik
Küche
Offene Küche
Sanitäre Einrichtung
Sanitäre Einrichtung
Gäste WC
Stellplätze
Anzahl Stellplätze (gesamt)
1.0
Stellplatzdetails
Freiplatz
Anzahl
1.0
Energie
Energieausweis
Typ
Verbrauchsausweis
EnEV
ab 01.05.2014 (gemäß EnEV 2014)
Energieausweis gültig bis
2035-12-18
Energieverbrauchskennwert gemessen in kWh/(m²a)
25.63
A+ABCDEFGH
wesentlicher Energieträger
Öl
Energieeffizienzklasse
A
Baujahr lt. Energieausweis
1991
Gebäudeart lt. Energieausweis
Wohngebäude
Befeuerungsart
Befeuerungsart
Öl
Umgebung
Es wurden keine Daten angegeben.
Objektbeschreibung
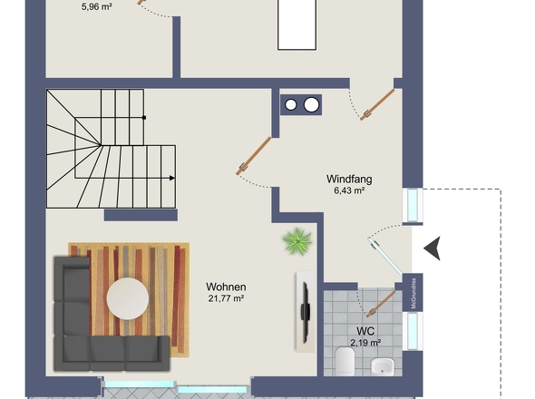
Diese modernisierte Doppelhaushälfte, bietet ein außergewöhnlich harmonisches Wohnambiente inmitten der beeindruckenden Natur des Schwarzwalds. Licht, Weite und ein fantastischer Ausblick, prägen dieses besondere Zuhause – ideal für alle, die Ruhe, Komfort und naturnahes Wohnen schätzen. Schon beim Betreten des Hauses empfängt Sie ein einladender Flur, von dem aus Sie in den sehr schönen Wohnbereich gelangen. Dieser ist in sich geschlossen, mit schönen Glaselementen und großen Fensterfronten, viel Tageslicht und dem direkten Zugang zur großzügigen Terrasse, von welcher Sie einen fantastischen Ausblick haben.
-Von hier genießen Sie einen unvergleichlichen Panoramablick über die Schwarzwaldlandschaft – perfekt für entspannte Stunden im Freien. Auf dieser Wohnebene finden Sie außerdem ein Gäste-WC sowie einen praktischen Keller- bzw. Waschraum. Im ersten Obergeschoss erwartet Sie die attraktive Wohnküche mit angrenzendem Essbereich. Von hier aus gelangen Sie bequem in den Garten sowie auf die weitere Terrasse – ein idealer Ort für gemeinsame Mahlzeiten, gemütliche Abende oder das Sonntagsfrühstück im Grünen. Zusätzlich steht Ihnen ein lichtdurchflutetes Wohnzimmer zur Verfügung, das ebenfalls einen Ausgang zum Balkon bietet. Auch hier erleben Sie den eindrucksvollen Blick über das Tal.
Das zweite Obergeschoss beherbergt drei gut geschnittene Schlafzimmer. Eines davon präsentiert sich im Maisonette-Stil mit zusätzlicher Schlafebene und bietet dadurch ein besonders charmantes Raumgefühl. Das zweite Schlafzimmer hell und gemütlich, zum Wohlfühlen. Das Badezimmer wurde vollständig renoviert und zeigt sich in neuem, stilvollem Glanz.
Ausgestattet mit Dusche, französischem Balkon, Waschbecken, WC , verbindet es Komfort mit zeitgemäßer Gestaltung. Ergänzt wird das Raumangebot durch einen kleinen Speicher im Dachbereich – ideal als Stauraum.
Der liebevoll angelegte Garten lädt zum Verweilen ein und bietet einen privaten Rückzugsort inmitten der Natur. Diese Doppelhaushälfte wurde umfassend renoviert und befindet sich in einem sehr gepflegten Zustand. Hier können Sie sofort einziehen, sich wohlfühlen und die beeindruckende Schwarzwaldkulisse jeden Tag aufs Neue genießen.
Ausstattung
- Schöne Einbauküche - Große Terrasse - lichtdurchflutete Räume - Garten - Balkon - Stellplatz - Freisitz, mit Gartenhaus - Brenner Ölheizung von 2024 - Parkett, Fliesen,Textil Bodenbelag - Holzfenster- Isolierverglast - modernes Badezimmer mit franz. Balkon - Ofenanschluss möglich
Lage
Weisenbach ist eine charmante Gemeinde im Murgtal und gehört zum Landkreis Rastatt in Baden-Württemberg. Eingebettet zwischen dichten Wäldern und den sanften Hügeln, des nördlichen Schwarzwalds bietet der Ort eine idyllische Kombination aus naturnahem Wohnen und guter infrastruktureller Anbindung. Der malerische Ortskern mit gepflegten Fachwerkhäusern, kleinen Geschäften und familiär geführten Gasthäusern, vermittelt eine angenehme, ruhige Wohnatmosphäre. Zahlreiche Wander- und Radwege beginnen direkt vor der Haustür und führen durch das romantische Murgtal, sowie in die umliegenden Höhenlagen des Schwarzwaldes – ideal für Naturliebhaber und Freizeitaktive. Weisenbach verfügt über eine gute Verkehrsanbindung: Die S-Bahn-Strecke der Murgtalbahn verbindet den Ort regelmäßig mit Gaggenau, Rastatt und Karlsruhe. Die Bundesstraße B462 sorgt zudem für eine schnelle Erreichbarkeit der umliegenden Städte und Arbeitszentren. Familien profitieren von einer soliden Infrastruktur mit Kindergarten, Grundschule, sowie verschiedenen Freizeit- und Sportangeboten. Insgesamt bietet Weisenbach eine hohe Lebensqualität zwischen Natur, Ruhe und dennoch guter Anbindung – ein attraktiver Wohnstandort für alle, die ländliche Idylle schätzen, ohne auf komfortable Erreichbarkeit verzichten zu wollen.
Lade Orte in der Umgebung
Sonstiges
Da wir uns bei allen Angaben auf die Informationen Dritter stützen müssen, können wir keine Gewähr für deren Richtigkeit und Vollständigkeit übernehmen.
Bitte haben Sie Verständnis dafür, dass wir nur Anfragen mit vollständiger Adressangabe und erreichbarer Handynummer bearbeiten können.
Nachdem Ihre Anfrage per E-Mail bei uns eingegangen ist, werden wir uns mit Ihnen zur Abstimmung eines Besichtigungstermins in Verbindung setzen. Bitte nennen Sie deshalb in Ihrer E-Mail eine Tel.-Nr., unter der wir Sie sicher erreichen können.
Widerrufsbelehrung für Verbraucher: Sie haben das Recht, binnen vierzehn Tagen ohne Angabe von Gründen diesen Vertrag zu widerrufen. Die Widerrufsfrist beträgt vierzehn Tage ab dem Tag des Vertragsabschlusses.
Um Ihr Widerrufsrecht auszuüben, müssen Sie uns (Königskinder Immobilien GmbH, Königstraße 62, 70173 Stuttgart, Tel: 0711 4005440, Fax: 0711 40054433, info@koenigskinder.de) mittels einer eindeutigen Erklärung (z. B. ein mit der Post versandter Brief, Telefax oder E-Mail) über Ihren Entschluss, diesen Vertrag zu widerrufen, informieren.
Zur Wahrung der Widerrufsfrist reicht es aus, dass Sie die Mitteilung über die Ausübung des Widerrufsrechts vor Ablauf der Widerrufsfrist absenden.
Folgen des Widerrufs: Wenn Sie diesen Vertrag widerrufen, haben wir Ihnen alle Zahlungen, die wir von Ihnen erhalten haben, unverzüglich und spätestens binnen vierzehn Tagen ab dem Tag zurückzuzahlen, an dem die Mitteilung über Ihren Widerruf dieses Vertrags bei uns eingegangen ist. Für diese Rückzahlung verwenden wir dasselbe Zahlungsmittel, das Sie bei der ursprünglichen Transaktion eingesetzt haben, es sei denn, mit Ihnen wurde ausdrücklich etwas anderes vereinbart; in keinem Fall werden Ihnen wegen dieser Rückzahlung Entgelte berechnet.
Haben Sie verlangt, dass die Dienstleistungen während der Widerrufsfrist beginnen soll, so haben Sie uns einen angemessenen Betrag zu zahlen, der dem Anteil der bis zu dem Zeitpunkt, zu dem Sie uns von der Ausübung des Widerrufsrechts hinsichtlich dieses Vertrags unterrichten, bereits erbrachten Dienstleistungen im Vergleich zum Gesamtumfang der im Vertrag vorgesehenen Dienstleistungen entspricht.