Sofort bezugsfrei und familienfreundlich – bereit für Ihr neues Zuhause im Grünen?

Eckdaten

 Zimmer
 Wohnfl.
 Grundst.
Kaufpreis
 Zimmer
 Wohnfl.
 Grundst.

Kaufpreis

Basisdaten

Objektnummer
Immopark ID
IP-306670
Objekt ID
FALC-KrMa-78330
Adresse
Ort
86830 Schwabmünchen
Fakten und Zahlen
Vermarktungsart
Kauf
Nutzungsart
wohnen
Baujahr
1967
Kerndaten
Wohnfläche
58,8 m2
Zimmer
3.0
Schlafzimmer
2.0
Badezimmer
1.0
Anzahl Stellplätze (gesamt)
1.0
Bauweise / Substanz
Objektzustand
gepflegt
Etagenanzahl der Immobilie
3
Lage im Gebäude
Etage
2
Wohnungsnummer
5
Verfügbarkeit
Verfügbar ab
sofort

Preisdaten

Preis
Kaufpreis
249.000 €
Heizkosten enthalten
Weitere Kosten
Hausgeld
377 €
Courtage
provisionspflichtig
Käufercourtage
3,57 % inkl. MwSt vom Kaufpreis durch Abwälzung
Courtage Hinweis
Weitere Informationen unter "Sonstige Angaben" in Exposee

Merkmale

Zimmer und Bereiche
Voll unterkellert
Gesamtfläche
3,9 m2
Anzahl (Balkone)
1.0
Schlaf­zimmer
Ausstattung und Technik
Qualität der Ausstattung
standard
Einbau­küche
Sanitäre Einrichtung
Wanne
Stellplätze
Anzahl Stellplätze (gesamt)
1.0
Tiefgarage
Anzahl
1.0
Kaufpreis
10.000 €

Energie

Energieausweis
Gebäudeart lt. Energieausweis
Wohngebäude
Heizung
Zentral­heizung

Umgebung

Es wurden keine Daten angegeben.

Objektbeschreibung

Diese charmante 3-Zimmer-Wohnung mit einer Wohnfläche von ca. 58 m² befindet sich in einem gepflegten Mehrfamilienhaus aus dem Jahr 1967 in Schwabmünchen. Die Wohnung besticht durch eine durchdachte Raumaufteilung und bietet ausreichend Platz für Paare oder kleine Familien. Zur Wohnung gehört außerdem ein praktischer Tiefgaragenstellplatz, der Ihnen zusätzlichen Komfort im Alltag bietet.

Die Lage der Wohnung ist ideal für all jene, die eine gute Anbindung an den öffentlichen Nahverkehr schätzen. Die nächste Bushaltestelle ist nur etwa 300 Meter entfernt, und der Bahnhof Schwabmünchen ist in ca. 2 km erreichbar. Für Pendler bietet die Autobahnauffahrt A96 eine gute Erreichbarkeit in ca. 16 km Entfernung.

In der Umgebung finden Sie eine Vielzahl an Einkaufsmöglichkeiten, darunter ein NORMA-Supermarkt in ca. 200 Metern Entfernung. Auch für Freizeitaktivitäten ist gesorgt: Ein Fitnessstudio ist nur ca. 500 Meter entfernt, und der Luitpoldpark lädt in ca. 800 Metern Entfernung zu Spaziergängen ein.

Die medizinische Versorgung ist durch nahegelegene Arztpraxen und die Wertachklinik Schwabmünchen in ca. 1,7 km Entfernung gewährleistet. Für Familien mit Kindern gibt es in der Umgebung zahlreiche Schulen und Kindergärten.

Falls Sie Wert auf eine ruhige Lage, eine durchdachte Raumaufteilung und ein gehobenes Wohnumfeld legen, könnte dieses Objekt genau das Richtige für Sie sein. Wir bieten Ihnen eine kostenlose 24/7-Hotline unter der Rufnummer 0800-6460646, über die Sie uns jederzeit erreichen können.

Wenn Sie Interesse an der Immobilie haben, fordern Sie gerne das ausführliche Exposé an, das Ihnen in der Regel kurzfristig und automatisch zugesandt wird. Sollten Sie eine Besichtigung wünschen, antworten Sie am besten direkt per E-Mail auf das Exposé. Wir setzen uns umgehend mit Ihnen in Verbindung und unterbreiten Ihnen passende Terminvorschläge. Bitte geben Sie dabei stets Ihre vollständigen Kontaktdaten an.

Die Objektbeschreibung basiert auf den Angaben des Eigentümers. Für die Richtigkeit und Vollständigkeit dieser Informationen übernehmen wir keine Gewähr.

***************************************************************************
Besichtigungstermine sind bereits mit dem Eigentümer abgestimmt.

Bei einem Besichtigungswunsch antworten Sie am besten per Mail. Wir melden uns dann umgehend mit Terminvorschlägen bei Ihnen. Bitte geben Sie immer Ihre vollständigen Kontaktdaten an sowie die Adresse des Objektes an, das Sie interessiert.

Ihr persönlicher Ansprechpartner:

Kristina Mayrhofer

E-Mail: kristina.mayrhofer@falcimmo.de
Tel: 0800 / 646 0 646 / kostenlos / von 6:00-22:00 / Mo-So
Mobil: 0155-600-65-018.
***************************************************************************
Möchten auch Sie Ihre Immobilie professionell vermarkten? Dann kontaktieren Sie uns gerne! Wir stehen Ihnen täglich von Montag bis Sonntag zwischen 6:00 und 22:00 Uhr persönlich zur Verfügung. Über 200.000 aktive Interessenten warten bereits auf Ihr Angebot.

Ausstattung

Besichtigen Sie Ihre zukünftige Immobilie schon heute unter: https://app.immoviewer.com/portal/tour/3137335?accessKey=698e

1) Wohnfläche: 58,8 m²
2) Anzahl der Zimmer: 3
3) Geschoss: 2. OG, Treppe vorhanden
4) Aufzug: nicht vorhanden
5) Aufteilung: Kinderzimmer/Arbeitszimmer, Elternzimmer, Wohnzimmer, Bad, Flur
6) Bodenbelag: Laminat in Elternzimmer, Kinderzimmer, Flur Fliesen im Bereich der Wohnzimmer und Küche, Bad
7) Fenster: PVC, 2-fach verglast, Dreh-Kipp-Funktion, mit Rollläden aus Kunststoff
8) Innentüren: Holztüren
9) Einbauküche, inkl. Herd, Ofen, Dunstabzugshaube, Kühlschrank, Waschmaschine, Spülmaschine
10) Kabel TV: vorhanden
11) Internet: DSL-Leitung - vorhanden, Glasfaseranschluss: vorhanden
12) Anschluss für Waschmaschine: in der Küche und im Wäschetrockenraum
13) Telefonanschluss: vorhanden
14) Sprechanlage: vorhanden
15) Gesamtschließanlage im Haus: nur 1 Schlüssel für Haustür, Eingangstür, Garage und Kellerraum
Kellerabteil: vorhanden
16) Heizungsart: Erdgas
17) Digitale Strom- und Heizungsabrechnung sowie Wasserzähler: vorhanden.
18) Tiefgaragenparkplatz: vorhanden, zzgl. zum Kaufpreis - 10.000 €
19) Fahrradstellplatz: vorhanden

***************************************************************************
Besondere Merkmale der Immobilie:

- Bezugsfähig ab sofort
- 3 Zimmer mit offener Küche: Praktische Aufteilung für komfortables Wohnen. Die gut geschnittenen Zimmer bieten viel Platz zur individuellen Gestaltung.
- Die vorhandene Kücheneinrichtung verbleibt in der Wohnung und ermöglicht einen unkomplizierten Einzug.
- Großzügige Räume. Die gut geschnittenen Zimmer bieten viel Platz zur individuellen Gestaltung.
- Tageslichtbad: Das Badezimmer ist mit einem Fenster ausgestattet und sorgt für eine angenehme Atmosphäre.
- Spielplatz direkt vor der Haustür – ideal für Familien: Kinder können sicher und bequem draußen spielen, ohne lange Wege.
- Grüne Umgebung im Sommer – viel Natur und frische Luft: Perfekt für entspannte Nachmittage, Spaziergänge und ein angenehmes Wohngefühl.
- Kindergarten gleich ums Eck – spart Zeit und erleichtert den Alltag: kurze Wege, schnelle Organisation und maximale Familienfreundlichkeit.

Lage

Diese charmante 3-Zimmer-Wohnung mit einer Wohnfläche von ca. 58 m² befindet sich in einem gepflegten Mehrfamilienhaus aus dem Jahr 1967 in Schwabmünchen. Die Wohnung besticht durch eine durchdachte Raumaufteilung und bietet ausreichend Platz für Paare oder kleine Familien.

Die Lage der Wohnung ist ideal für all jene, die eine gute Anbindung an den öffentlichen Nahverkehr schätzen. Die nächste Bushaltestelle ist nur etwa 300 Meter entfernt, und der Bahnhof Schwabmünchen ist in ca. 2 km erreichbar. Für Pendler bietet die Autobahnauffahrt A96 eine gute Erreichbarkeit in ca. 16 km Entfernung.

In der Umgebung finden Sie eine Vielzahl an Einkaufsmöglichkeiten, darunter ein NORMA-Supermarkt in ca. 200 Metern Entfernung. Auch für Freizeitaktivitäten ist gesorgt: Ein Fitnessstudio ist nur ca. 500 Meter entfernt, und der Luitpoldpark lädt in ca. 800 Metern Entfernung zu Spaziergängen ein.

Die medizinische Versorgung ist durch nahegelegene Arztpraxen und die Wertachklinik Schwabmünchen in ca. 1,7 km Entfernung gewährleistet.
Für Familien mit Kindern gibt es in der kürzen Nähe: St. Anna Kindergarten und -Krippe sowie Sankt-Ulrich-Grundschule.
***************************************************************************

Falls Sie Wert auf eine ruhige Lage, eine durchdachte Raumaufteilung und ein gehobenes Wohnumfeld legen, könnte dieses Objekt genau das Richtige für Sie sein. Wir bieten Ihnen eine kostenlose 24/7-Hotline unter der Rufnummer 0800-6460646, über die Sie uns jederzeit erreichen können.

Wenn Sie Interesse an der Immobilie haben, fordern Sie gerne das ausführliche Exposé an, das Ihnen in der Regel kurzfristig und automatisch zugesandt wird. Sollten Sie eine Besichtigung wünschen, antworten Sie am besten direkt per E-Mail auf das Exposé. Wir setzen uns umgehend mit Ihnen in Verbindung und unterbreiten Ihnen passende Terminvorschläge. Bitte geben Sie dabei stets Ihre vollständigen Kontaktdaten an.

Die Objektbeschreibung basiert ganz oder teilweise auf den Angaben des Eigentümers. Für die Richtigkeit und Vollständigkeit dieser Informationen übernehmen wir keine Gewähr.

Möchten auch Sie Ihre Immobilie professionell vermarkten? Dann kontaktieren Sie uns gerne! Wir stehen Ihnen täglich von Montag bis Sonntag zwischen 6:00 und 22:00 Uhr persönlich zur Verfügung. Über 200.000 aktive Interessenten warten bereits auf Ihr Angebot.
Lade Orte in der Umgebung

Sonstiges

Attraktive Anlagechance – Kapitalanleger aufgepasst: Kontaktieren Sie uns noch heute oder hinterlassen Sie Ihren Rückruf, um Ihr Investment zu sichern!
***************************************************************************
Hausgeld = 296€, zzgl. 81€ monatlichen Rücklagen
Stand Rücklagen am 31.12.2024= 127.779,65€
Umlagefähige Kosten (Stand Nebenkosten vom Jahr 2024)= ca. 141€
***************************************************************************
Bereits durchgeführte Sanierungen in der Anlage:
- Anstrich der Fassade
- Anschluss an Glasfaser
- Austausch der Heizanlage im Jahr 2011 (lt. Protokoll vom 23.7.25, Punkt 2.6)
- Erneuerung der Bodenbeschichtung im Keller
**************************************************************************
Sonstiges in der Wohnung:
- Kleines Fenster im Bad kann nur gekippt werden
- Türklinken klemmen
- 1 Heizkörper im Kinderzimmer ist zu montieren, das Heizkörper ist aktuell demontiert
- Bad: Anschlussleisten am Kabelkanal ist auszutauschen
- 1 Türblatt zwischen Flur und Wohnzimmer ist nicht vorhanden
- Der Einbaukühlschrank ist funktionstüchtig, zeigt innen jedoch eine leichte gelbliche Verfärbung
**************************************************************************
Instandsetzungsmaßnahmen in der Anlage lt. Protokoll vom 23.7.2024, die aus der Erhaltungsrücklage finanziert werden:
- Austausch des Zauns an der Gartenseite
- Austausch 2 Warmwasserboiler in der Heizungsanlage
- Installation eines Glasfaseranschlusses in einige Wohnungen in der Anlage
- Kleinreparaturen
- Das Streichen vom Treppenhaus
**************************************************************************
Beim ausgewiesenen Preis handelt es sich um den Angebotspreis, der sich durch Verhandlungen auch ändern kann.

Bei diesem Objekt ist nicht vorgesehen, dass der Käufer mit uns eine eigenständige Provisionsvereinbarung trifft, sofern dieser als Verbraucher (§ 14 BGB) zu qualifizieren ist. Der Verkauf erfolgt nur an denjenigen, der sich bereit erklärt, einen Teil der vom Verkäufer zugesagten Provision zu übernehmen (maximal 50 %, vgl. § 656 d BGB).
Dieser Anteil beträgt 3,57% inkl. Umsatzsteuer bezogen auf den notariell beurkundeten Kaufpreis.

Der Energieausweis liegt vor und kann zur Besichtigung eingesehen werden.
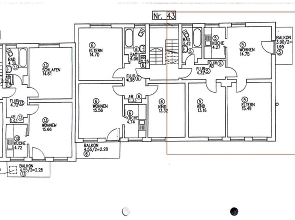
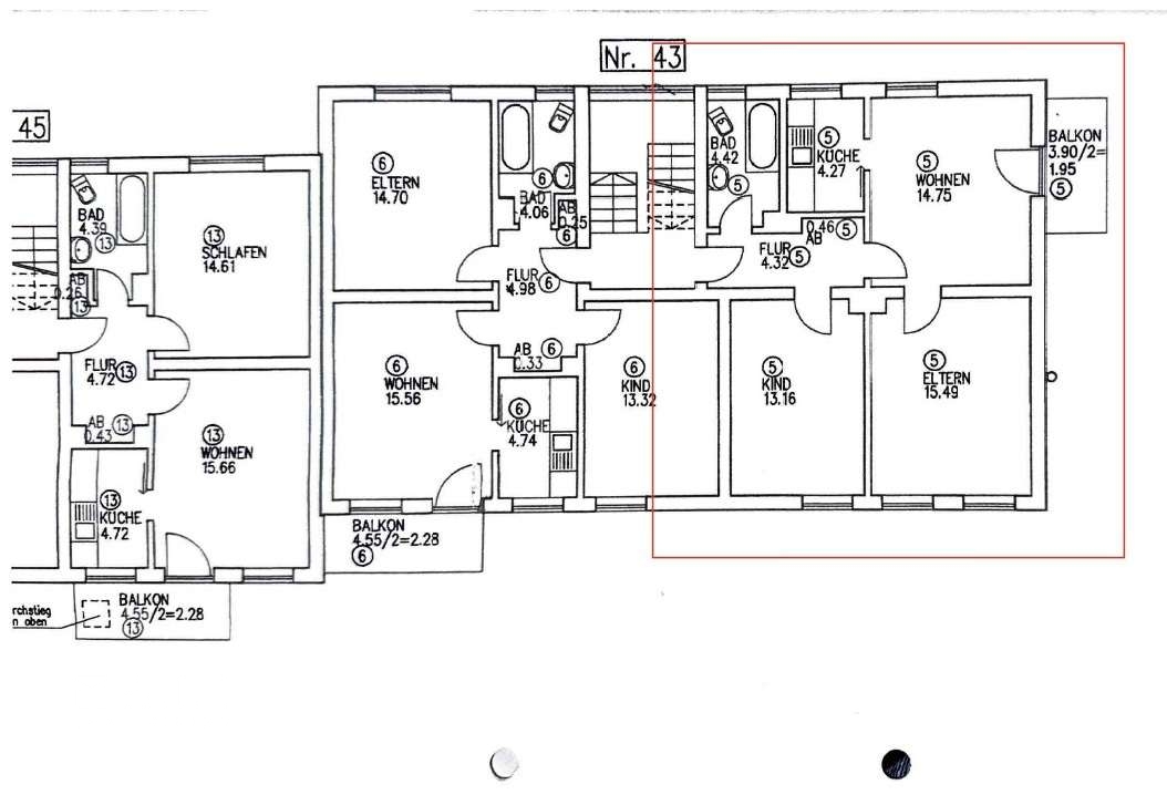
Die Flächen wurden von dem original Plan des Verkäufers übernommen, siehe FALC Grundriss.
Die Gesamtwohnfläche wurde aus dem Grundrissplan vom Verkäufer entnommen.
Baujahr von Anlagentechnik wurde aus dem Energieausweis übernommen.

Die wesentliche Objektunterlagen liegen vor und können bei ernsthaftem Kaufinteresse bereitgestellt werden.
Die Objektbeschreibung basiert auf den Angaben des Eigentümers.
Für die Richtigkeit und Vollständigkeit dieser Informationen übernehmen wir keine Gewähr.
***************************************************************************
Wenn Sie Interesse an der Immobilie haben, fordern Sie gerne das ausführliche Exposé an, das Ihnen in der Regel kurzfristig und automatisch zugesandt wird. Sollten Sie eine Besichtigung wünschen, antworten Sie am besten direkt per E-Mail auf das Exposé. Wir setzen uns umgehend mit Ihnen in Verbindung und unterbreiten Ihnen passende Terminvorschläge. Bitte geben Sie dabei stets Ihre vollständigen Kontaktdaten an.

Möchten auch Sie Ihre Immobilie professionell vermarkten? Dann kontaktieren Sie uns gerne! Wir stehen Ihnen täglich von Montag bis Sonntag zwischen 6:00 und 22:00 Uhr persönlich zur Verfügung. Über 200.000 aktive Interessenten warten bereits auf Ihr Angebot.

Bitte beachten Sie, dass das Exposé möglicherweise unter Zuhilfenahme von Künstlicher Intelligenz (KI) erstellt oder überarbeitet wurde.

Anbieterdaten

Kristina Mayrhofer

Ansprech­partner

Kristina Mayrhofer

Ihre Nachricht an FALC Immobilien Untermeitingen

Ihr Ansprechpartner: Kristina Mayrhofer

Mit (*) gekennzeichnete Felder sind Pflichtangaben.