Solider Winkelbungalow mit Potenzial in guter Nachbarschaft!
Hauptterrasse Gartenansichtkleine TerrasseEingangsbereichKücheKücheEsszimmerWohnzimmerDieleKinderzimmerBadezimmer ErdgeschossSchlafzimmerBüro/Arbeitszimmer im SouterrainBadezimmer SouterrainGrundriss ErdgeschossGrundriss KellergeschossHausansicht
Eckdaten
Zimmer
Wohnfl.
Grundst.
Kaufpreis
Zimmer
Wohnfl.
Grundst.
435000.0€ Kaufpreis
Basisdaten
Objektnummer
Immopark ID
IP-308073
Objekt ID
5129
Adresse
42329 Wuppertal
Ort
42329 Wuppertal
Fakten und Zahlen
Haustyp
Bungalow
Vermarktungsart
Kauf
Nutzungsart
wohnen
Verkaufsstatus
offen
Baujahr
1965
Kerndaten
Wohnfläche
134 m2
Zimmer
4.0
Schlafzimmer
3.0
Badezimmer
2.0
separate WC
1.0
Nutzfläche
40 m2
Grundstücksfläche
758 m2
Anzahl Stellplätze (gesamt)
2.0
Bauweise / Substanz
Objektzustand
gepflegt
Wohneinheiten
1.0
Verfügbarkeit
Verfügbar ab
nach Absprache
Preisdaten
Preis
Kaufpreis
435.000 €
Courtage
Käufercourtage
3,57 % inkl. gesetzl. MwSt. vom Kaufpreis, fällig nach notarieller Beurkundung
Innen- / Außencourtage
inkl. MwSt.
Merkmale
Zimmer und Bereiche
Typ
Teilweise unterkellert
Gesamtfläche
50 m2
Anzahl (Terrassen)
2.0
Zimmer und Räume
Schlafzimmer
Zimmer und Räume
Wasch- / Trockenraum
Ausstattung und Technik
Qualität der Ausstattung
standard
TV Anschluss
Kabel Sat TV
Sanitäre Einrichtung
Sanitäre Einrichtung
Gäste WC
Stellplätze
Anzahl Stellplätze (gesamt)
2.0
Stellplatzdetails
Freiplatz
Anzahl
1.0
Stellplatzdetails
Garage
Anzahl
1.0
Energie
Heizung
Heizungsart
Zentralheizung
Befeuerungsart
Befeuerungsart
Öl
Umgebung
Es wurden keine Daten angegeben.
Objektbeschreibung
Dieser klassische Winkelbungalow aus dem Jahr 1965 wurde in solider Massivbauweise errichtet und überzeugt durch seine durchdachte Raumaufteilung sowie das großzügige Platzangebot – ideal für Paare oder Familien, die das Wohnen auf einer Ebene schätzen.
Vom zentralen Eingangsbereich mit Diele und Flur öffnen sich die Räume sternförmig:
Zur linken Seite befindet sich die Küche mit Zugang zum Keller, geradeaus das Esszimmer und rechts daneben das helle Wohnzimmer mit Blick in den Garten. Der private Bereich beherbergt zwei gut geschnittene Schlafzimmer sowie ein Tageslichtbad mit Wanne, Dusche und Fenster.
Hinter dem Haus erwarten Sie zwei Terrassen, die einen wunderbaren Rückzugsort inmitten des uneinsehbaren Gartens bieten. Hier können Sie die Ruhe genießen, und ein Wintergarten- oder sogar ein massiver Anbau wäre zusätzlich realisierbar.
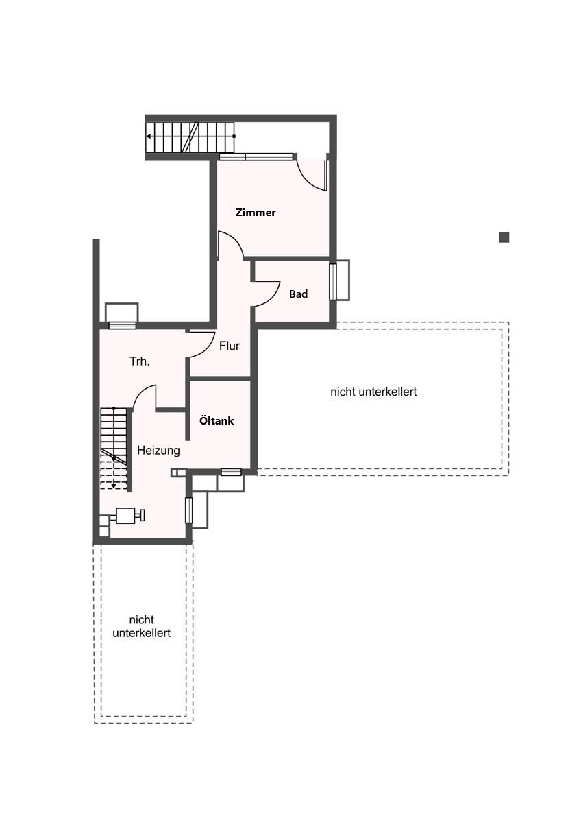
Im Kellergeschoss stehen Ihnen neben Heizungs-, Wasch- und Abstellräumen weitere nutzbare Flächen zur Verfügung. Die Brennwertheizung wurde erst 2023 erneuert. Besonders hervorzuheben ist das Souterrainzimmer mit großen Fenstern und Blick ins Grüne, das sich ideal als Gäste- oder Kinderzimmer, Büro oder Hobbyraum eignet. Ein zusätzliches Duschbad mit WC bietet hier weiteren Komfort.
Eine Garage sowie ein Stellplatz vor dem Haus komplettieren dieses attraktive Angebot.
Vielleicht haben wir Ihre Neugier geweckt – gerne senden wir Ihnen weitere Informationen oder vereinbaren einen Besichtigungstermin.
Wir freuen uns auf Ihre Kontaktaufnahme!
Lage
Der Bungalow befindet sich in einer ruhigen und gewachsenen Wohnlage am Rappenweg in Wuppertal, umgeben von gepflegten Einfamilienhäusern und viel Grün.
Die Umgebung bietet eine ideale Kombination aus Ruhe und guter Erreichbarkeit: Einkaufsmöglichkeiten, Schulen, Kindergärten und Ärzte befinden sich in unmittelbarer Nähe. Die Anbindung an den öffentlichen Nahverkehr ist ebenso hervorragend wie der Anschluss an die Autobahnen A46 und A535, wodurch auch die umliegenden Städte schnell erreichbar sind.
Die nahegelegenen Grünflächen laden zu Spaziergängen, Sport und Erholung im Freien ein – ein perfekter Ort für Familien, Naturliebhaber oder Ruhesuchende, die dennoch stadtnah wohnen möchten.
Lade Orte in der Umgebung
Sonstiges
RECHTSHINWEIS Da wir Objektangaben nicht selbst ermitteln, übernehmen wir hierfür keine Gewähr. Dieses Exposé ist nur für Sie persönlich bestimmt. Eine Weitergabe an Dritte ist an unsere ausdrückliche Zustimmung gebunden und unterbindet nicht unseren Provisionsanspruch bei Zustandekommen eines Vertrages. Alle Gespräche sind über unser Büro zu führen. Bei Zuwiderhandlung behalten wir uns Schadenersatz bis zur Höhe der Provisionsansprüche ausdrücklich vor. Zwischenverkauf ist nicht ausgeschlossen.