Stadtnah und trotzdem im Grünen - genießen Sie die Sommerabende auf Ihrer Terrasse!

Eckdaten

 Zimmer
 Wohnfl.
 Grundst.
Kaltmiete
 Zimmer
 Wohnfl.
 Grundst.

Kaltmiete

Basisdaten

Objektnummer
Immopark ID
IP-297028
Objekt ID
FALC-RD-64369
Adresse
Ort
12526 Berlin
Fakten und Zahlen
Haustyp
Reihen­mittel­haus
Vermarktungsart
Miete / Pacht
Nutzungsart
wohnen
Baujahr
2024
Kerndaten
Wohnfläche
115,81 m2
Zimmer
4.0
Schlafzimmer
3.0
Badezimmer
2.0
Gesamtfläche
115,81 m2
Grundstücksfläche
115,81 m2
Bauweise / Substanz
Objektzustand
Erstbezug
Etagenanzahl der Immobilie
2
Verfügbarkeit
Verfügbar ab
sofort

Preisdaten

Preis
Kaltmiete
2.200,39 €
Nebenkosten
347,43 €
Warmmiete
2.547,82 €
Heizkosten enthalten
Weitere Kosten
Kaution Info
8685,75

Merkmale

Zimmer und Bereiche
Gesamtfläche
13,52 m2
Anzahl (Balkone)
1.0
Anzahl (Terrassen)
1.0
Schlaf­zimmer
Abstell­raum
Ausstattung und Technik
Qualität der Ausstattung
gehoben
Einbau­küche
Fliesen­boden
Parkett­boden
Sanitäre Einrichtung
Fenster
Dusche
Wanne
Gäste WC
Besondere Merkmale
WG-geeignet
Nutzung als Ferienimmobilie

Energie

Energieausweis
Energieausweis ist nicht notwendig nach EnEV
Gebäudeart lt. Energieausweis
Wohngebäude
Befeuerungsart
Luft-/Wasser-Wärmepumpe

Umgebung

Es wurden keine Daten angegeben.

Objektbeschreibung

HAUS K

Im Herzen von Bohnsdorf liegt dieses ruhige, grüne Terrassen-Reihenhaus mit schöner Klinkerfassade am Dorfplatz in einem ruhigen Hinterhof. Dank der naturfreundlichen Lage können Sie hier den Trubel der Großstadt vergessen und das pure Leben genießen!

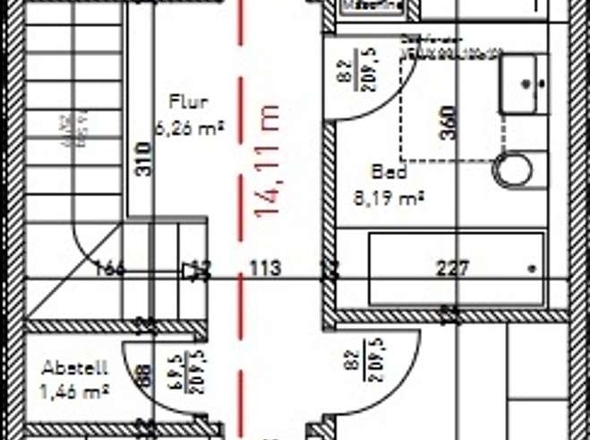
Auf ca. 115,81m² und zwei Etagen verteilen sich 4 Zimmer, Flur, Küche, Bad, Gäste-WC, ein Abstellraum und eine wunderschöne Terrasse. Durch den vorteilhaften Grundriss wirkt das Haus schön geräumig, da keine Flächen an beispielsweise lange Flure verloren gehen. Dieses Haus ist Ideal für kleine Familien, Pärchen oder Rentner.

Das Reihenhaus wurde im Jahr 2024 fertig gestellt und wird als Erstbezug übergeben.

Ausstattung

In das Haus wird zeitnah noch eine voll ausgestattete Küchenzeile mit Herd, Ofen, Kochfeld, Kühlschrank und Dunstabzug eingebaut.

Der Fußboden ist mit hochwertigen Holzdielen verlegt.

Doppelverglaste Holzfenster halten die Wohnung warm und tragen unter anderem zu einem geringen Energieverbrauch bei. Alle Fenster sind mit elektrischen Rollläden ausgestattet.

Das Badezimmer mit Badewanne und separater Dusche ist zeitlos hell gefliest. Zusätzlich gibt es ein Gäste-WC für Besucher. Die Sanitäranlagen sind von Villeroy und Boch. Das Badezimmer verfügt über Vellux Dachfenster.

Die Terrasse bietet einen schönen Blick in den Garten.

Ein Abstellraum zu Verstauzwecken steht ebenfalls zur Verfügung.

Das Haus verfügt über eine Fußbodenheizung.

Lage

Bohnsdorf, der südlichste Ortsteil des Bezirkes Treptow-Köpenick, an der Stadtgrenze zu Brandenburg gelegen, ist noch eine der wenigen Berliner Dorfanlagen mit Anger, barocker Dorfkirche und Dorfteich sowie alten Bauernhäusern mit anliegenden Obstgärten. Zwei Seiten des Ortsteils grenzen an Falkenhorst.

Das Haus selbst befindet sich direkt am Dorfplatz gegenüber der alten Dorfkirche im Hinterhof des Grundstücks. Der Flughafen Berlin-Schönefeld ist lediglich ca. 10 Autominuten entfernt. Eine Buslinie verkehrt direkt am Dorfplatz. Der S- Bahnhof Altglienicke ist ebenfalls Fußläufig erreichbar. Von hier aus kommen Sie schnell in das Stadtzentrum oder zum Flughafen Schönefeld.


Supermärkte, Schulen und Kitas befinden sich im Radius von wenigen Kilometern.

Wer in Bohnsdorf wohnt, genießt die dörfliche Idylle am Berliner Stadtrand, ist aber – dank der guten Anbindung – schnell in der Stadt. Eine schöne Wohnlage und eine gute Infrastruktur runden den Eindruck ab.
Lade Orte in der Umgebung

Zusätzliche Information

Bohnsdorf, der südlichste Ortsteil des Bezirkes Treptow-Köpenick, an der Stadtgrenze zu Brandenburg gelegen, ist noch eine der wenigen Berliner Dorfanlagen mit Anger, barocker Dorfkirche und Dorfteich sowie alten Bauernhäusern mit anliegenden Obstgärten. Zwei Seiten des Ortsteils grenzen an Falkenhorst.

Das Haus selbst befindet sich direkt am Dorfplatz gegenüber der alten Dorfkirche im Hinterhof des Grundstücks. Der Flughafen Berlin-Schönefeld ist lediglich ca. 10 Autominuten entfernt. Eine Buslinie verkehrt direkt am Dorfplatz. Der S- Bahnhof Altglienicke ist ebenfalls Fußläufig erreichbar. Von hier aus kommen Sie schnell in das Stadtzentrum oder zum Flughafen Schönefeld.


Supermärkte, Schulen und Kitas befinden sich im Radius von wenigen Kilometern.

Wer in Bohnsdorf wohnt, genießt die dörfliche Idylle am Berliner Stadtrand, ist aber – dank der guten Anbindung – schnell in der Stadt. Eine schöne Wohnlage und eine gute Infrastruktur runden den Eindruck ab.

Sonstiges

Eine Besichtigung sagt mehr als jede Beschreibung, bei Interesse zögern Sie nicht und vereinbaren Sie einen unverbindlichen Termin.
Wir bieten nicht nur eine kostenlose Hotline, sondern auch einen Service am Wochenende an.

Bei Interesse geben Sie bitte immer Ihre vollständigen Kontaktdaten an.

Die Objektbeschreibung beruht ganz oder zum Teil auf Angaben des Eigentümers. Für die Richtigkeit oder Vollständigkeit übernehmen wir keine Gewähr.

Sie haben auf Anhieb nichts gefunden oder suchen Sie etwas ganz bestimmtes?
Teilen Sie uns einfach mit was Sie suchen und wonach wir für Sie die Augen offen halten dürfen. Profitieren Sie von den Vorteilen einer professionellen Maklersuche. Der Suchauftrag ist unverbindlich.
Auf unserer Homepage www.falcimmo.de unter der Rubrik Immobiliensuche halten wir für Sie zum einen den Onlinesuchauftrag bereit, haben aber auch viele andere nützliche Informationen für Kaufinteressenten und Eigentümer.

Anbieterdaten

Rachid Dib

Ansprech­partner

Rachid Dib

Ihre Nachricht an FALC Immobilien Berlin (Rachid Dib)

Ihr Ansprechpartner: Rachid Dib

Mit (*) gekennzeichnete Felder sind Pflichtangaben.