Top-Investment: Projektierter Neubau mit 7 Wohneinheiten inklusive Penthouse und Blick auf den Rhein

Eckdaten

 Zimmer
 Wohnfl.
 Grundst.
Kaufpreis
 Zimmer
 Wohnfl.
 Grundst.

Kaufpreis

Basisdaten

Objektnummer
Immopark ID
IP-309740
Objekt ID
1067-275-1-SG
Adresse
Ort
79618 Rheinfelden
Fakten und Zahlen
Haustyp
Mehr­familien­haus
Vermarktungsart
Kauf
Nutzungsart
wohnen
Verkaufsstatus
offen
Kerndaten
Wohnfläche
781 m2
Zimmer
23.0
Schlafzimmer
16.0
Badezimmer
7.0
separate WC
3.0
Grundstücksfläche
693 m2
Anzahl Stellplätze (gesamt)
14.0

Preisdaten

Preis
Kaufpreis
589.000 €
Courtage
Käufercourtage
2,38 % inkl. gesetzl. MwSt. (19%)
inkl. MwSt.

Merkmale

Zimmer und Bereiche
Anzahl (Balkone)
8.0
Anzahl (Terrassen)
1.0
Schlaf­zimmer
Abstell­raum
Sanitäre Einrichtung
Gäste WC
Stellplätze
Anzahl Stellplätze (gesamt)
14.0
Sonstiger Stellplatz
Anzahl
14.0

Energie

Es wurden keine Daten angegeben.

Umgebung

Es wurden keine Daten angegeben.

Objektbeschreibung

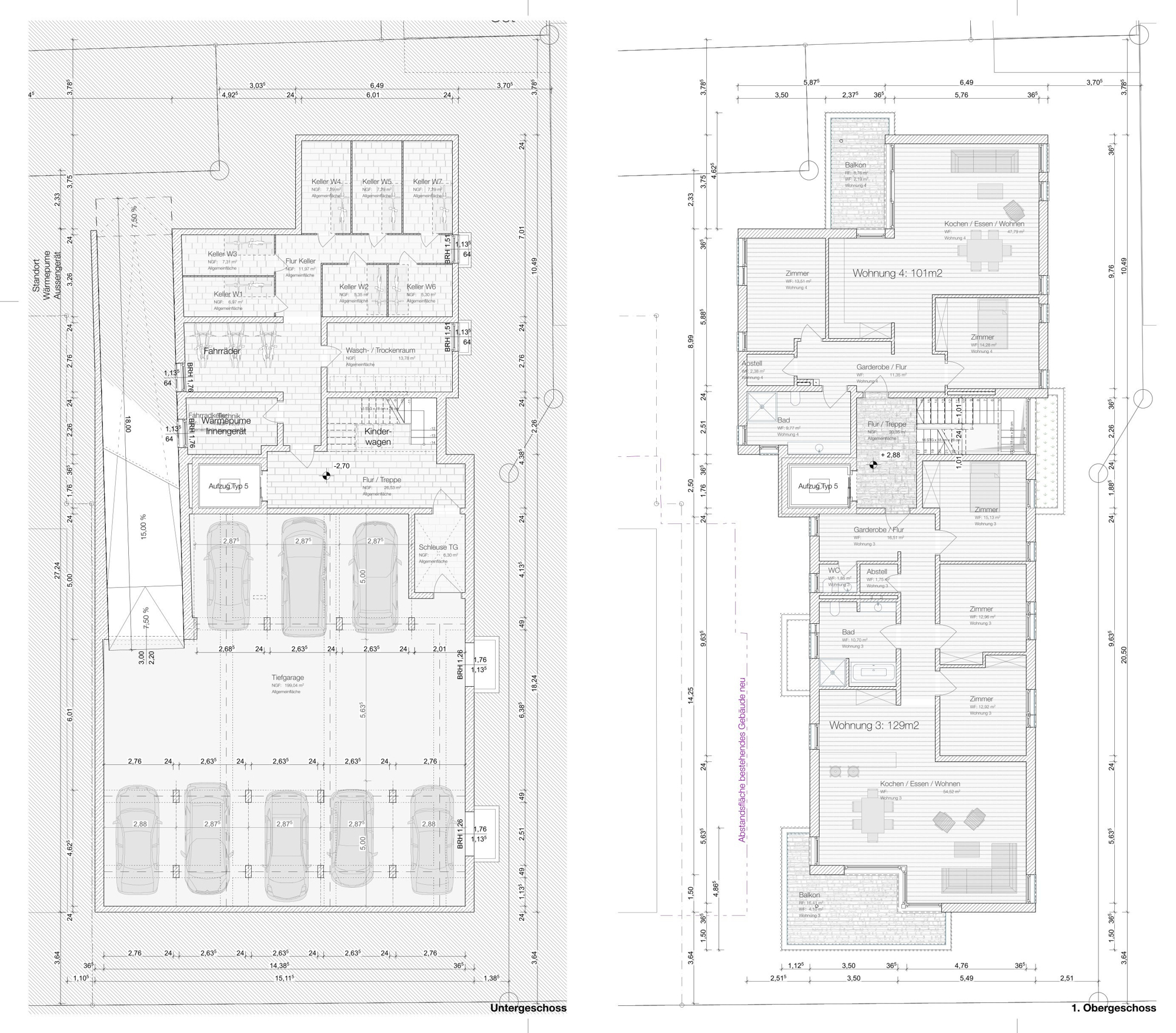
Zum Verkauf steht ein Grundstück inklusive Projektierung und Baugenehmigung für ein modernes Mehrfamilienhaus mit insgesamt 7 hochwertig geplanten Wohneinheiten. Das Projekt bietet ein attraktives Investment mit viel Potenzial in begehrter Lage, mit direktem Blick auf den Rhein.

Die Highlights im Überblick:

Geplantes Mehrfamilienhaus mit 7 Wohneinheiten
Jede Einheit verfügt über 2 Stellplätze
Insgesamt 14 Stellplätze für eine komfortable Parksituation
Mit Aufzug und Tiefgarage
Alle Wohnungen mit Balkon oder Terrasse – ideal für zeitgemäßes Wohnen mit Freiraum

Das absolute Highlight wird das Penthouse im Dachgeschoss, mit 169qm Wohnfläche und zwei großen Terrassen, die fast das ganze Penthouse umschließen.

Dieses Projekt bietet sowohl Kapitalanlegern als auch Bauträgern eine hervorragende Möglichkeit, ein zukunftsfähiges Wohnkonzept in gefragter Lage zu realisieren.

Ausstattung

EG: WHG 1:
119 m²
49qm großer Wohn-Essbereich mit offener Küche,
3 Schlafzimmer,
Garderobe,
Abstellraum,
Bad mit Dusche und Wanne
Gäste WC
Terrasse

EG: WHG 2:
65 m²
36,42qm großer Wohn-Essbereich mit offener Küche,
1 Schlafzimmer,
Garderobe,
Bad mit Dusche
Terrasse

1OG: WHG 3: 129 m²
54,52qm großer Wohn-Essbereich mit offener Küche,
3 Schlafzimmer,
Garderobe,
Abstellraum,
Bad mit Dusche und Wanne
Gäste WC
Balkon

1OG: WHG 4: 104 m²
47,79qm großer Wohn-Essbereich mit offener Küche,
2 Schlafzimmer,
Garderobe,
Abstellraum,
Bad mit Dusche
Balkon

2OG: WHG 5: 98 m²
47,33qm großer Wohn-Essbereich mit offener Küche,
2 Schlafzimmer,
Garderobe,
Bad mit Dusche
Terrasse und
Balkon

2OG: WHG 6: 94 m²
42,65qm großer Wohn-Essbereich mit offener Küche,
2 Schlafzimmer,
Garderobe,
Abstellraum,
Bad mit Dusche
Balkon

DG: WHG7 : 169 m²
57qm großer Wohn-Essbereich mit offener Küche,
3 Schlafzimmer,
Garderobe,
Abstellraum,
Bad mit Dusche
Gäste WC
2 Terrassen und
ein Balkon

Untergeschoss:
Wasch-Trockenraum
Tiefgarage

Insgesamt wie auch im Bauantrag 781 m² + 14 PKW Stellplätze

Lage

Rheinfelden ist als der sonnigste Ort Deutschlands betitelt worden und genießt weit über seine Grenzen hinaus hohes Ansehen: Viele kulturelle und historische Sehenswürdigkeiten erfreuen Besucher und Bewohner aus aller Welt.

Durch die Lage im äußersten Südwesten Deutschlands sind sowohl die Schweiz als auch Frankreich in wenigen Fahrminuten zu erreichen.

Mit zahlreichen Einkaufs- Dienstleistungs- sowie Freizeitmöglichkeiten und anderen wichtigen Institutionen wie Schulen, Kindergärten und Ärzten ist alles geboten und schnell zu erreichen.

weitere Ziele:
Lörrach: 12 km
Bad Säckingen 16 km
Basel 30 km
Zürich 70 km
Lade Orte in der Umgebung

Sonstiges

Verpassen Sie keine Immobilie mehr!

Unser komplettes Immobilienangebot finden Sie immer zuerst auf www.remax.de.

Gerne helfen wir Ihnen auch beim Verkauf oder der Vermietung Ihrer Immobilie. Wir freuen uns sehr, wenn Sie uns weiterempfehlen.

Anbieterdaten

Samuel Grauer

Ansprech­partner

Samuel Grauer

Ihre Nachricht an RE/MAX Immobilienmakler Lörrach

Ihr Ansprechpartner: Samuel Grauer

Mit (*) gekennzeichnete Felder sind Pflichtangaben.