Uns gibt es im Doppelpack! Tolle Wohnung mit zusätzlicher Gewerbeeinheit!

Eckdaten

 Zimmer
 Wohnfl.
 Grundst.
Kaufpreis
 Zimmer
 Wohnfl.
 Grundst.

Kaufpreis

Basisdaten

Objektnummer
Immopark ID
IP-312473
Objekt ID
1148-1097-TS
Adresse
Ort
73728 Esslingen am Neckar
Fakten und Zahlen
Wohnungstyp
Etage
Vermarktungsart
Kauf
Nutzungsart
wohnen
Verkaufsstatus
offen
Baujahr
1915
Kerndaten
Wohnfläche
105 m2
Zimmer
4.0
Schlafzimmer
1.0
Badezimmer
1.0
Nutzfläche
7 m2
Bauweise / Substanz
Objektzustand
gepflegt
Etagenanzahl der Immobilie
1

Preisdaten

Preis
Kaufpreis
349.000 €
Zus. Preis Info
349.000 €
Courtage
Käufercourtage
4,76 % inkl. MwSt.

Merkmale

Zimmer und Bereiche
Voll unterkellert
Gesamtfläche
5 m2
Anzahl (Balkone)
1.0
Anzahl (Terrassen)
1.0
Schlaf­zimmer
Ausstattung und Technik
Einbau­küche
Sanitäre Einrichtung
Gäste WC

Energie

Energieausweis
Typ
Bedarfs­ausweis
EnEV
ab 01.05.2014 (gemäß EnEV 2014)
Energieausweis gültig bis
2035-09-24
Endenergiebedarf gemessen in kWh/(m²a)
483.03

A+ABCDEFGH

Energieeffizienz­klasse
H
Baujahr lt. Energieausweis
1912
Gebäudeart lt. Energieausweis
Wohngebäude
Befeuerungsart
Gas

Umgebung

Es wurden keine Daten angegeben.

Objektbeschreibung

Wohnen und Arbeiten unter einem Dach – mit klarer Trennung und direkter Verbindung
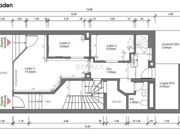
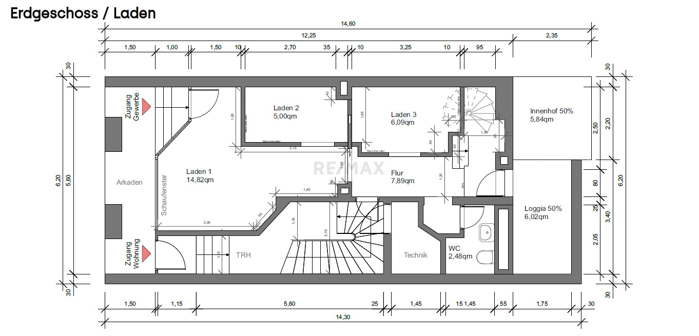
Die Einheit bietet im Obergeschoss ca. 57 m² Wohnfläche, die durch eine interne Wendeltreppe mit der ca. 48 m² großen Gewerbefläche im Erdgeschoss verbunden ist.
Ideal für Freiberufler, Selbstständige oder Kleinunternehmer, die Wohnen und Arbeiten kombinieren möchten – funktional, kompakt und dennoch räumlich klar getrennt.

Inmitten der Esslinger Altstadt, eine super 2-Zimmer-Wohnung mit Balkon und einer kleinen Gewerbeeinheit darunter aus dem Jahr 1915. Eingebettet in ein gepflegtes Mehrfamilienhaus, eine besondere Gelegenheit unter einem Dach.

Die Wohnung im Obergeschoss punktet mit klarer Raumaufteilung, einem gemütlichen Balkon und einer modernen Einbauküche ideal für Eigennutzer oder zur Vermietung. (aktuell Vermietet) Die Gewerbeeinheit im Erdgeschoss ergänzt das Angebot perfekt ob als kleines Büro, Laden oder Atelier: Die Nutzungsmöglichkeiten sind vielfältig. Beide Einheiten sind nachträglich baulich getrennt worden können jedoch mit geringem aufwand wieder zusammengelegt werden, somit bietet das Objekt maximale Flexibilität.

Sie möchten wohnen, arbeiten oder klug investieren? Dieses Objekt bietet Ihnen die passende Lösung. Jetzt Exposé anfordern und mehr erfahren!

Energieausweis nicht notwendig!

Ein ausführliches Exposé erhalten Sie nach vollständiger Anfrage!

Ausstattung

- Fenster 2011
- Dach gedämmt
- Gewerbeeinheit mit großem Keller
- Bad in der Wohnung, Boden, Duschwanne und die Leitungen unter dem Putz, 2010 neu renoviert
- Marmorboden im Wohnzimmer der Wohnung

Lage

Die Immobilie befindet sich in absolut zentraler Innenstadtlage von Esslingen am Neckar direkt am Roßmarkt, einem historischen Platz mit urbanem Flair. Die Lage überzeugt durch ihre ausgezeichnete Infrastruktur, kurze Wege und ein hohes Maß an Lebensqualität.

Sämtliche Einrichtungen des täglichen Bedarfs wie Supermärkte, Bäckereien, Apotheken, Cafés und Restaurants befinden sich in unmittelbarer Umgebung und sind bequem zu Fuß erreichbar. Der nahegelegene Wochenmarkt auf dem Marktplatz bietet zusätzlich eine große Auswahl an frischen, regionalen Produkten.

Für Familien besonders attraktiv: Der nächste Kindergarten ist nur etwa 450 Meter entfernt, die Grundschule rund 600 Meter. Weiterführende Schulen wie das Schelztor-Gymnasium sind ebenfalls in weniger als 15 Gehminuten erreichbar. Auch die Hochschule Esslingen (Campus Stadtmitte) liegt in unmittelbarer Nähe – ideal für Studierende oder Mitarbeitende im Bildungsbereich.

Der Bahnhof Esslingen ist in wenigen Minuten fußläufig erreichbar und ermöglicht eine schnelle Anbindung nach Stuttgart und in die umliegenden Städte. Durch die Nähe zur B10 sowie zur B313 ist auch die Verkehrsanbindung mit dem Auto hervorragend.

Der Standort bietet die perfekte Kombination aus urbanem Leben, hervorragender Infrastruktur und kurzen Wegen – und das mitten in einer der schönsten Altstädte Baden-Württembergs.
Lade Orte in der Umgebung

Sonstiges

Folgende Kosten sind im Kaufpreis nicht enthalten und vom Käufer zusätzlich zu entrichten: Notar- und Grundbuchkosten (ca. 2 %), Grunderwerbsteuer (5 %), und die mit der Finanzierung entstehenden Kosten. 4,76 % Maklerprovision inkl. gesetzlicher MwSt.. Ab dem Zeitpunkt der Übergabe hat der Käufer die Grundsteuer zu tragen.
Irrtümer vorbehalten. Die Objektdaten beruhen auf Angaben und Unterlagen, die uns vom Veräußerer zur Verfügung gestellt wurden. Für inhaltliche Richtigkeit und Vollständigkeit übernehmen wir keine Haftung. Eine Weitergabe an Dritte ist nicht gestattet.

---
Verpassen Sie keine Immobilie mehr!
Unser komplettes Immobilienangebot finden Sie immer zuerst auf www.remax.de
Gerne helfen wir Ihnen auch beim Verkauf oder der Vermietung Ihrer Immobilie.
Karriere bei REMAX?
Infos: www.remax.de/karriere

Anbieterdaten

Timo Seidel

Ansprech­partner

Timo Seidel

Ihre Nachricht an RE/MAX Wohnerlebnis - Bianka und Thorsten Maier GbR

Ihr Ansprechpartner: Timo Seidel

Mit (*) gekennzeichnete Felder sind Pflichtangaben.