+++VERKAUFT***Aus Geschichte Zukunft gestalten: Idyllischer Gulfhof wartet auf neuen Eigentümer mit Visionen

Eckdaten

 Zimmer
 Wohnfl.
 Grundst.
Kaufpreis
 Zimmer
 Wohnfl.
 Grundst.

Kaufpreis

Basisdaten

Objektnummer
Immopark ID
IP-305813
Objekt ID
1088-35-MS
Adresse
Ort
26736 Krummhörn / Visquard
Fakten und Zahlen
Haustyp
Mehr­familien­haus
Vermarktungsart
Kauf
Nutzungsart
wohnen
Verkaufsstatus
verkauft
Baujahr
1928
Kerndaten
Wohnfläche
207,42 m2
Zimmer
7.0
Schlafzimmer
4.0
Badezimmer
4.0
Nutzfläche
414,18 m2
Grundstücksfläche
1.445 m2
Anzahl Stellplätze (gesamt)
2.0
Bauweise / Substanz
Objektzustand
teil- vollrenovie­rungsbedürftig
Etagenanzahl der Immobilie
2

Preisdaten

Preis
Kaufpreis
185.000 €
Zus. Preis Info
Der Käufer zahlt im Erfolgsfall an das RE/MAX Büro Krummhörn eine Provision in Höhe von 5,95 % inkl. 19% MwSt. Die Provision errechnet sich aus dem beurkundeten Kaufpreis.
Courtage
Käufercourtage
5,95 % inkl. 19 % MwSt.

Merkmale

Zimmer und Bereiche
Schlaf­zimmer
Stellplätze
Anzahl Stellplätze (gesamt)
2.0
Freiplatz
Anzahl
2.0

Energie

Energieausweis
Typ
Bedarfs­ausweis
EnEV
ab 01.05.2014 (gemäß EnEV 2014)
Energieausweis gültig bis
2035-11-27
Endenergiebedarf gemessen in kWh/(m²a)
425.20

A+ABCDEFGH

wesentlicher Energieträger
Gas
Energieeffizienz­klasse
H
Baujahr lt. Energieausweis
1928
Gebäudeart lt. Energieausweis
Wohngebäude
Befeuerungsart
Gas

Umgebung

Es wurden keine Daten angegeben.

Objektbeschreibung

Dieser idyllische Gulfhof aus den Jahren 1926/28 wartet darauf, von neuen Eigentümern mit Leben, Leidenschaft und Visionen erfüllt zu werden.

Mitten im historischen Warfendorf Visquard, umgeben von Weite, Ruhe und ostfriesischem Charme, eröffnet sich Ihnen ein außergewöhnliches Objekt mit Charakter – bereit für das nächste Kapitel seiner Geschichte.

Ein Ort, viele Möglichkeiten – Ihr Ferienidyll oder Familienrefugium

Ob stilvolles Ferienhaus, harmonisches Familiendomizil, Mehrgenerationenprojekt oder die clevere Kombination aus Eigennutzung und (Ferien-)Vermietung:
Dieser Gulfhof begeistert durch seine Vielseitigkeit, seine großzügigen Räume und seine unverwechselbare Lage.

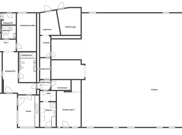
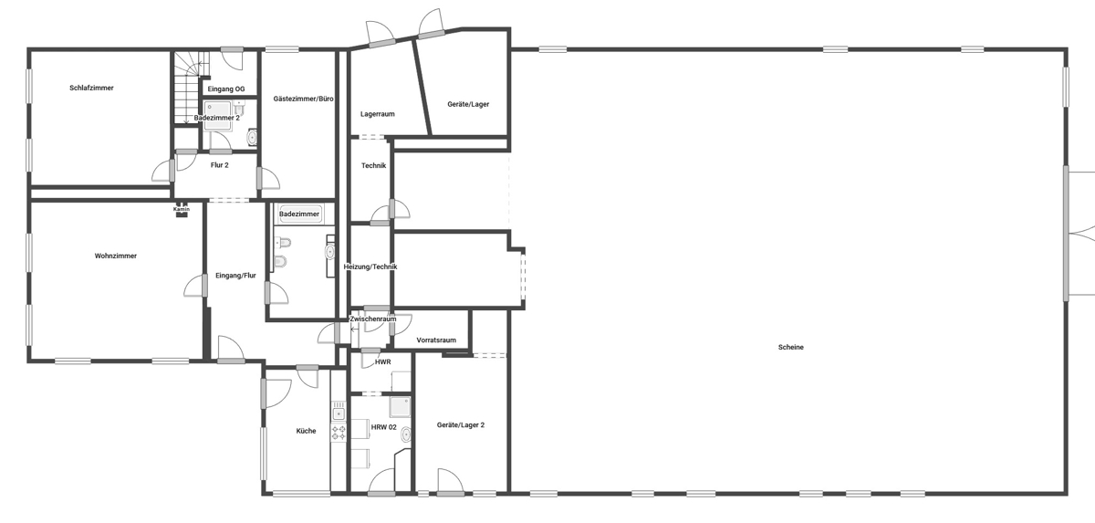
Insgesamt bietet das Anwesen drei getrennte Wohneinheiten – ideal für individuelle Lebens- und Wohnkonzepte.

Wohnung im Erdgeschoss – großzügig, hell und voller Charme

Hier schlägt das Herz des Hauses – ein Ort, an dem sich Alltag und besondere Momente harmonisch verbinden.

Die große, lichtdurchflutete Küche öffnet sich mit weitem Blick in die Natur und wird sofort zum lebendigen Mittelpunkt des Familienlebens.

Das gemütliche Wohnzimmer mit Kaminofen lädt dazu ein, den Tag entspannt ausklingen zu lassen.

Ein großzügiges Schlafzimmer bietet viel Platz – ein Rückzugsort, um vom Alltag abzuschalten.

Das zweite Zimmer, ob als Kinderzimmer, Gästezimmer oder stilvolles Büro genutzt, eröffnet zusätzliche Raum für persönliche Wohnideen.

Zwei Badezimmer sorgen für Komfort im Alltag und ideale Abläufe

Zwei Hauswirtschaftsräume, ein Abstellraum, zwei Technikräume sowie ein weiterer Lagerraum bieten üppig Stauraum – perfekt für Vorräte, Haushaltsorganisation, Hobby oder Geräte.

Im Obergeschoss - Zwei charmante Wohnungen mit vielen Optionen.

Perfekt geeignet als individuelle Rückzugsorte für die Familie, aber auch um Freunde oder Gäste ganz entspannt unterzubringen.

Alternativ auch ideal zur (Ferien-)Vermietung und Refinanzierung der Investitionen

Jede Wohnung bietet:

•Schlafzimmer
•Badezimmer
•Wohn-/Essküche

Ehemaliges Stallgebäude – Raum für Visionäre

Die großzügige Scheune ist mehr als nur Nebengelass – sie ist Ihre Wachstumsfläche für zukunftsweisende Ideen:
Atelier? Ferienloft? Werkstatt? Eventraum?
Wer hier Großes plant, hat alle Möglichkeiten.

Ein Garten, der Herzen höherschlagen lässt

Der weitläufige Garten mit Blick zur historischen Kirche ist ein echtes Highlight:
Mal idyllisch und ruhig am kleinen Teich, mal lebendig als Spielfläche für Kinder oder Treffpunkt für Freunde.

Ein Garten, der Naturverbundenheit, Weite und Lebensfreude aufs Schönste verbindet.

Ein Charakterhaus, das Aufmerksamkeit verdient

Die Jahre haben Spuren hinterlassen – etwas Liebe, einige Renovierungs-/Sanierungsarbeiten und dieses Haus erstrahlt wieder im neuen Glanz.
Eine Investition, die sich lohnt –
in Werte, in Raum, in Lebensqualität und in ein Zuhause, das bleibt.

Lassen Sie sich inspirieren!

Bei einer persönlichen Besichtigung spüren Sie sofort welches Potential in diesem Gulfhof steckt

Entdecken Sie, was möglich ist.

Ausstattung

- Gasbrennwerttherme aus 2012
- 3 getrennte Wohneinheiten
- 4 Schlafzimmer und Badezimmer
- Fenster Doppelverglasung, teilweise 3-fach Verglasung
- Wohnung EG in 2002/2003 saniert und renoviert
- Elektrik teilw. sanierungsbedürftig (kein FI-Schalter)
- viel Lager-/Nutz- und Staufläche

Lage

Visquard ist ein idyllisches Warfendorf in der ostfriesischen Gemeinde Krummhörn im Landkreis Aurich. Das Dorf liegt nur wenige Kilometer von den beliebten Küstenorten Greetsiel und Pilsum entfernt und etwa 13 Kilometer nordwestlich der Seehafenstadt Emden. Durch seine traditionelle Warftlage bietet Visquard einen besonderen historischen Charme: Der Ortskern erhebt sich auf einer künstlich aufgeschütteten Erhöhung, die einst dem Schutz vor Sturmfluten diente und heute ein charakteristisches Dorfbild mit schmalen Gassen und historischer Bausubstanz prägt.

Das kulturelle Zentrum des Ortes bildet die aus dem 13. Jahrhundert stammende evangelisch-reformierte Kirche, die weithin sichtbar auf dem höchsten Punkt der Warft steht. Die Kirche, der freistehende Glockenturm und verschiedene denkmalgeschützte Gebäude verleihen dem Dorf eine außergewöhnlich atmosphärische und geschichtsträchtige Kulisse. Das lebendige Gemeinschaftsleben wird durch Vereine und kulturelle Initiativen wie die Interessengemeinschaft „Viskeert“ geprägt, die regelmäßig Veranstaltungen, Dorffeste und Lichtertage organisiert.

Visquard bietet eine ruhige und naturnahe Wohnqualität mit guter Anbindung. Über die Kreisstraße 231 ist der Ort bequem mit dem Auto zu erreichen; Pewsum als nächstgrößerer Zentralort mit Einkaufsmöglichkeiten, Ärzten, Schulen und Verwaltung ist nur wenige Minuten entfernt. Darüber hinaus ist Visquard über die gut ausgebaute Bundesstraße 210 sehr gut mit Emden verbunden. Trotz ländlicher Idylle ist das Autobahnnetz bestens erreichbar: Die A 31, eine wichtige Nord-Süd-Achse, verläuft in unmittelbarer Nähe. Der öffentliche Nahverkehr verbindet Visquard mit den umliegenden Ortschaften sowie mit Emden, wo sich der nächste Bahnhof befindet. Radfahrer und Wanderer profitieren von einem hervorragend ausgebauten Wegenetz durch die Marschlandschaft und entlang traditioneller Wasserläufe. Über das Greetsieler Tief besteht zudem Anschluss an ein weitläufiges Wasserwegenetz, das auch Paddler und Wasserwanderer schätzen.

Touristisch ist die Lage ausgesprochen attraktiv: Die ostfriesische Nordseeküste mit dem UNESCO-Weltnaturerbe Wattenmeer, die Krummhörner Leuchttürme, das historische Fischerstädtchen Greetsiel sowie ausgedehnte Natur- und Vogelschutzgebiete liegen in unmittelbarer Nähe. Damit verbindet Visquard die Vorzüge eines ruhigen, traditionsreichen Dorfes mit der Nähe zu den wichtigsten Ausflugs- und Urlaubsregionen Ostfrieslands.
Lade Orte in der Umgebung

Sonstiges

Gerne vermitteln wir Ihnen über unseren unabhängigen Finanzdienstleister ein günstiges und auf Sie individuell angepasstes Finanzierungsangebot.

Unser Netzwerk aus Handwerksfirmen, Raumausstattern und Versicherern steht Ihnen auch nach dem Kauf zur Seite – über unseren kostenlosen After-Sales-Service.

Sie interessieren sich für einen Erwerb als Kapitalanlage? Auch hierbei unterstützen wir Sie gerne – inklusive Vermietungsservice und Objektverwaltung.

Unser RE/MAX-Servicepartner übernimmt auf Wunsch die Haus- und Gartenpflege – saisonal oder ganzjährig. Dies beinhaltet unter anderem Objektreinigung, Gartenpflege, Winterdienst und Ferienvermietungsservice.

Sie kennen jemand, der ein Haus, Wohnung oder Gewerbefläche verkaufen oder vermieten möchte? Dann empfehlen Sie mich gerne weiter oder kontaktieren mich direkt und verdienen sich eine attraktive Vermittlungsprovision bei erfolgreicher Vermittlung/Verkauf!

Für weitere Informationen steht Ihnen Herr Martin Stenzel gerne telefonisch und per E-Mail zur Verfügung.

Mit Leidenschaft für unsere Kunden und Heimat!

Bitte beachten Sie auch unsere Allgemeinen Geschäftsbedingungen, sowie die Informationen zum gesetzlichen Widerruf. Beides finden Sie auch unter www.remax-krummhoern.de

Hinweis:
Die bereitgestellten Objektinformationen, Unterlagen und Pläne stammen vom Verkäufer bzw. Vermieter. Eine Haftung für deren Richtigkeit und Vollständigkeit kann daher nicht übernommen werden. Alle Angebote sind freibleibend und vorbehaltlich Irrtümern, Zwischenverkauf, Zwischenvermietung oder anderweitiger Verwertung.

Anbieterdaten

Martin Stenzel

Ansprech­partner

Martin Stenzel

Ihre Nachricht an RE/MAX ImmobilienPartner Ostfriesland - Krummhörn

Ihr Ansprechpartner: Martin Stenzel

Mit (*) gekennzeichnete Felder sind Pflichtangaben.