!!!! VERKAUFT !!! ++Einziehen und wohlfühlen++ Familientraum in Sackgassenlage

Eckdaten

 Zimmer
 Wohnfl.
 Grundst.
Kaufpreis
 Zimmer
 Wohnfl.
 Grundst.

Kaufpreis

Basisdaten

Objektnummer
Immopark ID
IP-305498
Objekt ID
1088-32-CH
Adresse
Ort
26529 Wirdum
Fakten und Zahlen
Haustyp
Einfamilien­haus
Vermarktungsart
Kauf
Nutzungsart
wohnen
Verkaufsstatus
offen
Baujahr
1995
Kerndaten
Wohnfläche
150 m2
Zimmer
5.0
Schlafzimmer
4.0
Badezimmer
2.0
Nutzfläche
43 m2
Grundstücksfläche
805 m2
Anzahl Stellplätze (gesamt)
4.0
Bauweise / Substanz
Objektzustand
gepflegt
Etagenanzahl der Immobilie
1

Preisdaten

Preis
Kaufpreis
279.000 €
Zus. Preis Info
Der Käufer zahlt im Erfolgsfall an das RE/MAX Büro Krummhörn eine Käuferprovision in Höhe von 3,57 % inkl. 19% MwSt. Die Provision errechnet sich aus dem beurkundeten Kaufpreis.
Courtage
Käufercourtage
3,57 % inkl. 19% MwSt
inkl. MwSt.

Merkmale

Zimmer und Bereiche
Schlaf­zimmer
Stellplätze
Anzahl Stellplätze (gesamt)
4.0
Freiplatz
Anzahl
3.0
Garage
Anzahl
1.0

Energie

Energieausweis
Typ
Verbrauchs­ausweis
EnEV
ab 01.05.2014 (gemäß EnEV 2014)
Energieausweis gültig bis
2031-10-15
Energie­verbrauchs­kennwert gemessen in kWh/(m²a)
158.80

A+ABCDEFGH

wesentlicher Energieträger
Gas
Energieeffizienz­klasse
E
Baujahr lt. Energieausweis
1995
Gebäudeart lt. Energieausweis
Wohngebäude
Heizung
Zentral­heizung
Befeuerungsart
Gas

Umgebung

Es wurden keine Daten angegeben.

Objektbeschreibung

Ihr neues Zuhause – Einziehen & Wohlfühlen!

Dieses gepflegte Einfamilienhaus mit separater Einliegerwohnung wurde 1995 in massiver Bauweise errichtet und bietet auf einem großzügigen 805 m² Eigentumsgrundstück viel Platz für Ihre individuellen Wohnwünsche. Dank der durchdachten Raumaufteilung und der guten Ausstattung ist es ideal für Familien, Mehrgenerationenwohnen oder eine Kombination aus Wohnen und Arbeiten.

Der Südwest-Garten lädt mit einer überdachten Terrasse, einer Blockhütte und einer angrenzenden Feuerstelle zum Entspannen ein. Ein pflegeleichter Kunststoffzaun vorne an der Immobilie, trennt die Grenze am Ende einer ruhigen Sackgasse.

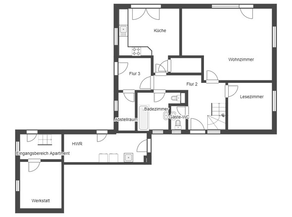
Im Erdgeschoss erwartet Sie ein großzügiges, gefliestes Wohnzimmer mit Fußbodenerwärmung und direktem Zugang zur Terrasse. Auch die Küche sowie beide Bäder sind mit Fußbodenerwärmung ausgestattet. Das kleine Schlafzimmer und das Büro im Erdgeschoss verfügen über einen hochwertigen Akazienparkettboden, ebenso wie der Flur und ein Zimmer im Obergeschoss.

Die helle Küche bietet viel Platz und verfügt über eine angrenzende Speisekammer. Ein Gäste-WC, eine Diele, ein Wannenbad mit WC sowie ein Abstellraum mit den Hausanschlüssen komplettieren das Erdgeschoss.

Im Obergeschoss befinden sich drei weitere Zimmer sowie ein Tageslichtbad mit Dusche und Badewanne. Ein zusätzlicher Raum mit WC und einem separaten Bereich für die Leasingtherme rundet das Platzangebot ab. Der Dachboden, erreichbar über eine Bodentreppe, bietet zusätzlichen Stauraum.

Nutzen Sie diese Gelegenheit und machen Sie dieses Haus zu Ihrem neuen Zuhause!

Ausstattung

- Sprossenfenster aus dem Baujahr mit Außenrollläden – im Wohnzimmer elektrisch zur Terrasse
- Dachfenster mit elektrischen Außenrollläden
- Glasfaseranschluss im kleinen Schlafzimmer/Büro
- Geflieste Garage mit angrenzendem Hauswirtschaftsraum inkl. erhöhtem Bereich für Waschmaschine & Trockner sowie direktem Gartenzugang
- Der hintere Teil der Garage ist mit einer kleinen Werkstatt und 16A-Anschluss ausgestattet.
- Über der Garage befindet sich eine ausgebaute Einliegerwohnung (nur zur privaten Nutzung)
- Die Therme wurde 2016 geleast und eine vorzeitige Ablösung ist auf Wunsch möglich.

Lage

Wirdum ist ein idyllisches Warfendorf in der Samtgemeinde Brookmerland, nahe Emden und Marienhafe. Geprägt von historischer Architektur, weiter Marschlandschaft und einem direkten Zugang zum ostfriesischen Wasserwegenetz, bietet der Ort eine hohe Lebensqualität in ruhiger, naturnaher Umgebung.

Dank guter Verkehrsanbindung sind Einkaufsmöglichkeiten, Schulen und medizinische Versorgung schnell erreichbar. Die historische Kirche und die Reste der ehemaligen Wasserburg zeugen von Wirdums reicher Vergangenheit. Ein idealer Wohnort für Ruhesuchende und Naturfreunde.
Lade Orte in der Umgebung

Sonstiges

Für weitere Informationen steht Ihnen Herr Christian Herlyn gerne telefonisch und per E-Mail zur Verfügung.

Gerne vermitteln wir Ihnen über unseren unabhängigen Finanzdienstleister ein günstiges und auf Sie individuell angepasstes Finanzierungsangebot.

Unsere Spezialisten für alle Bereiche rund ums Haus stehen Ihnen gerne zur Verfügung. Ob Handwerksfirmen, Raumausstatter oder Versicherer - wir lassen Sie auch nach dem Kauf nicht allein und bieten Ihnen unseren kostenlosen "After-Sales-Service" an.

Sie interessieren sich für einen Erwerb als Kapitalanlage? Auch hier stellen wir Ihnen unseren Vermietungsservice zur Verfügung und übernehmen außerdem gerne für Sie die Verwaltung Ihrer neuen Immobilie.

Unser RE/MAX Servicepartner kümmert sich auf Wunsch auch um Haus- und Gartenpflege, ganz gleich ob saisonbedingt oder ganzjährig. Dies umfasst nach Absprache alle anfallenden Dienstleistungen, wie etwa Objektreinigung, Gartengestaltung, Winterdienst und Ferienvermietungsservice.

Mit dem Exposé erhalten Sie Grundrisse, sowie einen Link zu einem 360° Rundgang in 3D. So können Sie die Immobilie virtuell betreten und sich weitere Eindrücke vor der richtigen Besichtigung einholen.

Bitte beachten Sie auch unsere Allgemeinen Geschäftsbedingungen, sowie die Informationen zum gesetzlichen Widerruf. Beides finden Sie auch unter www.remax-krummhoern.de

Mit Leidenschaft für unsere Heimat!

Anbieterdaten

Christian Herlyn

Ansprech­partner

Christian Herlyn

Ihre Nachricht an RE/MAX ImmobilienPartner Ostfriesland - Krummhörn

Ihr Ansprechpartner: Christian Herlyn

Mit (*) gekennzeichnete Felder sind Pflichtangaben.