Vermietete Kapitalanlage Mannheim Neckarstadt-West

Eckdaten

 Zimmer
 Wohnfl.
 Grundst.
Kaufpreis
 Zimmer
 Wohnfl.
Grundst.

Kaufpreis

Basisdaten

Objektnummer
Immopark ID
IP-305898
Objekt ID
1111-3248-AA
Adresse
Ort
68169 Mannheim
Fakten und Zahlen
Wohnungstyp
Etage
Vermarktungsart
Kauf
Nutzungsart
wohnen
Verkaufsstatus
offen
Baujahr
1961
Kerndaten
Wohnfläche
31 m2
Zimmer
1.0
Schlafzimmer
1.0
Badezimmer
1.0
Bauweise / Substanz
Objektzustand
gepflegt
Etagenanzahl der Immobilie
3

Preisdaten

Preis
Kaufpreis
90.000 €
Weitere Kosten
Hausgeld
138 €
Courtage
Käufercourtage
3,57%

Merkmale

Zimmer und Bereiche
Voll unterkellert
Schlaf­zimmer

Energie

Energieausweis
Typ
Verbrauchs­ausweis
EnEV
ab 01.05.2014 (gemäß EnEV 2014)
Energieausweis gültig bis
2028-07-26
Energie­verbrauchs­kennwert gemessen in kWh/(m²a)
84.80

A+ABCDEFGH

wesentlicher Energieträger
Gas
Energieeffizienz­klasse
C
Baujahr lt. Energieausweis
1961
Gebäudeart lt. Energieausweis
Wohngebäude
Heizung
Zentral­heizung
Befeuerungsart
Gas

Umgebung

Es wurden keine Daten angegeben.

Objektbeschreibung

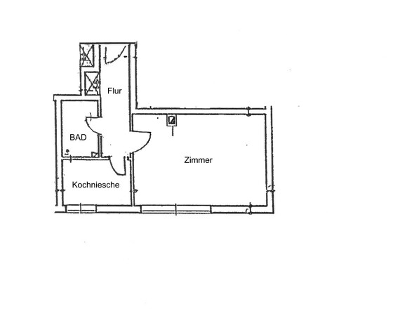
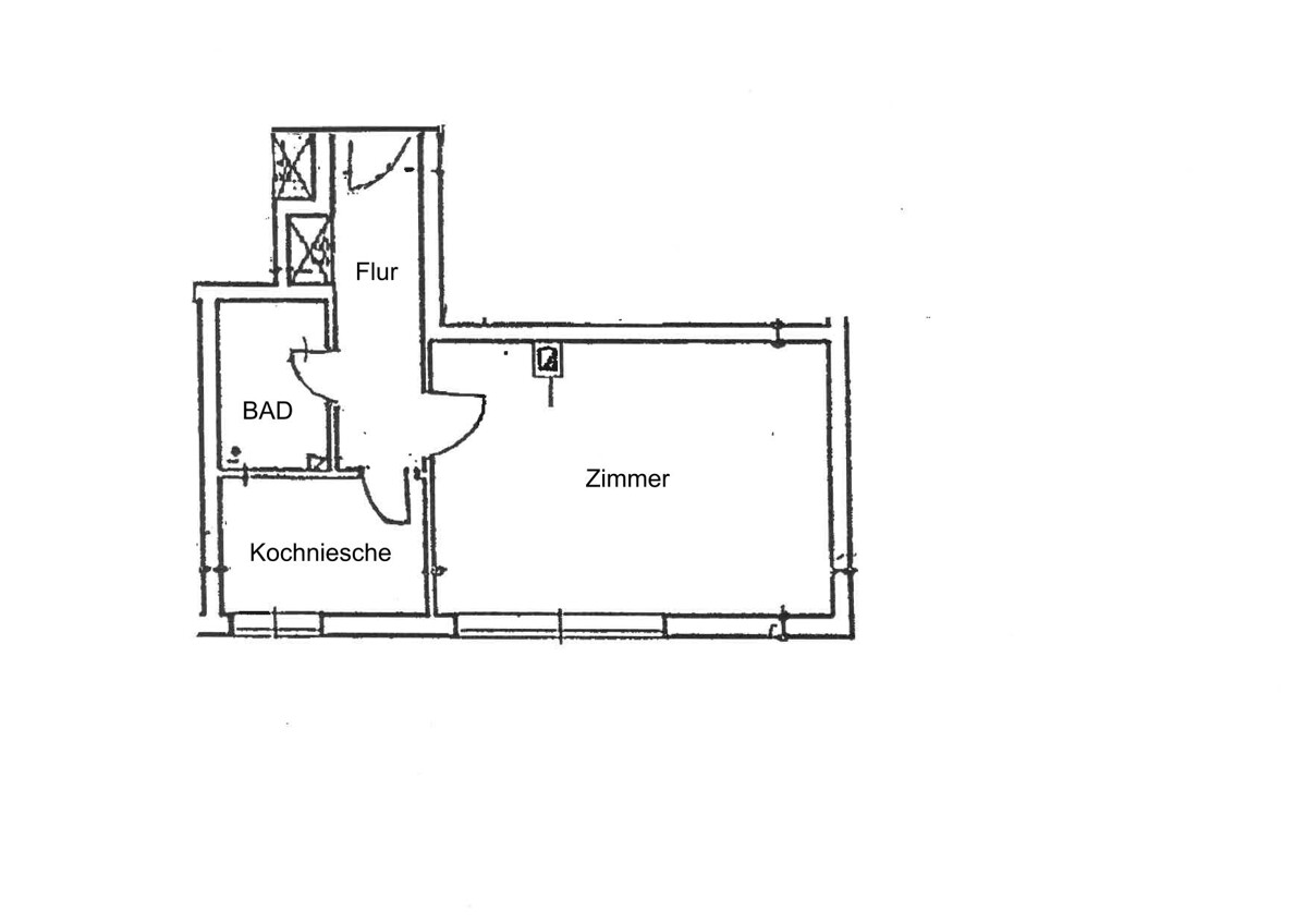
Diese charmante Etagenwohnung bietet auf 31 m² eine kompakte und gut durchdachte Raumaufteilung. Der Eingangsbereich führt direkt in den Flur, von dem aus alle Räume zugänglich sind. Das großzügige Zimmer bietet ausreichend Platz für Wohn- und Schlafbereich. Die angrenzende Kochnische ist funktional gestaltet und ermöglicht effizientes Kochen auf kleinem Raum.

Das Badezimmer ist praktisch angelegt und bietet alle notwendigen Annehmlichkeiten. Ein zusätzlicher Pluspunkt ist der vorhandene Keller, der zusätzlichen Stauraum bietet.

Diese Wohnung eignet sich ideal für Investoren, die eine stabile Vermietbarkeit und ein gutes Wertsteigerungspotenzial suchen.

Aktuell ist die Wohnung vermietet und die Kaltmiete beträgt 240€ im Monat.

Ausstattung

- 1 Zimmer/Küche/Bad
- Keller
- 31 m² Wohnfläche
- Vermietet 240€ mntl. Kaltmiete

Lage

Die Immobilie befindet sich in Mannheim-Neckarstadt-West, einem lebendigen Stadtteil mit einer hervorragenden Infrastruktur. Die Anbindung an den öffentlichen Nahverkehr ist optimal, mit einer Straßenbahnhaltestelle in nur etwa 140 Metern Entfernung.

Für den täglichen Bedarf stehen mehrere Supermärkte in der Nähe zur Verfügung, darunter ein PENNY-Markt in ca. 350 Metern Entfernung. Auch die medizinische Versorgung ist durch nahegelegene Arztpraxen und Kliniken gesichert. Die Gemeinschaftspraxis Weingärtner und Neumann ist nur etwa 80 Meter entfernt.

Die Umgebung bietet eine Vielzahl an Freizeitmöglichkeiten. Parks und Grünflächen sind in der Nähe, ideal für Erholung und sportliche Aktivitäten.

Für Investoren bietet die Lage ein attraktives Potenzial.
Lade Orte in der Umgebung

Sonstiges

Angaben nach EnEV 2014: Verbrauchsausweis/ BJ Haus 1961 / BJ Anlage 1998 / Energieträger Gas Zentral/ Effizienzklasse C/ Wert 84,7 kWh/(m²a), gültig bis 26.07.2028

Anbieterdaten

Anela Adzemovic

Ansprech­partner

Anela Adzemovic

Ihre Nachricht an RE/MAX Classic Ludwigshafen - N. H. Immobilien Vertriebs GmbH

Ihr Ansprechpartner: Anela Adzemovic

Mit (*) gekennzeichnete Felder sind Pflichtangaben.