Viel Platz, viele Möglichkeiten – Einfamilienhaus mit PV und Einliegeroption

Eckdaten

 Zimmer
 Wohnfl.
 Grundst.
Kaufpreis
Zimmer
 Wohnfl.
 Grundst.

Kaufpreis

Basisdaten

Objektnummer
Immopark ID
IP-313888
Objekt ID
2026/243
Adresse
Ort
32139 Spenge
Fakten und Zahlen
Vermarktungsart
Kauf
Nutzungsart
wohnen
Baujahr
1983
Kerndaten
Wohnfläche
189 m2
Schlafzimmer
4.0
Badezimmer
2.0
Grundstücksfläche
700 m2
Bauweise / Substanz
Objektzustand
gepflegt
Letzte Renovierung
2021
Verfügbarkeit
Verfügbar ab
nach Vereinbarung

Preisdaten

Preis
Kaufpreis
390.000 €
Courtage
provisionspflichtig
Käufercourtage
2,38 % inkl. ges. MwSt

Merkmale

Zimmer und Bereiche
Voll unterkellert
Anzahl (Balkone)
1.0
Schlaf­zimmer
Ausstattung und Technik
Qualität der Ausstattung
standard
Fliesen­boden
Lami­nat
Parkett­boden
Sanitäre Einrichtung
Fenster
Dusche
Stellplätze
Freiplatz
Garage

Energie

Energieausweis
wesentlicher Energieträger
Gas
Gebäudeart lt. Energieausweis
Wohngebäude
Heizung
Zentral­heizung
Befeuerungsart
Gas

Umgebung

Es wurden keine Daten angegeben.

Objektbeschreibung

Dieses freistehende Einfamilienhaus aus dem Baujahr 1983 (Holzständerbauweise, Fa. Streif) überzeugt durch eine klare Grundrissstruktur, großzügige Raumverhältnisse und eine vielseitige Nutzbarkeit. Das ca. 700 m² große Grundstück liegt in zentraler und zugleich angenehm ruhiger Wohnlage von Spenge und bietet ein solides Gesamtpaket für Familien, Mehrgenerationenwohnen oder Wohnen mit zusätzlichem Platzbedarf.

Der Zugang zum Haus erfolgt über das Erdgeschoss. Vom Eingangsbereich gelangt man in einen zentralen Flur, der als funktionales Bindeglied dieser Ebene dient. Von hier aus sind das Gäste-WC, der Hausarbeitsraum sowie der Wohn- und Essbereich mit angrenzender Küche direkt erreichbar.

Zur linken Seite öffnet sich das großzügige Wohnzimmer mit klaren Raumzuschnitten und guter Belichtung. Der Raum bietet ausreichend Platz für eine klassische Wohnlandschaft und geht fließend in den Essbereich über. Die Essdiele bildet den Mittelpunkt des Erdgeschosses und ermöglicht den direkten Zugang zur überdachten Terrasse. Von hier aus erschließt sich der gepflegte Garten mit weiteren Terrassenflächen sowie einem Gartenhaus – ein stimmiger Übergang zwischen Innen- und Außenbereich.

Die Küche ist separat angeordnet und funktional dimensioniert, sodass kurze Wege und eine alltagstaugliche Nutzung gewährleistet sind.

Ergänzt wird das Erdgeschoss durch einen klar abgetrennten Privatbereich mit Tageslichtbad, Schlafzimmer und Kinderzimmer. Dieser Bereich ist über einen eigenen kleinen Vorflur vom Wohnbereich getrennt und eignet sich dadurch ideal als ruhiger Rückzugsort, auch bei Besuch.

Ein Gäste-WC sowie ein Hausarbeitsraum mit zusätzlichen Abstell- und Nutzflächen komplettieren diese Ebene. Die Raumaufteilung ist insgesamt übersichtlich, logisch und praxisnah gestaltet.

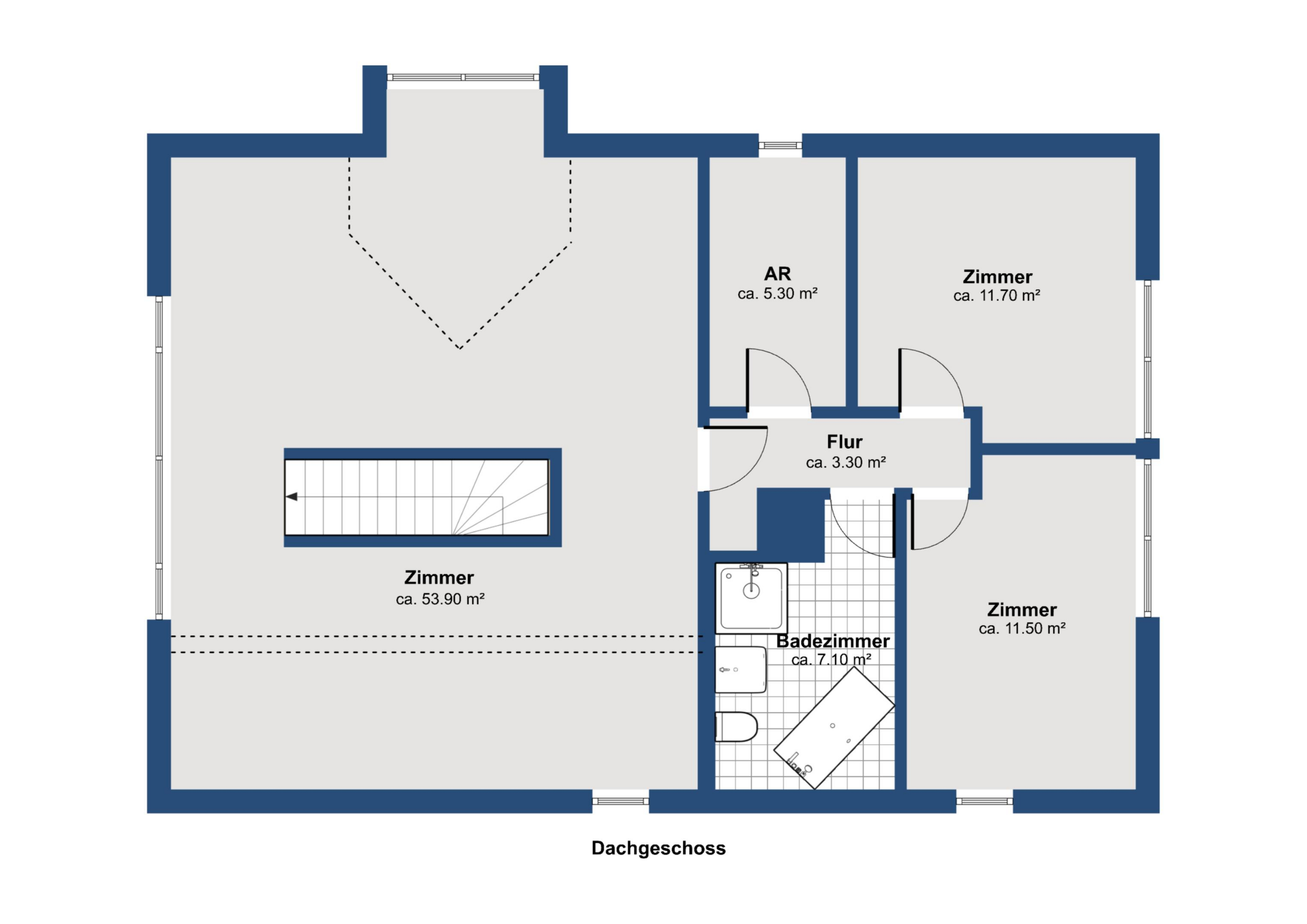
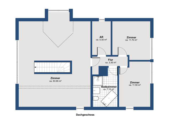
Über das zentrale Treppenhaus gelangt man in das Obergeschoss. Hier steht ein großzügiger Wohn- und Essbereich mit offener Küche zur Verfügung, der sich aufgrund seiner Größe und Offenheit flexibel nutzen lässt, beispielsweise als eigenständiger Wohnbereich, für Mehrgenerationenwohnen oder als kombinierter Wohn- und Arbeitsbereich.

Darüber hinaus befinden sich im Obergeschoss zwei Schlafzimmer, ein Tageslichtbad sowie ein kleines Büro. Von hier aus besteht auch Zugang zum ausgebauten Spitzboden. Dieser erweitert die Nutzfläche zusätzlich und bietet Raum für individuelle Nutzungskonzepte, etwa als Arbeitszimmer, Hobbyraum oder Gästezimmer.

Das Kellergeschoss ist teilweise ausgebaut und über das Treppenhaus erreichbar. Hier befinden sich klassische Nutz- und Abstellräume sowie der Heizungsraum mit moderner Gas-Brennwerttechnik. Die Aufteilung ist funktional und gut nutzbar.

Abgerundet wird das Angebot durch eine Garage sowie zwei zusätzliche Stellplätze auf dem Grundstück.

Die Immobilie wurde laufend instand gehalten und in wesentlichen Bereichen modernisiert. Das Dach wurde 1994 vollständig erneuert, in diesem Zuge die Dachneigung vergrößert, um zusätzliche Wohnfläche im Obergeschoss zu schaffen, sowie fachgerecht gedämmt. Die Badezimmer wurden im Jahr 2006 modernisiert. Der letzte Außenanstrich inklusive der Holzgiebel erfolgte 2010.

Die Gas-Brennwertheizung wurde 2020 erneuert. Zusätzlich ist eine Photovoltaikanlage mit ca. 9,5 kWp inklusive Speicher installiert (Baujahr 2021). Insgesamt ergibt sich damit eine zeitgemäße technische Basis mit langfristigem Nutzungspotenzial.

Ausstattung

+++ Freistehendes Einfamilienhaus
+++ Holzständerbauweise (Fa. Streif)
+++ Teilunterkellert mit funktionalen Abstell- und Technikräumen
+++ Zwei Badezimmer sowie zusätzliches Gäste-WC
+++ Großzügiger Wohn- und Essbereich mit Terrassenzugang
+++ Überdachte Terrasse und gepflegter Garten mit weiteren Terrassenflächen
+++ Garage sowie zwei zusätzliche Stellplätze
+++ Gas-Brennwertheizung, erneuert im Dezember 2020
+++ Photovoltaikanlage mit ca. 9,5 kWp inkl. Speicher (Baujahr 2021)
+++ Dach 1994 vollständig erneuert und isoliert
+++ Badezimmermodernisierung im Jahr 2006
+++ Außenanstrich inkl. Holzgiebel im Jahr 2010
+++ Überwiegend 2- bis 3-fach verglaste Fenster
+++ Rollläden im gesamten Haus, teilweise elektrisch
+++ Echtholz-Parkett im Wohnbereich
+++ Gartenhaus vorhanden

Lage

Stadt Spenge – ca. 15.000 Einwohner

Die charmante Stadt Spenge vereint moderne Wohnqualität mit einer perfekten Anbindung an die umliegenden Städte. Sie liegt verkehrsgünstig zwischen Bielefeld, Herford und Bünde, was eine schnelle Erreichbarkeit sowohl der Städte als auch der umliegenden Naturgebiete ermöglicht. In Spenge genießen Sie ein ruhiges, aber dennoch zentrales Leben. Die Stadt bietet eine hervorragende Infrastruktur: Ärzte, Apotheken, Dienstleister sowie Supermärkte wie REWE, ALDI und EDEKA sind bequem erreichbar. Für Freizeitaktivitäten sorgen zwei Freibäder, mehrere Sportplätze und über 70 aktive Vereine, die ein breites Angebot an Sport- und Freizeitmöglichkeiten bieten. Ein idealer Standort für alle, die das urbane Leben mit einem hohen Maß an Lebensqualität kombinieren möchten.
Lade Orte in der Umgebung

Sonstiges

Alle Angaben in diesem Exposé erfolgen ohne Gewähr und basieren ausschließlich auf den Informationen, die uns von unserem Auftraggeber zur Verfügung gestellt wurden. Für die Vollständigkeit, Richtigkeit und Aktualität dieser Angaben übernehmen wir keine Haftung. Die Weitergabe dieses Exposés an Dritte ohne unsere ausdrückliche Zustimmung kann zu Provisions- und/oder Schadensersatzansprüchen führen. Die Flächenberechnung (Nutz- bzw. Wohnfläche) wurde den Bauunterlagen entnommen und überschlägig anhand der Bauzeichnungen geschätzt. Abweichungen sind daher möglich, ein Aufmaß wurde nicht durchgeführt. Irrtümer und Zwischenverkauf bleiben vorbehalten.

Anbieterdaten

Linda Janz

Ansprech­partner

Linda Janz

Ihre Nachricht an PVF Immobilien GmbH

Ihr Ansprechpartner: Linda Janz

Mit (*) gekennzeichnete Felder sind Pflichtangaben.