Voll klimatisiertes Büro im 5.OG mit 8 TG-Stellplätzen

Eckdaten

 Zimmer
 Wohnfl.
 Grundst.
Kaltmiete
 Zimmer
Wohnfl.
Grundst.

Kaltmiete

Basisdaten

Objektnummer
Immopark ID
IP-301690
Objekt ID
FALC-DH-75638
Adresse
Ort
76135 Karlsruhe
Fakten und Zahlen
Immobilientyp
Büro­fläche
Vermarktungsart
Miete / Pacht
Nutzungsart
Gewerbliche Nutzung
Baujahr
1987
Kerndaten
Zimmer
12.0
Badezimmer
2.0
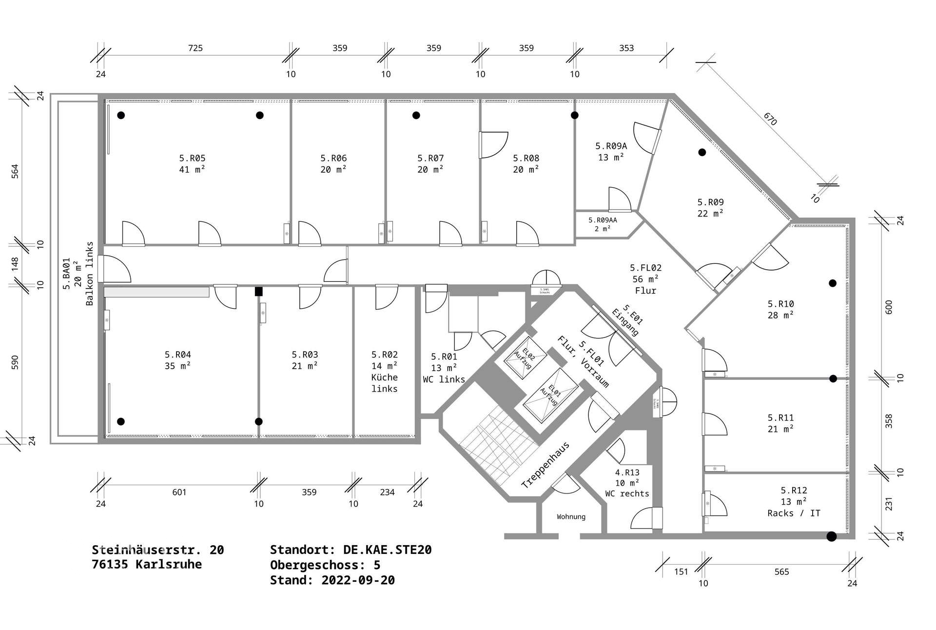
Bürofläche
361 m2
Bauweise / Substanz
Letzte Renovierung
2024
Etagenanzahl der Immobilie
5
Verfügbarkeit
Verfügbar ab
sofort

Preisdaten

Preis
Kaltmiete
4.693 €
Nebenkosten
900 €
Warmmiete
6.073 €
Mietpreis pro Quadratmeter
13 €
Heizkosten enthalten
Courtage
provisionspflichtig
Käufercourtage
2,38 Monatskaltmieten inkl. 19% MwSt.

Merkmale

Zimmer und Bereiche
Anzahl (Balkone)
1.0
Abstell­raum
Ausstattung und Technik
Einbau­küche
Teppich­boden
Sanitäre Einrichtung
Gäste WC
Gewerbe Merkmale
Bürofläche
361 m2
Stellplätze
Anzahl Stellplätze (gesamt)
8.0
Tiefgarage
Anzahl
8.0
Mietpreis
60 €

Energie

Energieausweis
Energieausweis ist nicht notwendig nach EnEV
wesentlicher Energieträger
Fernwärme
Gebäudeart lt. Energieausweis
Nicht Wohngebäude
Befeuerungsart
Fernwärme

Umgebung

Es wurden keine Daten angegeben.

Objektbeschreibung

Beim Betreten dieses großzügigen Bürogebäudes aus dem Jahr 1987 gelangen Sie zunächst in einen einladenden Eingangsbereich, der mit einer modernen Liftanlage ausgestattet ist. Über den Aufzug gelangen Sie in die 5. und höchste Etage im Gebäude. Der großzügige Empfangsbereich führt Sie zu den insgesamt zehn Büroräumen zuzüglich Küche und Serverraum.

Die Räume sind hell und bieten durch große Fensterfronten viel Tageslicht und einen tollen Ausblick, was eine angenehme Arbeitsatmosphäre schafft. Das gesamte Büro wurde 2023-24 voll renoviert und mit modernster Netzwerktechnik ausgestattet, zudem sind alle Räume voll klimatisiert.

Die Büros sind funktional geschnitten und bieten ausreichend Platz für individuelle Gestaltungsmöglichkeiten. Ein besonderes Highlight ist die Dachterrasse, die eine kleine Auszeit im Freien ermöglicht. Die Küche ist modern ausgestattet und bietet genügend Raum für Pausen und Verpflegung. Zusätzlich verfügt das Objekt über zwei Toilettenanlagen von denen eine mit Dusche ausgestattet ist und so den Komfort für Mitarbeiter und Besucher erhöht.

Die Immobilie ist in einem sehr gepflegten Zustand und bietet mit einer Warmmiete von insgesamt 6.078,- € pro Monat, inclusive der acht Tiefgaragenstellplätze, ein attraktives Preis-Leistungs-Verhältnis. Die zentrale Lage und die gute Anbindung an den öffentlichen Nahverkehr machen dieses Büro zu einem idealen Standort für Ihr Unternehmen.

Ausstattung

+ voll klimatisierte Räume
+ 2023-24 renoviert
+ elektrische Jalousien
+ großzügiger Personalraum mit neuwertiger Küche
+ 2 Toilettenanlagen, eine davon mit Dusche
+ Heizung Fernwärme
+ 8 Tiefgaragenstellplätze / je 60,- € im Monat
+ Kaltmiete 4.693,- / Vorauszahlung Nebenkosten 900,- €
+ Warmmiete 6.073,- € im Monat

Technische Ausstattung:
+ Durchgängige elektronische Schließanlage, Zugänge zu einzelnen Räumen individuell programmierbar
+ Energieeffiziente Deckenbeleuchtung mit LED-Panels
+ 19-Zoll-Kabelrack, CAT6A-Sternverkabelung und separater Serverraum
+ Durchgängige CAT6A-Datenverkabelung (2–6 Datendosen pro Raum, Dosen in Zwischendecke; ideal auch für optimalesWLAN und PoE)
+ Glasfaseranschluss im Haus, Inhouse-Verkabelung bis ins Rack vorhanden (Glasfaserinternet direkt buchbar)
+ Weitere Internetoptionen: VDSL und Coax-Kabel (Vodafone) zusätzlich verfügbar, Coax-Anschluss bis ins Rack vorhanden

Lage

Die Immobilie befindet sich in einer strategisch günstigen Lage in der Karlsruher Süd-Weststadt direkt neben dem ADAC-Gebäude, die sich hervorragend für geschäftliche Aktivitäten eignet. Die Umgebung bietet eine Vielzahl von Annehmlichkeiten, die den Arbeitsalltag erleichtern und bereichern.

Für die Anbindung an den öffentlichen Nahverkehr ist bestens gesorgt. Die nächste Tram-Station ist nur ca. 5 Gehminuten entfernt, was eine schnelle und unkomplizierte Verbindung in die Innenstadt und zu anderen wichtigen Knotenpunkten ermöglicht. Auch Bushaltestellen sind in unmittelbarer Nähe, sodass Ihre Mitarbeiter und Kunden bequem und flexibel anreisen können.

Die Nähe zur Autobahn ist ein weiterer Vorteil dieser Lage. In etwa 5 Autominuten erreichen Sie die nächste Autobahnauffahrt, was eine zügige Anbindung an das überregionale Straßennetz sicherstellt. Der Flughafen Karlsruhe/Baden-Baden ist in ca. 40 Minuten erreichbar, was für Geschäftsreisende von großem Vorteil ist.

In der direkten Umgebung finden Sie zahlreiche Restaurants, die sich ideal für Geschäftsessen oder eine entspannte Mittagspause eignen. Das Glashaus und das Taumi Restaurant - Asia Fusion sind nur wenige Gehminuten entfernt und bieten eine abwechslungsreiche Küche. Für den täglichen Bedarf stehen mehrere Supermärkte in der Nähe zur Verfügung. Ein Lidl-Markt ist in ca. 5 Minuten zu Fuß erreichbar, sodass Einkäufe schnell und unkompliziert erledigt werden können.

Die Umgebung bietet zudem eine hohe Dichte an Fitnessstudios, was die Möglichkeit bietet, den Arbeitstag mit einem sportlichen Ausgleich zu verbinden. Das Fit-in Studio ist nur wenige Minuten entfernt und bietet moderne Trainingsmöglichkeiten. Diese Lage kombiniert eine hervorragende Erreichbarkeit mit einer Vielzahl von Annehmlichkeiten, die den Standort für geschäftliche Aktivitäten besonders attraktiv machen.
Lade Orte in der Umgebung

Sonstiges

Eine Besichtigung lohnt sich auf jeden Fall und ist nach persönlicher Absprache möglich.

Die Objektbeschreibung beruht ganz oder zum Teil auf Angaben des Eigentümers und eigenen Erhebungen. Für die Richtigkeit oder Vollständigkeit übernehmen wir keine Gewähr.

Ich freue mich über Ihre Kontaktaufnahme.
Mobil: 0176 - 211 972 83
Tel.: 0721 - 276 64 05
E-mail: dieter.haselmayer@falcimmo.de

FALC Immobilien
Dieter Haselmayer
Herrenstr. 31-33
76133 Karlsruhe

Sie denken selbst über die Veräußerung Ihrer Immobilie nach oder möchten einfach nur wissen, was diese wert ist? Bei uns erhalten Sie kostenlos eine professionelle Wertermittlung ! Rufen Sie uns einfach an oder kontaktieren uns per E-mail !

Anbieterdaten

Dieter Haselmayer

Ansprech­partner

Dieter Haselmayer

Ihre Nachricht an FALC Immobilien Karlsdorf-Neuthard (Dieter Haselmayer)

Ihr Ansprechpartner: Dieter Haselmayer

Mit (*) gekennzeichnete Felder sind Pflichtangaben.