VON PRIVAT: Penthouse 2,5-Wohnung - möbliert, offene Küche, Aufzug, Keller, große Sonnenterrasse

Eckdaten

 Zimmer
 Wohnfl.
 Grundst.
Kaufpreis
 Zimmer
 Wohnfl.
Grundst.

Kaufpreis

Basisdaten

Objektnummer
Immopark ID
IP-283428
Objekt ID
217550
Adresse
Ort
10315 Berlin
zus. Info
Wohngebiet
Fakten und Zahlen
Wohnungstyp
Pent­house
Vermarktungsart
Kauf
Nutzungsart
wohnen
Baujahr
2013
Kerndaten
Wohnfläche
75 m2
Zimmer
2.5
Schlafzimmer
1.0
Badezimmer
1.0
Nutzfläche
10 m2
Bauweise / Substanz
Neubau
Objektzustand
neuwertig
Bauweise
Massivhaus
Etagenanzahl der Immobilie
3
Lage im Gebäude
Etage
3
Verfügbarkeit
Verfügbar ab
Nach Vereinbarung

Preisdaten

Preis
Kaufpreis
529.000 €
Weitere Kosten
Hausgeld
303 €

Merkmale

Zimmer und Bereiche
Voll unterkellert
Ausrichtung
Ost
Anzahl (Terrassen)
1.0
Schlaf­zimmer
Fahrrad­raum
Abstell­raum
Ausstattung und Technik
Qualität der Ausstattung
gehoben
Offene Küche
Parkett­boden
UMTS
Rollä­den
Klima­anlage
Sanitäre Einrichtung
Dusche
Besondere Merkmale
rollstuhl­gerecht
barriere­frei
Garten
Garten­nutzung

Energie

Energieausweis
Typ
Bedarfs­ausweis
EnEV
ab 01.05.2014 (gemäß EnEV 2014)
Energieausweis gültig bis
17.12.2023
Endenergiebedarf gemessen in kWh/(m²a)
57

A+ABCDEFGH

wesentlicher Energieträger
Fernwärme
Baujahr lt. Energieausweis
2013
Gebäudeart lt. Energieausweis
Wohngebäude
Heizung
Fußboden­heizung
Befeuerungsart
Fernwärme

Umgebung

Es wurden keine Daten angegeben.

Objektbeschreibung

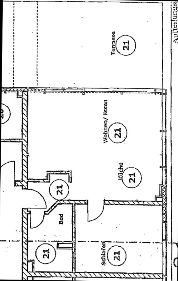
Entdecken Sie Ihr neues Zuhause – ein exklusives Penthouse, das Luxus und Komfort auf höchstem Niveau vereint! Diese stilvolle 2,5-Zimmer-Wohnung mit 72 m² Wohnfläche überzeugt durch eine erstklassige Ausstattung und eine durchdachte Raumaufteilung in einer ruhigen Wohnanlage mit sympathischen Nachbarn und eigenem Spielplatz.

Lichtdurchflutete Räume mit großen Fensterflächen bieten Ihnen einen freien Blick auf die Umgebung und lassen viel Tageslicht herein. Das durchgehend verlegte Parkett verleiht der Wohnung eine warme und einladende Atmosphäre. Die großzügige Terrasse lädt zum Entspannen ein und bietet Ihnen einen atemberaubenden Panoramablick, den Sie genießen können.

Das moderne Badezimmer wird Sie begeistern: Helle Fliesen und eine bodentiefe Dusche verwandeln es in Ihre persönliche Wellness-Oase. Hochwertige Möbel setzen elegante Akzente und machen diesen Raum zu einem echten Highlight.

Technologie-Liebhaber kommen voll auf ihre Kosten: Das fortschrittliche Smarthome-System ermöglicht die bequeme Steuerung der Fußbodenheizung und Außenjalousien. Ein integrierter Windwarner sorgt dafür, dass sich die Jalousien bei starkem Wind automatisch anpassen.

Die moderne Küchenzeile ist mit allen Annehmlichkeiten ausgestattet, inklusive einer integrierten Waschmaschine. Das Schlafzimmer bietet ausreichend Platz mit einem großen Bett und praktischen Einbauschränken. Im Wohnzimmer sorgt ein wandelbares Ledersofa für zusätzliche Flexibilität. Abgerundet wird das luxuriöse Ambiente durch ein SONOS Soundsystem in allen Räumen, einen Dyson Akku-Staubsauger, einen NEATO Saugroboter und einen 55 Zoll Samsung TV auf einem eleganten Designer-Stahlständer.

Ein Aufzug bringt Sie bequem zu Ihrem privaten Kellerraum mit Fenster, und das Smarthome-System erlaubt Ihnen die Steuerung der Fußbodenheizung und der Außenjalousien. Stilvolle Leuchten von LUCEPLAN setzen gekonnt Lichtakzente und schaffen eine stimmungsvolle Atmosphäre.

Neugierig geworden? Wir stehen Ihnen gerne für weitere Informationen oder zur Vereinbarung eines Besichtigungstermins zur Verfügung. Erleben Sie luxuriösen Wohnkomfort in einer der begehrtesten Lagen der Stadt. Verpassen Sie nicht diese einmalige Gelegenheit!

Ausstattung

Wohnkomfort auf höchstem Niveau

Diese exklusive 2,5-Zimmer-Penthouse-Wohnung lässt keine Wünsche offen. Auf 72 m² Wohnfläche erwartet Sie ein modernes und komfortables Wohnambiente. Dank der großen Fensterflächen genießen Sie viel Tageslicht und einen uneingeschränkten Blick auf die Umgebung. Das durchgehend verlegte Parkett sorgt für eine warme und einladende Atmosphäre.
Raum für Entspannung

Die Terrasse lädt zum Verweilen ein und bietet einen grandiosen Ausblick, den Sie ungestört genießen können. Ideal für Sonnenanbeter oder für entspannte Abende im Freien.
Badezimmer-Oase

Das hell geflieste Badezimmer verfügt über eine bodentiefe, ebenerdige Dusche und hochwertige Möbel, die den Raum in eine Wohlfühl-Oase verwandeln.
Smarthome

Die Wohnung ist mit einem fortschrittlichen Smarthome-System ausgestattet, über das sich Außenjalousien und Fußbodenheizung bequem steuern lassen. Zusätzlich sorgt ein Windwarner für die automatische Anpassung der Jalousien bei starkem Wind.
Zusatzleistungen

-Hochwertige Küchenzeile mit integrierter Waschmaschine und allen Extras
-Stilvoll möbliertes Schlafzimmer mit großem Bett und Einbauschränken
-Flexibles Wohnzimmer mit Ledersofa und hochwertigem Lattenrost, umwandelbar in ein Schlafsofa für zwei Personen
-SONOS Soundsystem in jedem Zimmer und Badezimmer, inklusive Subwoofer und Soundbar im Wohnzimmer
-Dyson Akku-Staubsauger und NEATO Saugroboter
-55 Zoll Samsung TV mit Designer Edelstrahlständer
-Hochwertige Leuchten von LUCEPLAN

Lage und Umfeld

Diese luxuriöse Wohnung liegt in einer ruhigen Wohnanlage mit netten Nachbarn und privatem Spielplatz - perfekt für Familien oder Personen, die Ruhe und Gemeinschaft schätzen.
Sonstiges

Aufzug im Gebäude
Abgeschlossener Keller mit Fenster
Fußbodenheizung, steuerbar über Smarthome

Lage

Willkommen in Lichtenberg, Berlin - Ihre neue Heimat in der Hauptstadt!

Suchen Sie nach einer zentralen, aber dennoch charmanten Gegend in Berlin? Dann ist Lichtenberg genau das Richtige für Sie! Dieser aufstrebende Stadtteil kombiniert das Beste aus beiden Welten und ist der perfekte Ort für Familien, Singles und Berufstätige.

Unschlagbare Anbindung:
Einer der größten Vorzüge von Lichtenberg ist die hervorragende Verkehrsanbindung. Mit mehreren S-Bahn-Stationen, darunter der zentrale Lichtenberger Bahnhof, sind Sie in nur wenigen Minuten mitten im Herzen Berlins. Pendler schätzen die schnellen und unkomplizierten Verbindungen zu wichtigen Knotenpunkten wie dem Alexanderplatz oder dem Ostkreuz.



Natur & Erholung:
Trotz der städtischen Lage bietet Lichtenberg zahlreiche Parks und Grünflächen. Ob für einen entspannten Spaziergang, ein Picknick oder Sport - hier findet jeder seinen Platz zum Abschalten.

Vielfältige Einkaufsmöglichkeiten:
Ob Supermärkte, Fachgeschäfte oder der Wochenmarkt – in Lichtenberg finden Sie alles, was Sie für den täglichen Bedarf benötigen, oft nur einen Steinwurf entfernt.

Kultur & Lifestyle:
Das vielfältige Kulturangebot von Kunstgalerien, Theatern bis zu urigen Kneipen und modernen Cafés sorgt für ein lebendiges und abwechslungsreiches Freizeitangebot.

Familienfreundlich:
Mit mehreren Schulen, Kindergärten und Spielplätzen bietet Lichtenberg ein ideales Umfeld für Familien.

Business & Co.:
Die Nähe zu verschiedenen Geschäftsvierteln und Co-Working-Spaces macht Lichtenberg auch für Berufstätige und Unternehmer interessant.

Lichtenberg hat für jeden etwas zu bieten. Entdecken Sie Ihr neues Zuhause in diesem vielseitigen und charmanten Stadtteil Berlins.
Lade Orte in der Umgebung

Anbieterdaten

Daniel Hikel

Ansprech­partner

Daniel Hikel

Ihre Nachricht an HIKEL HOMES - Daniel Hikel

Ihr Ansprechpartner: Daniel Hikel

Mit (*) gekennzeichnete Felder sind Pflichtangaben.