Wow was für eine TOP-Immobilie!!! DHH in Weil Haltingen! Garage, Photovoltaik, 5 kW-Batterie!

Eckdaten

 Zimmer
 Wohnfl.
 Grundst.
Kaufpreis
 Zimmer
 Wohnfl.
 Grundst.

Kaufpreis

Basisdaten

Objektnummer
Immopark ID
IP-302629
Objekt ID
1067-450-1-AM
Adresse
Ort
79576 Weil am Rhein
Fakten und Zahlen
Haustyp
Doppel­haus­hälfte
Vermarktungsart
Kauf
Nutzungsart
wohnen
Verkaufsstatus
reserviert
Baujahr
1993
Kerndaten
Wohnfläche
116 m2
Zimmer
5.0
Schlafzimmer
4.0
Badezimmer
2.0
separate WC
1.0
Gesamtfläche
151 m2
Nutzfläche
35 m2
Vermietbare Fläche
116 m2
Grundstücksfläche
179 m2
Anzahl Stellplätze (gesamt)
1.0
Bauweise / Substanz
Objektzustand
gepflegt
Einrichtungszustand
Teilweise möbliert
Wohneinheiten
1.0

Preisdaten

Preis
Kaufpreis
449.000 €
Courtage
provisionspflichtig
Käufercourtage
3,57 % inkl. gesetzl. MwSt. (19%)
inkl. MwSt.
Mieteinnahmen
Mieteinnahmen Soll
12.000 €
pro Jahr

Merkmale

Zimmer und Bereiche
Voll unterkellert
Anzahl (Terrassen)
1.0
Schlaf­zimmer
Wasch- / Trocken­raum
Ausstattung und Technik
Qualität der Ausstattung
standard
Sanitäre Einrichtung
Gäste WC
Stellplätze
Anzahl Stellplätze (gesamt)
1.0
Garage
Anzahl
1.0

Energie

Energieausweis
Typ
Verbrauchs­ausweis
EnEV
ab 01.05.2014 (gemäß EnEV 2014)
Energieausweis gültig bis
2033-03-29
Energie­verbrauchs­kennwert gemessen in kWh/(m²a)
64.00

A+ABCDEFGH

Energieeffizienz­klasse
C
Baujahr lt. Energieausweis
2023
Gebäudeart lt. Energieausweis
Wohngebäude
Heizung
Zentral­heizung
Befeuerungsart
Gas

Umgebung

Es wurden keine Daten angegeben.

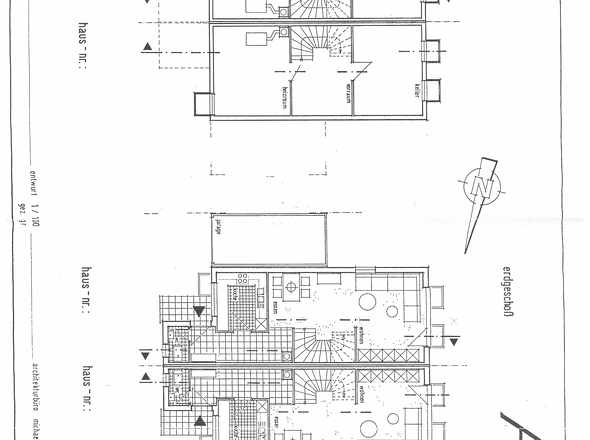
Objektbeschreibung

Moderne Doppelhaushälfte mit Photovoltaik & Garten in begehrter Lage von Haltingen

Diese Immobilie ist bereits reserviert, weitere spannende Objekte finden Sie unter:
www.remax.de/alexander-maier

Objekttyp: Doppelhaushälfte
Ort: 79576 Weil am Rhein – Haltingen
Baujahr: 1993
Zimmer: 5
Bäder: 2 + Gäste-WC
Wohnfläche: ca. 116 m²
Grundstück: ca. 179 m²
Besonderheiten: Photovoltaikanlage mit Speicher, moderner Standard, vermietet
Kaufpreis: 449.000,-€
Käuferprovision: 3,57 % inkl. MwSt.

Objektbeschreibung
Diese gepflegte und modernisierte Doppelhaushälfte in Weil am Rhein – Haltingen bietet alles, was eine zeitgemäße Immobilie auszeichnet: 5 großzügige Zimmer, zwei vollwertige Bäder, ein separates Gäste-WC sowie eine gepflegte Einbauküche, die keine Wünsche offenlässt.

Der offene Wohn- und Essbereich mit Zugang zur Terrasse und dem westlich ausgerichteten Garten schafft eine helle, freundliche Atmosphäre. Der Garten bietet Platz für Erholung und gemütliche Stunden im Freien.

Besonders hervorzuheben ist die 7 kW starke Photovoltaikanlage mit 5 kW Lithium-Ionen-Batteriespeicher, die für Energieeffizienz und eine nachhaltige Zukunft steht. Die Gas-Brennwertheizung wurde erst 2023 erneuert und sorgt in Kombination mit der PV-Anlage für niedrige Betriebskosten.

Das Haus ist voll unterkellert und verfügt über zusätzliche Nutzfläche. Eine Garage rundet das Angebot ab. Die Immobilie ist derzeit vermietet, was sie auch für Kapitalanleger attraktiv macht.

Ausstattung im Überblick
- 5 helle Zimmer auf mehreren Ebenen
- 2 Tageslichtbäder + Gäste-WC
- Moderne Einbauküche
- Terrasse, Balkon und Garten mit Westausrichtung
- Photovoltaikanlage (7 kW) mit Batteriespeicher (5 kW)
- Gas-Brennwertheizung (BJ 2023)
- Voll unterkellert
- Garage
- Vermietetes Objekt – solide Kapitalanlage

Lagebeschreibung: Haltingen – Lebensqualität im Dreiländereck
Haltingen ist ein beliebter Stadtteil von Weil am Rhein und besticht durch seine hervorragende Lage im Dreiländereck Deutschland–Frankreich–Schweiz. Die Nähe zu Basel macht den Standort besonders für Berufspendler attraktiv.

Der charmante Ortskern von Haltingen bietet Einkaufsmöglichkeiten, Bäckereien, Restaurants, Kindergärten, eine Grundschule sowie eine Bahnstation mit direkter Verbindung nach Basel und Lörrach. Die grüne Umgebung lädt zu Spaziergängen, Fahrradtouren und Erholung ein.

Dank der hervorragenden Anbindung an die A5 sowie den EuroAirport Basel-Mulhouse sind auch überregionale Ziele schnell erreichbar.

Sonstiges
Die Immobilie ist aktuell vermietet. Die Mietkonditionen stellen wir Ihnen auf Anfrage gerne zur Verfügung.

Interesse geweckt?
Gerne senden wir Ihnen ein ausführliches Exposé mit weiteren Unterlagen oder vereinbaren einen Besichtigungstermin. Wir freuen uns auf Ihre Kontaktaufnahme!

Kontakt:
Alexander Maier
RE/MAX Immobilien | Konstanz – Rheinfelden – Lörrach
+49 7621 560 81 62
Lade Orte in der Umgebung

Anbieterdaten

Alexander Maier

Ansprech­partner

Alexander Maier

Ihre Nachricht an RE/MAX Immobilienmakler Lörrach

Ihr Ansprechpartner: Alexander Maier

Mit (*) gekennzeichnete Felder sind Pflichtangaben.