Zur Eigennutzung! Wohnen & Arbeiten unter einem Dach in guter Citylage von Hilden
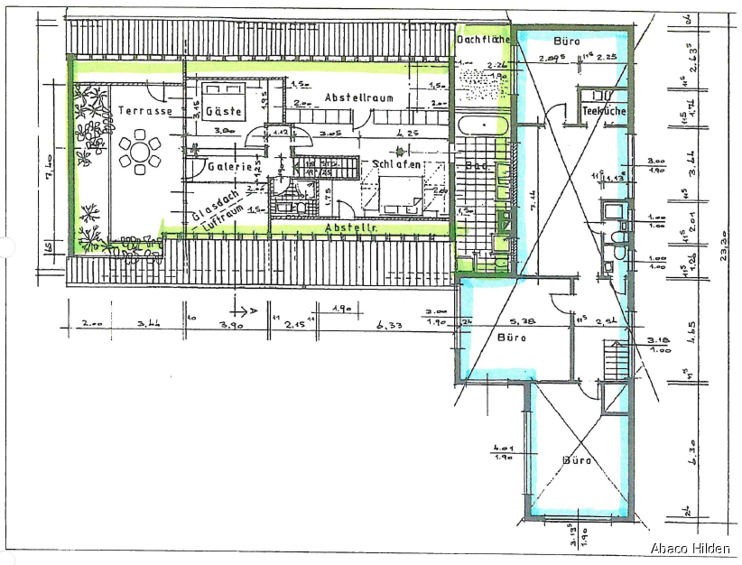
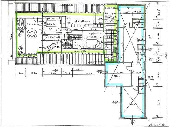
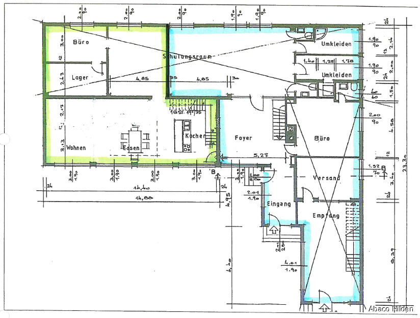
HaupteingangHofflächeParkflächeGaragenEG FoyerEG KücheEG SchulungEG Wohn- EsszimmerEG WohnzimmerEG WZ KaminOG Bad IOG Bad - WanneOG Bad - DuscheOG Bad SanitärOG Galerie GlasdachOG GästezimmerOG GästebadOG SchlafenOG TerrasseGrundriss EGGrundriss OG
Eckdaten
Zimmer
Wohnfl.
Grundst.
Kaufpreis
Zimmer
Wohnfl.
Grundst.
950000.0€ Kaufpreis
Basisdaten
Objektnummer
Immopark ID
IP-296771
Objekt ID
HHH1.JS.1287
Adresse
40721 Hilden
Ort
40721 Hilden
Fakten und Zahlen
Renditeobjekt Typ
Wohn- und Geschäftshäuser
Vermarktungsart
Kauf
Nutzungsart
wohnen
Verkaufsstatus
offen
Kerndaten
Wohnfläche
221 m2
Zimmer
11.0
Vermietbare Fläche
589 m2
Gesamtfläche
589 m2
Bauweise / Substanz
Objektzustand
gepflegt
Verfügbarkeit
Verfügbar ab
sofort
Preisdaten
Preis
Kaufpreis
950.000 €
Preis Zeiteinheit
pro Monat
Zus. Preis Info
€ 1.613/m²
Weitere Kosten
Altlasten
nicht vorhanden
Courtage
Provisionspflichtig /provisionsfrei
provisionspflichtig
Käufercourtage
3,57 % inkl. gesetzl. MwSt.
Innen- / Außencourtage
exkl. MwSt.
Merkmale
Zimmer und Bereiche
Anzahl (Terrassen)
1.0
Ausstattung und Technik
Qualität der Ausstattung
gehoben
Besondere Merkmale
Besondere Merkmale
Gewerbliche Nutzung
Grundstück und Lage
Grundstück und Lage
Gewerbliche Nutzung
Energie
Es wurden keine Daten angegeben.
Umgebung
Es wurden keine Daten angegeben.
Objektbeschreibung
Die angebotene leerstehende Gewerbeimmobilie mit einem extravaganten Wohn-Loft ist 1968 für einen Druckereibetrieb erbaut worden. Ein Teilbereich des Seitentrakts wurde Mitte 2002 durch eine Nutzungsänderung zu Wohnzwecken (ca. 221 m²) genehmigt und zu einem exclusiven Wohn-Loft umgebaut. Dieses Wohn-Loft wurde von dem früheren Eigentümer selbst bewohnt. Die restliche Gewerbe- und Bürofläche mit ca. 368 m² im Hauptteil diente als Ausstellungs- und Handelsfläche (s. Grundrisse). Die Immobilie ist teilunterkellert. Neben dem Gebäude wurden zwei Garagen und drei Stellplätze errichtet, getrennt von einem kleinen Biotop. Bei einer Neuvermietung ist die Jahresmiete kalkulatorisch mit € 63.000,-- angesetzt worden (Wohnen/Arbeiten € 5.000,-- und 5 Parkflächen mit € 250,-- pro Monat). Die Grundstücksgröße beträgt 617 m². Laut BORIS NRW beträgt der Bodenrichtwert in diesem Bereich der City € 600 m².
Ausstattung
Die zweigeschossige hell verputzte Liegenschaft befindet sich in einem guten Erhaltungszustand. Das Hauptgebäude ist über einen Haupt- und Nebeneingang zu erreichen und die weißen Kunststofffenster sind isolierverglast. Die Beheizung und Warmwasseraufbereitung erfolgt über eine Gaszentralheizung, unterstützt im Wohn- und Esszimmer durch einen edlen eingebauten Kaminofen (s. Fotos). Die Loftwohnung ist im oberen Bereich mit einem großen Glasdach ausgestattet und einer großen Terrasse, die an einer Galerie anschließt (s. Pläne). Großzügig angelegte Bäder schließen die elegante Loft ab, ebenso die Küche im Erdgeschoss.
Lage
Die Liegenschaft befindet sich im Zentrum von Hilden unweit der Einkaufsmeile Mittelstraße in gesuchter innerstädtischer Wohn- und Gewerbelage. Benachbart sind die Grundschule Schulstraße und mehrere soziale Einrichtungen. In der sehr gut frequentierten Innenstadt mit mehreren Fußgängerzonen genießen die Menschen optimale Einkaufsmöglichkeiten und ein umfangreiches gastronomisches Angebot. SB-Märkte, Einzelhandelsgeschäfte ohne billige Ramschläden, Restaurants und Cafès laden zum Verweilen ein; außerdem sind Ärzte, Apotheken, Optiker sowie Banken zahlreich vorhanden.
Der Zugang zum öffentlichen Personennahverkehr mit Bussen in Richtung Langenfeld und Solingen ist direkt vor der Tür und die S-Bahnstation Hilden-Süd (S1 Düsseldorf - Solingen) ist in ca. 5 Gehminuten zu erreichen. Die Autobahnanschlüsse der BAB A59, A46 und A3 verbinden Hilden mit den umliegenden Großstädten Düsseldorf, Köln und Wuppertal.
Lade Orte in der Umgebung
Sonstiges
Die Immobilie eignet sich als klassische Kombination aus Wohnen und Arbeiten für Steuerberater und Rechtsanwälte sowie als Showroom zur Ausstellung von Designer-Möbeln und Kunsthandwerk oder Musikstudio und als kreatives Zentrum für Start-ups und Freiberufler; im Gesundheits- und Wellnessbereich als Praxisgemeinschaft für Physiotherapie, Ergotherapie, Logopägodie, Heilpraktiker, Yoga-Studio oder Kampfsportschule und Personal Training; als Bildungszentrum für Sprachschulen und Nachhilfe, Coaching-Institute oder Schulungsräume für Unternehmen.
Durch Zustandekommen des notariell beurkundeten Kaufvertrages verpflichtet sich der Käufer zur Zahlung der Courtage in Höhe von 3,57 % (inkl. 19 % MwSt) des Kaufpreises an uns als allein beauftragtes Maklerbüro. Die Provision ist mit Abschluss des notariell beurkundeten Kaufvertrages verdient und fällig. Der Käufer hat den Makler unverzüglich über den Vertragsabschluss zu informieren.
Der Energieausweis liegt noch nicht vor (in Bearbeitung)!
Gerne erhalten Sie weitere Unterlagen bei Nennung Ihres Namens, Ihrer Anschrift und Email-Adresse.